Yopa says ..
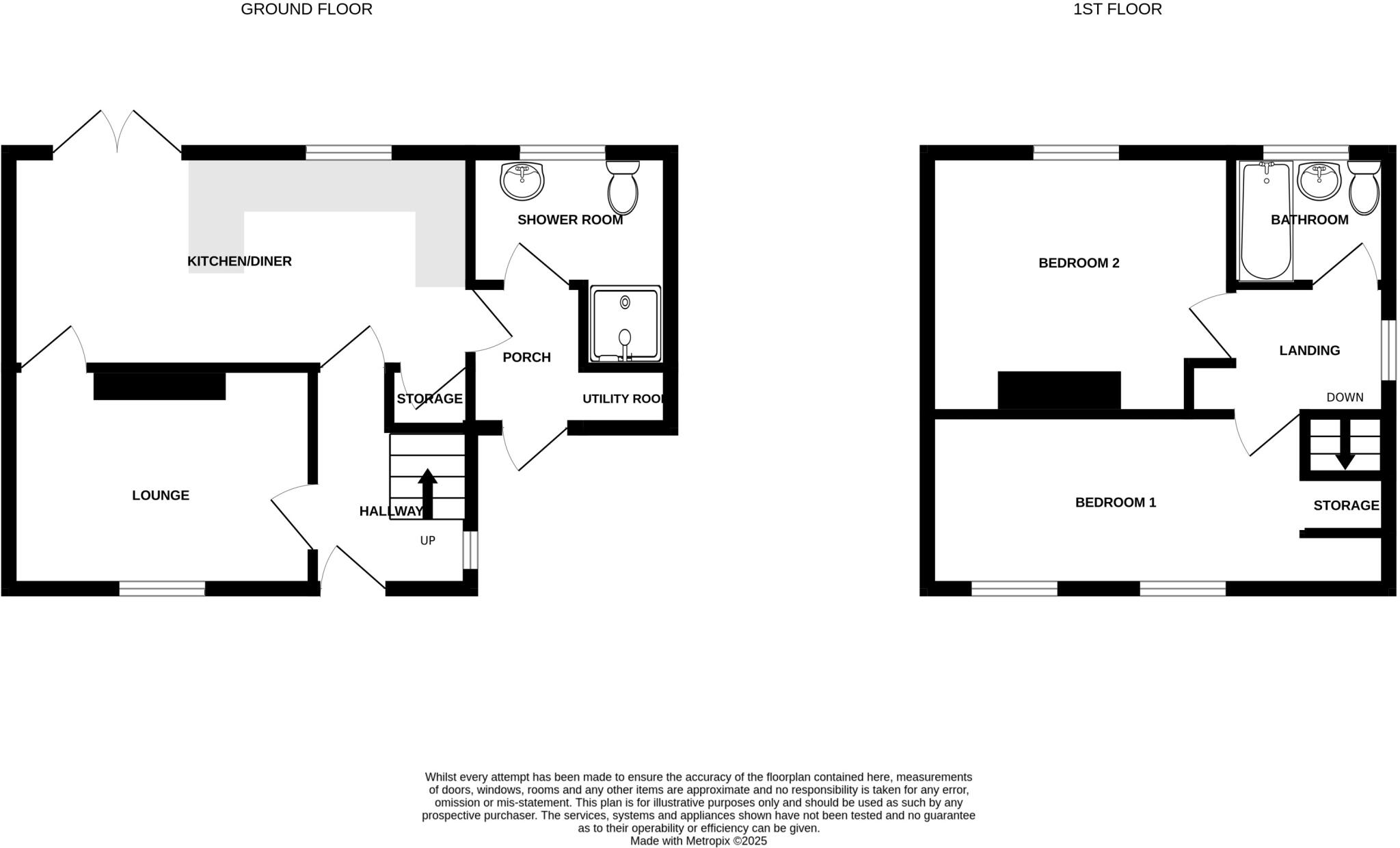
Yopa are pleased to present to the sales market with no onward chain this two bedroom semi - detached property situated in the popular residential area of Baglan, Port Talbot. Conveniently located for the M4 Motorway, Port Talbot Town Centre, NPT Hospital, Schools, Shops, Pubs & Restaurants.
Property Oracle says ..
Therefore, we give this property 5 / 10. *Disclaimer: This is our option and does constitute a recommendation or financial advice. Do your own research. *
- Price
- 3
- Condition
- 7
- Location
- 7
- Land
- 6
- Bedrooms
- 2
- Bathrooms
- 2
- Sqft (est)
- 965.00
The heatmap indicates the level of crime in the area. The color of the heatmap indicates the crime severity and recency.
Metrics Year-on-Year
- Average area value
- 406,364.00 £Increased by 51.98 %
- Est sale value
- 317,485.00 £Increased by 29.02 %
- Average area rental value
- 1,294.00 £/moIncreased by 17.32 %
- Est letting value
- 965.00 £/moUnchanged by 0.00 %
- Est rental Yield
- 3.82 %Decreased by 22.83 %
- Crime Rate
- 14.00 %Unchanged by 0.00 %
from 267,381.00 £
from 246,075.00 £
from 1,103.00 £/mo
from 965.00 £/mo
from 4.95 %
from 14.00 %
Agent Activity
Yopa created the listing.
Nearby Schools
| Name | Type | Ofsted | Distance |
|---|---|---|---|
| Baglan Primary School | Welsh Establishment | 0.90 KM | |
| Blaenbaglan Primary School | Welsh Establishment | 1.87 KM | |
| Ygg Tyle'R Ynn | Welsh Establishment | 2.26 KM | |
| Horizons Educare | Welsh Establishment | 2.77 KM | |
| Ygg Rhos-Afan | Welsh Establishment | 2.89 KM |
Images
Nearby Streets
| Name | Average Price | Average Sqft | Distance |
|---|---|---|---|
| Tyr Hallen Row | £ 115,950 | 0 | 0.00 KM |
| Mountain View | £ 224,975 | 0 | 0.00 KM |
| Ash Grove | £ 164,950 | 0 | 0.00 KM |
| Swan Street | £ 0 | 0 | 0.00 KM |
| Maple Avenue | £ 165,000 | 0 | 0.00 KM |
Nearby Transport
| Name | NLC | TLC | Distance |
|---|---|---|---|
| Baglan | 4186 | BAJ | 1.04 KM |
| Briton Ferry | 4187 | BNF | 1.61 KM |
| Neath | 4216 | NTH | 4.25 KM |
| Port Talbot Parkway | 4181 | PTA | 5.09 KM |
| Skewen | 4217 | SKE | 5.49 KM |
Nearby Listings
| Address | Price | Type | Score | Distance |
|---|---|---|---|---|
| Crawford Green, Port Talbot, SA12 | £ 175,000 | BUY | 5 / 10 | 0.00 KM |
| 1 & 2, Elder Road, Baglan, Neath Port Talbot SA12 8LU | £ 64,000 | BUY | 5 / 10 | 0.09 KM |
| 1 & 2, Elder Road, Baglan, Neath Port Talbot SA12 8LU | £ 55,000 | BUY | 5 / 10 | 0.09 KM |
| Mayberry Road, Baglan, Port Talbot, SA12 8DF | £ 150,000 | BUY | 7 / 10 | 0.15 KM |
| Thorney Road, Baglan, Port Talbot, Neath Port Talbot. | £ 189,995 | BUY | 6 / 10 | 0.18 KM |
Nearby Properties
| Address | Price | Distance |
|---|---|---|
| 16 Crawford Green | £ 77,500 | 0.01 KM |
| 22 Crawford Green | £ 68,000 | 0.01 KM |
| 23 Crawford Green | £ 91,000 | 0.02 KM |
| 13 Crawford Green | £ 92,000 | 0.02 KM |
| 41 Mayberry Road | £ 69,995 | 0.08 KM |