Broadlay, Ferryside
WE

Broadlay, Ferryside

By West Wales Properties

£ 550,000

Reviews

3 out of 5 stars

West Wales Properties says ..

Parc Y Bryn is a striking Edwardian residence in a beautifully landscaped garden enjoying stunning estuary views. Lovingly restored and thoughtfully updated by its current owners, the property preserves its original character while benefiting from extensive modern improvements. Works include the ...

Property Oracle says ..

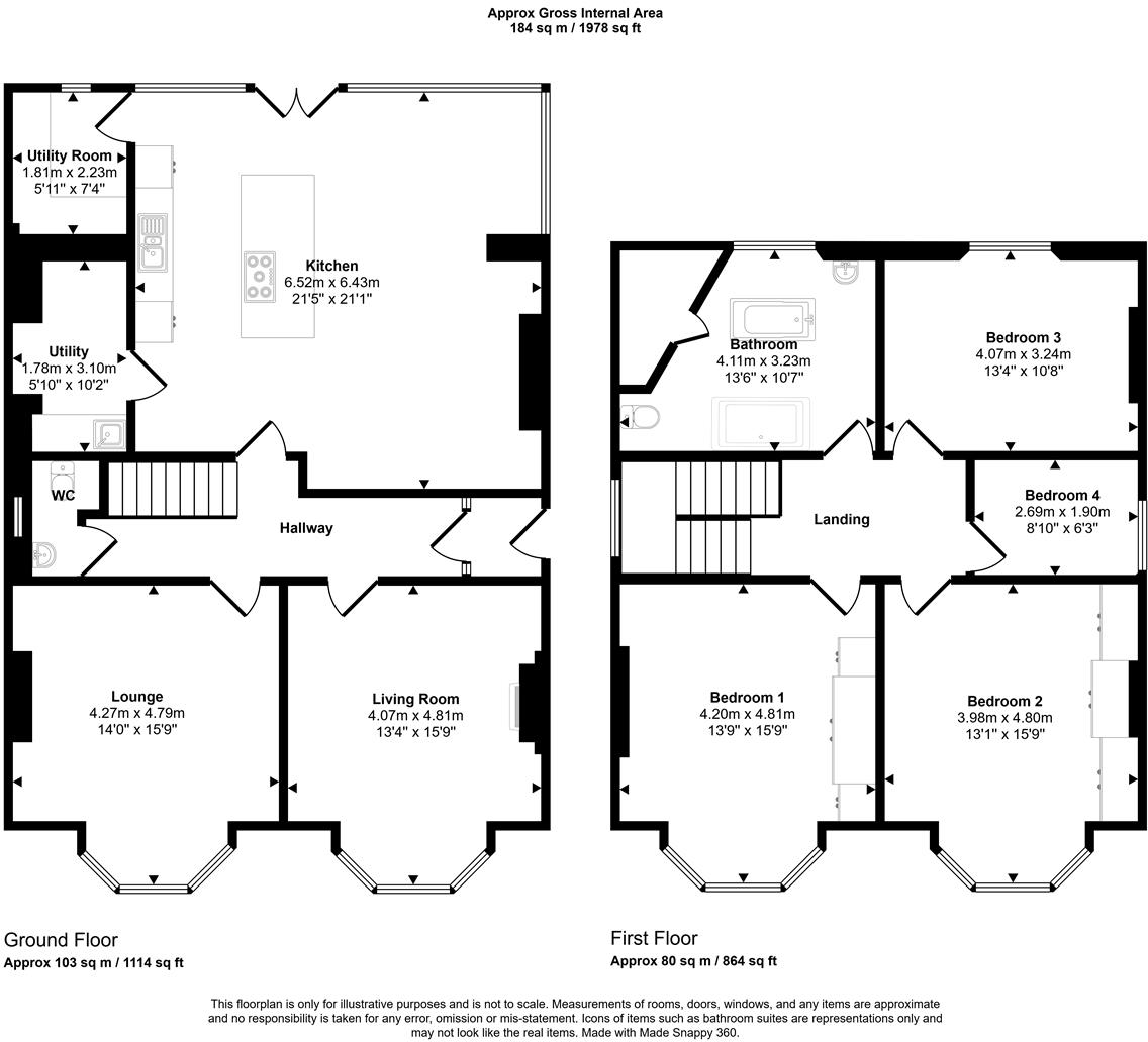
The property is a 4-bedroom, 1-bathroom house located in Broadlay, Ferryside, Carmarthenshire, Wales. It boasts a substantial size of 1,980.56 sqft and is listed at £550,000. The average house price in the area is significantly lower at £294,545, with an average price per sqft of £266. This property is considerably larger than average at almost double the size. The location appears to be relatively peaceful, situated in a hamlet near Ferryside. The proximity to Ferryside offers access to the estuary village, and the nearby rail station at Ferryside provides convenient transportation links. The presence of several schools within a reasonable distance suggests access to local education. The surrounding area appears to be rural and scenic. From the images, the property seems to be in excellent condition. It has undergone a recent renovation or refurbishment, featuring a modern kitchen and updated bathrooms. The interior is well-presented and appears to be well-maintained. The exterior of the property is also in good condition. The property includes a sizable garden, offering outdoor space. The size of the plot is not specified, but the photos show a substantial area of land surrounding the house. Considering the property’s size, condition, and location, the list price of £550,000 appears high compared to the average local price. However, the significantly larger size and higher quality of the property compared to other nearby listings partially justifies the higher price point. More detailed information on comparable properties in the immediate vicinity would be needed to definitively assess the price’s reasonableness. The lack of plot size information also prevents a full assessment of the land value.

Therefore, we give this property 7 / 10. *Disclaimer: This is our option and does constitute a recommendation or financial advice. Do your own research. *

Price
6
Condition
9
Location
7
Land
7
Bedrooms
4
Bathrooms
1
Sqft (est)
1,980.56

The heatmap indicates the level of crime in the area. The color of the heatmap indicates the crime severity and recency.

Metrics Year-on-Year

Average area value
310,998.00 £
Decreased by 1.08 %
from 314,389.00 £
Est sale value
661,507.04 £
Increased by 16.78 %
from 566,440.16 £
Average area rental value
1,363.00 £/mo
Increased by 13.58 %
from 1,200.00 £/mo
Est letting value
1,980.56 £/mo
Unchanged by 0.00 %
from 1,980.56 £/mo
Est rental Yield
5.26 %
Increased by 14.85 %
from 4.58 %
Crime Rate
0.00 %
from 0.00 %

Agent Activity

  • West Wales Properties created the listing.

Nearby Schools

NameTypeOfstedDistance
Ferryside VcpWelsh Establishment1.39 KM
Ysgol LlanstephanWelsh Establishment3.37 KM
Ysgol GwenllianWelsh Establishment6.18 KM
Llangain SchoolWelsh Establishment6.66 KM
Ysgol Y CastellWelsh Establishment6.95 KM

Images

8553666-exterior04.jpg 8553666-exterior05.jpg 8553666-exterior18.jpg 8553666-interior33.jpg 8553666-interior28.jpg 8553666-interior29.jpg 8553666-interior30.jpg 8553666-interior38.jpg 8559530-interior23.jpg 8553666-interior22.jpg 8553666-interior26.jpg 8559530-interior21.jpg 8553666-interior27.jpg 8559530-interior25.jpg 8553666-interior05.jpg 8553666-interior31.jpg 8553666-interior32.jpg 8553666-interior34.jpg 8553666-interior36.jpg 8559530-interior27.jpg 8559530-interior28.jpg 8559530-interior16.jpg 8559530-interior20.jpg 8559530-interior14.jpg 8553666-interior15.jpg 8553666-interior16.jpg 8559530-interior04.jpg 8559530-interior10.jpg 8559530-interior08.jpg 8559530-interior09.jpg 8553666-interior18.jpg 8559530-interior13.jpg 8553666-interior23.jpg 8553666-exterior19.jpg 8553666-exterior28.jpg 8559530-exterior02.jpg 8559530-exterior03.jpg 8559530-exterior04.jpg 8553666-exterior21.jpg 8553666-exterior24.jpg 8553666-exterior23.jpg 8553666-exterior26.jpg 8553666-exterior20.jpg Vendor Approved_Image-21.jpg

Nearby Streets

NameAverage PriceAverage SqftDistance
Bryneryl £ 000.00 KM
Brynhyfryd £ 850,00000.00 KM
Vicarage Close £ 000.00 KM
Port Way £ 575,00000.00 KM
Briardale £ 000.00 KM

Nearby Transport

NameNLCTLCDistance
Ferryside4074FYS1.43 KM
Kidwelly4132KWL5.60 KM

Nearby Listings

AddressPriceTypeScoreDistance
Broadlay, Ferryside, SA17 £ 525,000BUY6 / 100.11 KM
Broadlay, Ferryside, SA17 £ 399,000BUY7 / 100.11 KM
Broadlay, Ferryside, Carmarthenshire. £ 445,000BUY7 / 100.11 KM
Broadlay, Ferryside, SA17 5UB £ 350,000BUYUnknown0.11 KM
Ferryside, Carmarthenshire, SA17 £ 650,000BUY7 / 101.13 KM

Nearby Properties

AddressPriceDistance
Deepdene £ 168,0000.10 KM
Parc Y Bryn £ 611,0000.10 KM
Towy Villa £ 260,0000.10 KM
Tymawr £ 275,0000.10 KM
Derwendeg £ 100,0000.10 KM