Woodlands Park Road, Offerton, Stockport, SK2 5DE
By Lawler & Co
£ 340,000
Reviews
3 out of 5 stars
Lawler & Co says ..
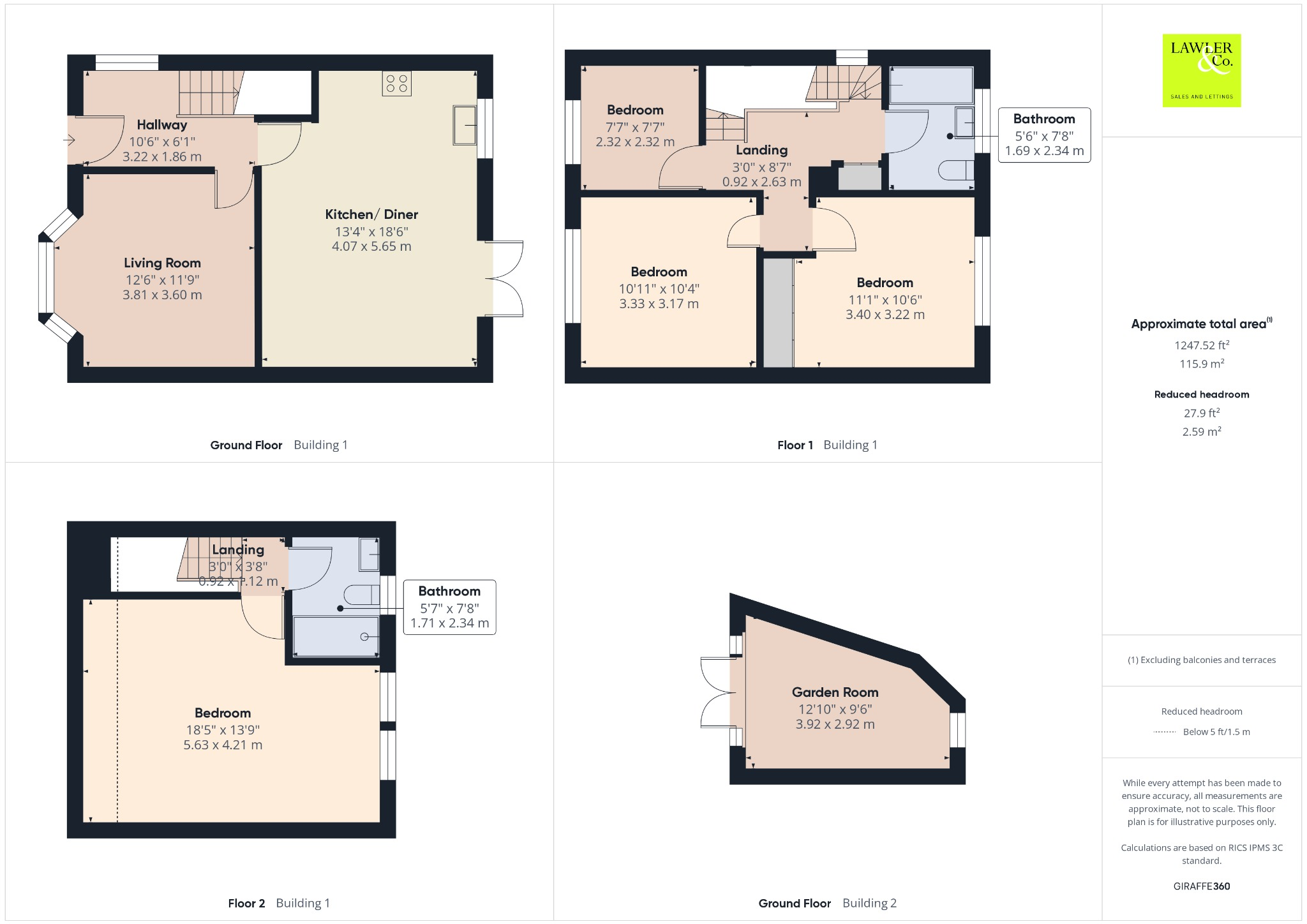
Welcome to Woodlands Park Road a beautifully presented FOUR BEDROOM semi detached family home offering spacious living accommodation across THREE FLOORS with IMPRESSIVE GARDEN OFFICE, MODERN OPEN PLAN LIVING and STUNNING LOFT CONVERSION WITH BATHROOM
Property Oracle says ..
This four-bedroom semi-detached house in Offerton, Stockport is listed at £340,000. The property boasts a modern kitchen and bathroom, and has been recently updated throughout. The location is convenient, with good schools and transportation links nearby. However, the plot size is small. Compared to similar properties in the area, the list price seems reasonable.
Therefore, we give this property 7 / 10. *Disclaimer: This is our option and does constitute a recommendation or financial advice. Do your own research. *
- Price
- 7
- Condition
- 9
- Location
- 8
- Land
- 4
- Bedrooms
- 4
- Bathrooms
- 2
- Sqft (est)
- 1,418.68
The heatmap indicates the level of crime in the area. The color of the heatmap indicates the crime severity and recency.
Metrics Year-on-Year
- Average area value
- 387,843.00 £Increased by 1.47 %
- Est sale value
- 549,029.16 £Increased by 24.84 %
- Average area rental value
- 1,806.00 £/moIncreased by 16.22 %
- Est letting value
- 1,418.68 £/moUnchanged by 0.00 %
- Est rental Yield
- 5.59 %Increased by 14.55 %
- Crime Rate
- 0.00 %
Agent Activity
Lawler & Co created the listing.
Nearby Schools
| Name | Type | Ofsted | Distance |
|---|---|---|---|
| Fairway Primary School | Community School | Good | 0.79 KM |
| Castle Hill High School | Community Special School | Outstanding | 0.88 KM |
| St Philip'S Catholic Primary School | Voluntary Aided School | Good | 0.90 KM |
| Lisburne School | Community Special School | Outstanding | 1.36 KM |
| Dial Park Primary School | Community School | Good | 1.47 KM |
Images
Nearby Streets
| Name | Average Price | Average Sqft | Distance |
|---|---|---|---|
| Elder Close | £ 0 | 0 | 0.00 KM |
| Filey Road | £ 325,000 | 0 | 0.00 KM |
| Salcombe Road | £ 0 | 0 | 0.00 KM |
| Radford Close | £ 0 | 0 | 0.00 KM |
| Beverley Road | £ 281,667 | 0 | 0.00 KM |
Nearby Transport
| Name | NLC | TLC | Distance |
|---|---|---|---|
| Woodsmoor | 2773 | WSR | 2.53 KM |
| Bredbury | 2779 | BDY | 2.84 KM |
| Hazel Grove | 2768 | HAZ | 2.90 KM |
| Davenport | 2770 | DVN | 3.23 KM |
| Brinnington | 2603 | BNT | 3.36 KM |
Nearby Listings
| Address | Price | Type | Score | Distance |
|---|---|---|---|---|
| Woodlands Park Road, Offerton, Stockport, SK2 5DE | £ 340,000 | BUY | 7 / 10 | 0.00 KM |
| Oaktree Close, Stockport | £ 280,000 | BUY | Unknown | 0.04 KM |
| Oaktree Close, Stockport, Greater Manchester, SK2 | £ 325,000 | BUY | 7 / 10 | 0.09 KM |
| Woodlands Drive, Stockport | £ 250,000 | BUY | 7 / 10 | 0.11 KM |
| Curzon Road, Stockport, Cheshire, SK2 5DH | £ 350,000 | BUY | 6 / 10 | 0.13 KM |
Nearby Properties
| Address | Price | Distance |
|---|---|---|
| 12 Woodlands Park Road | £ 163,500 | 0.03 KM |
| 1 Woodlands Park Road | £ 225,000 | 0.03 KM |
| 10 Woodlands Park Road | £ 147,000 | 0.03 KM |
| 15 Woodlands Park Road | £ 270,000 | 0.03 KM |
| 11 Woodlands Park Road | £ 120,000 | 0.03 KM |