Christchurch Road, Tulse Hill
By Orlando Reid
£ 500,000
Reviews
3 out of 5 stars
Orlando Reid says ..
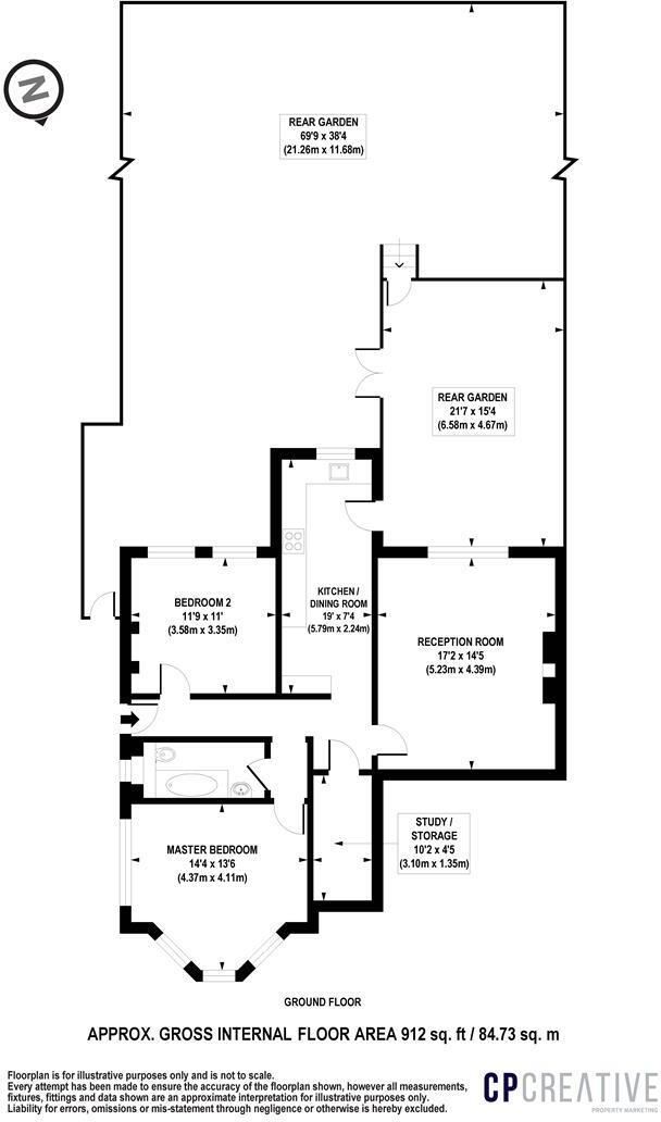
This superb ground-floor maisonette, accessed via its own private front door, is offered in good condition and combines generous proportions with attractive period character. The property features two large double bedrooms, a separate office, and a spacious reception room with working fireplace. ...
Property Oracle says ..
This is a two-bedroom apartment on Christchurch Road, Tulse Hill. The property is in a good location, close to transport links and schools. The condition of the property is generally good, with a modern kitchen and bathroom. The property benefits from a garden, which is a desirable feature. The price is slightly above the average price per square foot for the area, but the garden may justify the premium. Overall, this property presents a good opportunity for buyers looking for a well-located apartment with outdoor space. The property is modern and well-maintained, making it ready for immediate occupancy. Potential buyers should consider the price in relation to comparable properties in the area and factor in any potential renovation costs.
Therefore, we give this property 7 / 10. *Disclaimer: This is our option and does constitute a recommendation or financial advice. Do your own research. *
- Price
- 6
- Condition
- 7
- Location
- 7
- Land
- 8
- Bedrooms
- 2
- Bathrooms
- 1
- Sqft (est)
- 537.23
The heatmap indicates the level of crime in the area. The color of the heatmap indicates the crime severity and recency.
Metrics Year-on-Year
- Average area value
- 628,333.00 £Decreased by 11.41 %
- Est sale value
- 442,677.52 £Increased by 18.39 %
- Average area rental value
- 2,316.00 £/moDecreased by 1.28 %
- Est letting value
- 1,611.69 £/moIncreased by 50.00 %
- Est rental Yield
- 4.42 %Increased by 11.34 %
- Crime Rate
- 2.00 %Unchanged by 0.00 %
Agent Activity
Orlando Reid created the listing.
Nearby Schools
| Name | Type | Ofsted | Distance |
|---|---|---|---|
| Fenstanton Primary School | Community School | Good | 0.41 KM |
| City Heights E-Act Academy | Academy Sponsor Led | Good | 0.41 KM |
| St Martin In The Fields High School For Girls | Academy Converter | Good | 0.42 KM |
| Streatham Wells Primary School | Community School | Good | 0.62 KM |
| Hitherfield Primary School | Community School | Good | 0.70 KM |
Images
Nearby Streets
| Name | Average Price | Average Sqft | Distance |
|---|---|---|---|
| Neil Wates Crescent | £ 375,000 | 0 | 0.00 KM |
| Jemma Knowles Close | £ 0 | 0 | 0.00 KM |
| Bannister Close | £ 375,000 | 0 | 0.00 KM |
| Rickards Close | £ 0 | 0 | 0.00 KM |
| Yeomans Close | £ 0 | 0 | 0.00 KM |
Nearby Transport
| Name | NLC | TLC | Distance |
|---|---|---|---|
| Tulse Hill | 5390 | TUH | 0.59 KM |
| West Norwood | 5438 | WNW | 1.21 KM |
| Herne Hill | 5066 | HNH | 1.69 KM |
| Streatham Hill | 5435 | SRH | 1.87 KM |
| West Dulwich | 5086 | WDU | 2.10 KM |
Nearby Listings
| Address | Price | Type | Score | Distance |
|---|---|---|---|---|
| Christchurch Road, Tulse Hill | £ 500,000 | BUY | 7 / 10 | 0.00 KM |
| Christchurch Road, Brixton, London, SW2 | £ 315,000 | BUY | 5 / 10 | 0.02 KM |
| Christchurch Road, Tulse Hill | £ 375,000 | BUY | 7 / 10 | 0.02 KM |
| Christchurch Road, Tulse Hill, SW2 | £ 325,000 | BUY | 7 / 10 | 0.04 KM |
| Christchurch Road, Brixton | £ 485,000 | BUY | 6 / 10 | 0.07 KM |
Nearby Properties
| Address | Price | Distance |
|---|---|---|
| 75 Christchurch Road | £ 150,000 | 0.08 KM |
| 71 Christchurch Road | £ 465,000 | 0.08 KM |
| 83 Christchurch Road | £ 115,000 | 0.08 KM |
| 67 Christchurch Road | £ 440,000 | 0.08 KM |
| 71b Christchurch Road | £ 230,000 | 0.08 KM |