Long Lane, Wettenhall, Winsford
By Coulby Conduct
£ 585,000
Reviews
3 out of 5 stars
Coulby Conduct says ..
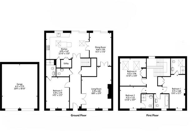
This impressive four bedroom barn conversion is set in a small development of similar properties of the same kind in the picturesque area of Wettenhall and has an abundance of wealth and charm throughout with a full complement of high specification of fixtures and fittings. In brief the accommoda...
Property Oracle says ..
This property is a four-bedroom, four-bathroom barn conversion located in the village of Wettenhall, Cheshire. The listing highlights its impressive features, including high-specification fixtures and fittings, and a tranquil setting. The photos showcase a modern, well-maintained interior with a contemporary kitchen and living areas. The exterior shows a well-maintained brick building with ample windows. The presence of a garden adds to the property’s appeal, though its exact size is not specified in the available information. The proximity to Winsford offers easy access to essential amenities and transport links. Several highly-rated schools are within a reasonable distance, making it a potentially attractive option for families. The listed price appears to be in line with similar properties in the area, and therefore competitive within the current market. Overall, the property presents as a well-appointed, modern barn conversion in a desirable location with good access to schools and transport. However, the lack of precise plot size information prevents a more thorough analysis of the value provided. Potential buyers should investigate the plot size and specifics of the property further before making a purchase decision.
Therefore, we give this property 6 / 10. *Disclaimer: This is our option and does constitute a recommendation or financial advice. Do your own research. *
- Price
- 7
- Condition
- 8
- Location
- 7
- Land
- 4
- Bedrooms
- 4
- Bathrooms
- 4
- Sqft (est)
- 2,177.22
The heatmap indicates the level of crime in the area. The color of the heatmap indicates the crime severity and recency.
Metrics Year-on-Year
- Average area value
- 486,321.00 £Decreased by 11.71 %
- Est sale value
- 788,153.64 £Decreased by 2.95 %
- Average area rental value
- 1,340.00 £/moDecreased by 8.91 %
- Est letting value
- 0.00 £/mo
- Est rental Yield
- 3.31 %Increased by 3.44 %
- Crime Rate
- 0.00 %
Agent Activity
Coulby Conduct created the listing.
Nearby Schools
| Name | Type | Ofsted | Distance |
|---|---|---|---|
| Calveley Primary Academy | Academy Converter | Good | 3.13 KM |
| Hebden Green Community School | Community Special School | Outstanding | 4.18 KM |
| Oaklands School | Community Special School | Outstanding | 4.89 KM |
| Over Hall Community School | Academy Converter | Good | 5.11 KM |
| Darnhall Primary School | Community School | Good | 5.39 KM |
Images
Nearby Streets
| Name | Average Price | Average Sqft | Distance |
|---|---|---|---|
| Cornhill Barns | £ 625,000 | 0 | 0.00 KM |
| Eaton Road | £ 795,000 | 0 | 0.00 KM |
Nearby Transport
| Name | NLC | TLC | Distance |
|---|---|---|---|
| Winsford | 2269 | WSF | 9.51 KM |
Nearby Listings
| Address | Price | Type | Score | Distance |
|---|---|---|---|---|
| Long Lane, Wettenhall, Winsford | £ 585,000 | BUY | Unknown | 0.00 KM |
| Long Lane, Wettenhall, Winsford | £ 585,000 | BUY | 6 / 10 | 0.00 KM |
| The Green, Long Lane, Wettenhall | £ 635,000 | BUY | 7 / 10 | 0.16 KM |
| The Green, Long Lane, Wettenhall | £ 645,000 | BUY | Unknown | 0.16 KM |
| Cornhill Barns, Long Lane, Wettenhall | £ 650,000 | BUY | Unknown | 0.33 KM |
Nearby Properties
| Address | Price | Distance |
|---|---|---|
| Bank View | £ 25,000 | 0.00 KM |
| Manor Cottage | £ 270,000 | 0.00 KM |
| Oaktree House | £ 690,000 | 0.00 KM |
| The Old Post Office | £ 495,000 | 0.00 KM |
| Chapel House | £ 291,000 | 1.13 KM |