Mill Hill, Weston Colville
CH

Mill Hill, Weston Colville

By Cheffins Residential

£ 675,000

Reviews

3 out of 5 stars

Cheffins Residential says ..

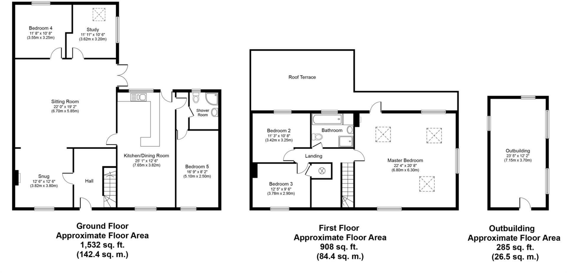
A substantial 5 bedroom semi-detached character home situated in a sought after village location and with delightful established gardens. The property has been sympathetically extended and benefits from a bright and spacious open plan living room and snug with roof lights, wood flooring and an op...

Property Oracle says ..

This is a substantial five-bedroom detached property located in the village of Weston Colville. The house offers ample living space, with 2,263.18 sqft, and includes a large garden with mature features such as a pond and vegetable patch. While the property is generally well-maintained, some areas, like the kitchen, could benefit from modernisation. The location, while rural, may be less convenient for those requiring frequent access to public transport or highly-rated schools. Overall, this property would suit a family looking for a spacious home with a large garden in a quiet village setting.

Therefore, we give this property 7 / 10. *Disclaimer: This is our option and does constitute a recommendation or financial advice. Do your own research. *

Price
7
Condition
7
Location
6
Land
9
Bedrooms
5
Bathrooms
2
Sqft (est)
2,263.18

The heatmap indicates the level of crime in the area. The color of the heatmap indicates the crime severity and recency.

Metrics Year-on-Year

Average area value
491,667.00 £
Decreased by 14.35 %
from 574,028.00 £
Est sale value
803,428.90 £
Increased by 6.29 %
from 755,902.12 £
Average area rental value
1,350.00 £/mo
Decreased by 23.60 %
from 1,767.00 £/mo
Est letting value
0.00 £/mo
Decreased by 100.00 %
from 2,263.18 £/mo
Est rental Yield
3.29 %
Decreased by 10.84 %
from 3.69 %
Crime Rate
0.00 %
from 0.00 %

Agent Activity

  • Cheffins Residential created the listing.

Nearby Schools

NameTypeOfstedDistance
Burrough Green Cofe Primary SchoolVoluntary Controlled SchoolRequires improvement3.83 KM
Meadow Primary SchoolAcademy Sponsor LedGood5.80 KM
Kettlefields Primary SchoolCommunity SchoolRequires improvement5.97 KM
Glebe HouseOther Independent Special SchoolRequires improvement8.53 KM
Thurlow Voluntary Controlled Primary SchoolVoluntary Controlled SchoolGood9.30 KM

Images

8_32196.JPG 34_32196.JPG 30_32196.JPG 29_32196.JPG 27_32196.JPG 33_32196.JPG 38_32196.JPG 18_32196.JPG 23_32196.JPG 45_32196 copy.jpg 31_32196.JPG 17_32196.JPG 12_32196.JPG 35_32196.JPG 37_32196.JPG 28_32196.JPG 26_32196.JPG 32_32196.JPG 39_32196.JPG 20_32196.JPG 19_32196.JPG 24_32196.JPG 22_32196.JPG 21_32196.JPG 4_32196.JPG 1_32196.JPG 10_32196.JPG 15_32196.JPG 2_32196.JPG 14_32196.JPG 40_32196.JPG 41_32196 copy.jpg 44_32196.JPG 5_32196.JPG Plot - Plum Cottage.jpg 9_32196.JPG 11_32196.JPG

Nearby Streets

NameAverage PriceAverage SqftDistance
The Common £ 850,00000.00 KM

Nearby Transport

NameNLCTLCDistance
Dullingham7027DUL5.69 KM

Nearby Listings

AddressPriceTypeScoreDistance
Mill Hill, Weston Colville, Cambridge, CB21 5NY £ 975,000BUY7 / 100.00 KM
Mill Hill, Weston Colville £ 675,000BUY7 / 100.00 KM
Mill Hill, Weston Colville £ 700,000BUY7 / 100.02 KM
Mill Hill, Weston Colville, Cambridge, Cambridgeshire, £ 2,000,000BUY7 / 100.27 KM
Brinkley Road, Weston Colville, Cambridge £ 350,000BUY6 / 100.61 KM

Nearby Properties

AddressPriceDistance
Green Lee £ 305,0000.01 KM
31 Mill Hill £ 16,0000.01 KM
Lane House £ 527,3000.01 KM
26 Mill Hill £ 485,0000.01 KM
Wyke £ 442,5000.01 KM