Worsley Road, FRIMLEY, GU16
By Jigsaw Estates
£ 110,000
Reviews
2 out of 5 stars
Jigsaw Estates says ..
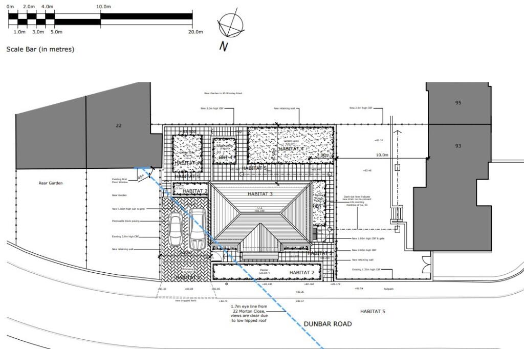
Jigsaw Estates are pleased to offer this rare opportunity to build your own house. Planning permission has been granted on the 12th November 2025 (permission lasts for 12 months from this date) for a detached single dwelling on the land at the rear of 93 Worsley Road and the eventual access wi...
Property Oracle says ..
This is a plot of land for sale in Frimley Green, Surrey. The location is favorable, with proximity to schools and transportation. As a plot, it requires complete construction, hence the poor condition score. The land size is decent, offering good potential. The asking price appears to be a good deal for the area.
Therefore, we give this property 5 / 10. *Disclaimer: This is our option and does constitute a recommendation or financial advice. Do your own research. *
- Price
- 9
- Condition
- 1
- Location
- 6
- Land
- 7
- Bedrooms
- 3
- Bathrooms
- 2
The heatmap indicates the level of crime in the area. The color of the heatmap indicates the crime severity and recency.
Metrics Year-on-Year
- Average area value
- 475,000.00 £Decreased by 13.40 %
- Average area rental value
- 1,548.00 £/moDecreased by 3.31 %
- Est rental Yield
- 3.91 %Increased by 11.71 %
- Crime Rate
- 12.00 %Unchanged by 0.00 %
Agent Activity
Jigsaw Estates created the listing.
Nearby Schools
| Name | Type | Ofsted | Distance |
|---|---|---|---|
| Sandringham Infant & Nursery Academy | Academy Converter | Good | 0.26 KM |
| Frimley Cofe Junior School | Academy Converter | 0.46 KM | |
| Cross Farm Infant Academy | Academy Converter | 0.83 KM | |
| Lakeside Nursery & Primary Academy | Academy Converter | Good | 0.89 KM |
| Tomlinscote School | Academy Converter | 1.25 KM |
Images
Nearby Streets
| Name | Average Price | Average Sqft | Distance |
|---|---|---|---|
| Balmoral Drive | £ 0 | 0 | 0.00 KM |
| Nursery Close | £ 0 | 0 | 0.00 KM |
| Addison Road | £ 0 | 0 | 0.00 KM |
| Hastings Close | £ 585,000 | 0 | 0.00 KM |
| Milden Close | £ 0 | 0 | 0.00 KM |
Nearby Transport
| Name | NLC | TLC | Distance |
|---|---|---|---|
| Farnborough North | 5688 | FNN | 1.78 KM |
| Frimley | 5683 | FML | 2.02 KM |
| Farnborough (Main) | 5521 | FNB | 3.30 KM |
| Camberley | 5682 | CAM | 3.42 KM |
| North Camp | 5636 | NCM | 3.77 KM |
Nearby Listings
| Address | Price | Type | Score | Distance |
|---|---|---|---|---|
| Worsley Road, FRIMLEY, GU16 | £ 110,000 | BUY | 5 / 10 | 0.00 KM |
| Worsley Road, Frimley | £ 225,000 | BUY | 6 / 10 | 0.05 KM |
| Frimley, Camberley | £ 225,000 | BUY | Unknown | 0.05 KM |
| Worsley Road, Frimley, Camberley, Surrey, GU16 | £ 550,000 | BUY | 7 / 10 | 0.08 KM |
| Dunbar Road, Frimley, Camberley, Surrey, GU16 | £ 475,000 | BUY | 7 / 10 | 0.13 KM |
Nearby Properties
| Address | Price | Distance |
|---|---|---|
| 91 Worsley Road | £ 350,000 | 0.05 KM |
| 71 Worsley Road | £ 107,000 | 0.05 KM |
| 81 Worsley Road | £ 250,000 | 0.05 KM |
| 109 Worsley Road | £ 199,300 | 0.05 KM |
| 99 Worsley Road | £ 70,000 | 0.05 KM |