Nottington Park, Nottington, Weymouth
By Symonds & Sampson
£ 525,000
Reviews
4 out of 5 stars
Symonds & Sampson says ..
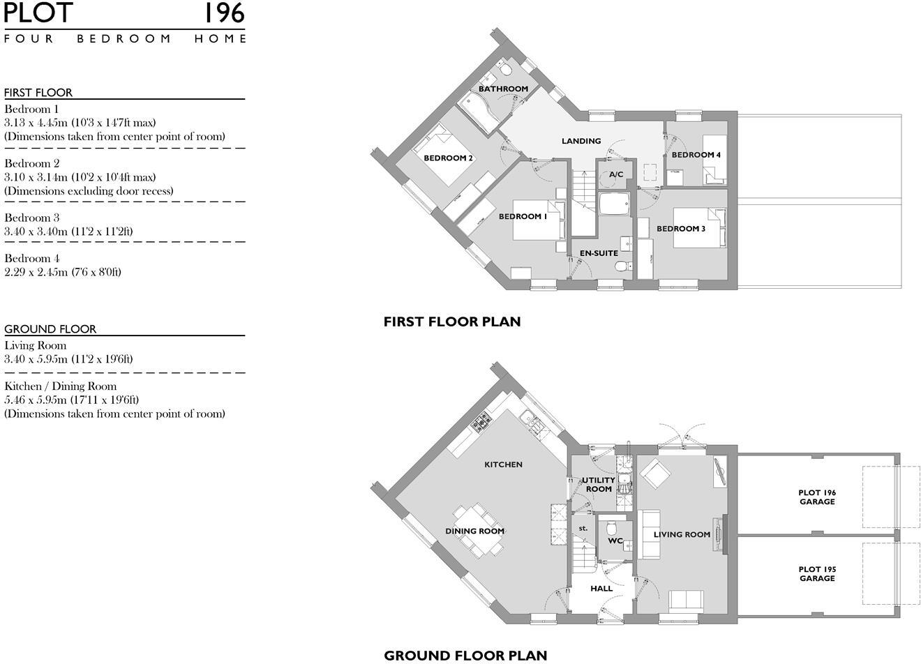
A spacious semi detached home, plot 196 includes a separate sitting room, kitchen/dining room, utility room, three double bedrooms, one with ensuite, single bedroom, bathroom, single garage with additional parking for two cars.
Property Oracle says ..
This property is a new build, four-bedroom house located in Nottington Park, a new development in Weymouth, Dorset. The property benefits from a modern design and finish, as shown in the provided images. The kitchen and bathrooms appear contemporary and well-equipped. The house also includes a garden, a valuable asset in the current market. The location is close to local schools, with several rated ‘Good’ or ‘Outstanding’ within a reasonable distance. Transportation links to Weymouth and Dorchester are also accessible, although the precise proximity to shops and other amenities is not specified. The list price of £525,000 is higher than the average house price in the area (£316,485), but comparable to other recent sales in Nottington Park, suggesting that it may reflect the premium associated with new-build properties and the perceived desirability of the development. The lack of plot size information makes a definitive assessment of land value difficult.
Therefore, we give this property 8 / 10. *Disclaimer: This is our option and does constitute a recommendation or financial advice. Do your own research. *
- Price
- 7
- Condition
- 10
- Location
- 8
- Land
- 7
- Bedrooms
- 4
- Bathrooms
- 2
- Sqft (est)
- 1,005.94
The heatmap indicates the level of crime in the area. The color of the heatmap indicates the crime severity and recency.
Metrics Year-on-Year
- Average area value
- 353,333.00 £Decreased by 4.14 %
- Est sale value
- 370,185.92 £Increased by 18.33 %
- Average area rental value
- 1,158.00 £/moDecreased by 13.32 %
- Est letting value
- 1,005.94 £/moUnchanged by 0.00 %
- Est rental Yield
- 3.93 %Decreased by 9.66 %
- Crime Rate
- 0.00 %
Agent Activity
Symonds & Sampson created the listing.
Nearby Schools
| Name | Type | Ofsted | Distance |
|---|---|---|---|
| Wyvern Academy | Academy Special Converter | Good | 0.39 KM |
| Wey Valley Academy | Academy Converter | 0.54 KM | |
| St Nicholas And St Laurence Church Of England Primary School, Broadwey | Voluntary Aided School | Outstanding | 0.66 KM |
| Radipole Primary School | Community School | Good | 1.19 KM |
| Southill Primary School | Community School | Good | 1.75 KM |
Images
Nearby Streets
| Name | Average Price | Average Sqft | Distance |
|---|---|---|---|
| The Drove | £ 471,667 | 0 | 0.00 KM |
| Court Road | £ 0 | 0 | 0.00 KM |
| Monterey Place | £ 635,000 | 0 | 0.00 KM |
| North Lodge | £ 0 | 0 | 0.00 KM |
| Rectory Cottages | £ 0 | 0 | 0.00 KM |
Nearby Transport
| Name | NLC | TLC | Distance |
|---|---|---|---|
| Upwey | 5967 | UPW | 1.05 KM |
| Weymouth | 5965 | WEY | 3.76 KM |
| Dorchester West | 5962 | DCW | 8.33 KM |
| Dorchester South | 5961 | DCH | 8.42 KM |
Nearby Listings
| Address | Price | Type | Score | Distance |
|---|---|---|---|---|
| Nottington Park, Nottington, Weymouth | £ 330,000 | BUY | 7 / 10 | 0.00 KM |
| Nottington Park, Nottington, Weymouth | £ 380,000 | BUY | 8 / 10 | 0.00 KM |
| Nottington Park, Nottington, Weymouth | £ 385,000 | BUY | 8 / 10 | 0.00 KM |
| The Drove, Nottington Park | £ 349,950 | BUY | 7 / 10 | 0.00 KM |
| Loveridge Grove, Nottington Park | £ 380,000 | BUY | Unknown | 0.00 KM |
Nearby Properties
| Address | Price | Distance |
|---|---|---|
| 18 Nottington Lane | £ 390,000 | 0.23 KM |
| 22 Nottington Lane | £ 450,000 | 0.24 KM |
| The Beeches | £ 270,000 | 0.24 KM |
| Meadville | £ 260,000 | 0.24 KM |
| 26 Nottington Lane | £ 660,000 | 0.24 KM |