Brooklands Road, Chapel-En-Le-Frith, High Peak
By Gascoigne Halman
£ 399,950
Reviews
3 out of 5 stars
Gascoigne Halman says ..
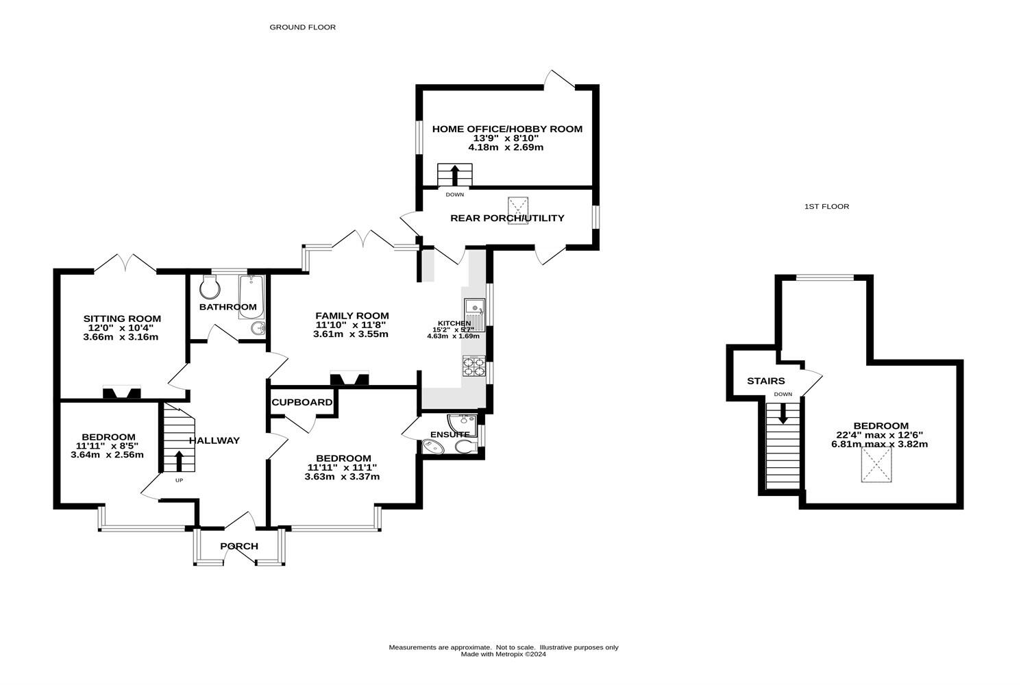
A beautifully presented and well appointed three bedroom detached bungalow on a generous corner plot. The property has undergone significant improvements by the current owners to create a stunning home with modern fittings, ensuite to master bedroom and first floor bedroom with stunning views to ...
Property Oracle says ..
This three-bedroom detached bungalow in Chapel-en-le-Frith, Derbyshire, is presented in excellent condition, showcasing a recent program of improvements. The property boasts a modern kitchen and bathrooms, updated interior design, and a sizeable garden that adds significant value to the property. The property is situated in a convenient area with reasonable proximity to local schools, which are rated well according to Ofsted reports, and transport links. Chapel-en-le-Frith train station offers access to Buxton and other locations. The nearby streets exhibit a range of property values, suggesting the location itself is desirable, though property values can fluctuate based on many additional factors. The lack of precise square footage data for comparable sales in the area presents a challenge for a conclusive property valuation. Given these details, it can be stated that the property represents a strong potential purchase, but prospective buyers are encouraged to conduct a thorough independent valuation to confirm their own price assessment before committing to an offer.
Therefore, we give this property 7 / 10. *Disclaimer: This is our option and does constitute a recommendation or financial advice. Do your own research. *
- Price
- 7
- Condition
- 8
- Location
- 7
- Land
- 7
- Bedrooms
- 3
- Bathrooms
- 2
- Sqft (est)
- 932.91
The heatmap indicates the level of crime in the area. The color of the heatmap indicates the crime severity and recency.
Metrics Year-on-Year
- Average area value
- 334,167.00 £Increased by 24.23 %
- Est sale value
- 239,757.87 £Decreased by 19.44 %
- Average area rental value
- 1,252.00 £/moIncreased by 4.33 %
- Est letting value
- 0.00 £/moDecreased by 100.00 %
- Est rental Yield
- 4.50 %Decreased by 15.89 %
- Crime Rate
- 2.00 %Unchanged by 0.00 %
Agent Activity
Gascoigne Halman created the listing.
Nearby Schools
| Name | Type | Ofsted | Distance |
|---|---|---|---|
| Chapel-En-Le-Frith Cofe Vc Primary School | Voluntary Controlled School | Good | 1.15 KM |
| Chapel-En-Le-Frith High School | Community School | Good | 2.70 KM |
| Dove Holes Cofe Primary School | Voluntary Controlled School | Good | 2.89 KM |
| The Meadows | Other Independent Special School | Outstanding | 2.96 KM |
| Chinley Primary School | Foundation School | Good | 3.62 KM |
Images
Nearby Streets
| Name | Average Price | Average Sqft | Distance |
|---|---|---|---|
| Brooklands Road | £ 0 | 0 | 0.00 KM |
| Fernbank | £ 0 | 0 | 0.00 KM |
| Heyworth Road | £ 0 | 0 | 0.00 KM |
| Coarses View | £ 250,000 | 0 | 0.00 KM |
| Brookside Path | £ 420,000 | 0 | 0.00 KM |
Nearby Transport
| Name | NLC | TLC | Distance |
|---|---|---|---|
| Chapel-En-Le-Frith | 2762 | CEF | 2.56 KM |
| Dove Holes | 2766 | DVH | 2.71 KM |
| Chinley | 2823 | CLY | 5.41 KM |
| Buxton | 2946 | BUX | 7.10 KM |
| Whaley Bridge | 2772 | WBR | 9.59 KM |
Nearby Listings
| Address | Price | Type | Score | Distance |
|---|---|---|---|---|
| Brooklands Road, Chapel-En-Le-Frith, High Peak | £ 399,950 | BUY | 7 / 10 | 0.00 KM |
| Buxton Road, Chapel-En-Le-Frith, High Peak | £ 225,000 | BUY | 5 / 10 | 0.17 KM |
| Sandyway Head, Buxton Road, High Peak | £ 275,000 | BUY | 6 / 10 | 0.18 KM |
| Ashfield Road, High Peak | £ 280,000 | BUY | 7 / 10 | 0.26 KM |
| Ashfield Road, Chapel-En-Le-Frith, SK23 | £ 300,000 | BUY | 6 / 10 | 0.27 KM |
Nearby Properties
| Address | Price | Distance |
|---|---|---|
| 9 Brooklands Road | £ 385,000 | 0.18 KM |
| 3 Brooklands Road | £ 230,000 | 0.18 KM |
| 15 Brooklands Road | £ 53,000 | 0.18 KM |
| 11 Brooklands Road | £ 220,000 | 0.18 KM |
| 17 Brooklands Road | £ 290,000 | 0.18 KM |