TA
Elm Green, Old Park Farm Estate, Dudley
By Taylors Estate Agents
£ 219,950
Reviews
3 out of 5 stars
Taylors Estate Agents says ..
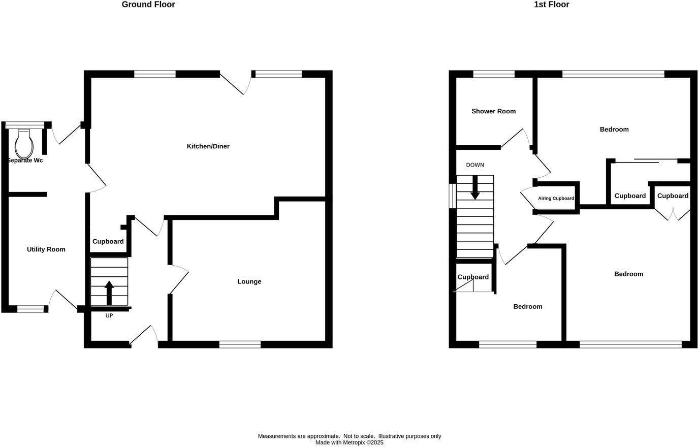
STYLISHLY PRESENTED THROUGHOUT offering surprisingly generous living space, located in the sought-after 'Greens' neighbourhood of Dudley. Benefiting from gas central heating and double glazing, this delightful property briefly comprises; hallway, lounge, kitchen diner, side hall/ utility ...
Property Oracle says ..
Therefore, we give this property 7 / 10. *Disclaimer: This is our option and does constitute a recommendation or financial advice. Do your own research. *
- Price
- 8
- Condition
- 8
- Location
- 7
- Land
- 7
- Bedrooms
- 3
- Bathrooms
- 1
The heatmap indicates the level of crime in the area. The color of the heatmap indicates the crime severity and recency.
Metrics Year-on-Year
- Average area value
- 231,400.00 £Decreased by 4.94 %
- Average area rental value
- 1,050.00 £/moIncreased by 7.03 %
- Est rental Yield
- 5.45 %Increased by 12.60 %
- Crime Rate
- 8.00 %Unchanged by 0.00 %
from 243,437.00 £
from 981.00 £/mo
from 4.84 %
from 8.00 %
Agent Activity
Taylors Estate Agents created the listing.
Nearby Schools
| Name | Type | Ofsted | Distance |
|---|---|---|---|
| Sycamore Short Stay School | Pupil Referral Unit | Good | 0.20 KM |
| Wrens Nest Primary School | Community School | Good | 0.57 KM |
| Wrens Nest Children'S Centre | Children's Centre | 0.63 KM | |
| Beacon Hill Academy | Academy Converter | Good | 0.82 KM |
| Bramford Primary School | Academy Sponsor Led | Good | 0.84 KM |
Images
Nearby Streets
| Name | Average Price | Average Sqft | Distance |
|---|---|---|---|
| Stanton Avenue | £ 0 | 0 | 0.00 KM |
| Shearing Close | £ 265,000 | 0 | 0.00 KM |
| Griffiths Road | £ 0 | 0 | 0.00 KM |
| Pool Street | £ 0 | 0 | 0.00 KM |
| Tamar Drive | £ 0 | 0 | 0.00 KM |
Nearby Transport
| Name | NLC | TLC | Distance |
|---|---|---|---|
| Coseley | 1143 | CSY | 2.69 KM |
| Tipton | 1159 | TIP | 4.23 KM |
| Dudley Port | 1212 | DDP | 6.04 KM |
| Cradley Heath | 4639 | CRA | 6.76 KM |
| Wolverhampton | 1218 | WVH | 6.78 KM |
Nearby Listings
| Address | Price | Type | Score | Distance |
|---|---|---|---|---|
| Elm Green, Old Park Farm Estate, Dudley | £ 219,950 | BUY | 7 / 10 | 0.00 KM |
| Sycamore Green, Old Park Farm, Dudley | £ 209,950 | BUY | 6 / 10 | 0.20 KM |
| Beech Green, Dudley, West Midlands, DY1 | £ 170,000 | BUY | 6 / 10 | 0.20 KM |
| Sycamore Green, Old Park Farm, Dudley | £ 219,950 | BUY | 7 / 10 | 0.20 KM |
| Elwell Crescent, Dudley, DY1 | £ 150,000 | BUY | 6 / 10 | 0.22 KM |
Nearby Properties
| Address | Price | Distance |
|---|---|---|
| 39 Elm Green | £ 113,000 | 0.01 KM |
| 52 Elm Green | £ 146,000 | 0.01 KM |
| 29 Elm Green | £ 168,000 | 0.01 KM |
| 44 Elm Green | £ 198,000 | 0.01 KM |
| 31 Elm Green | £ 157,950 | 0.01 KM |