eXp UK says ..
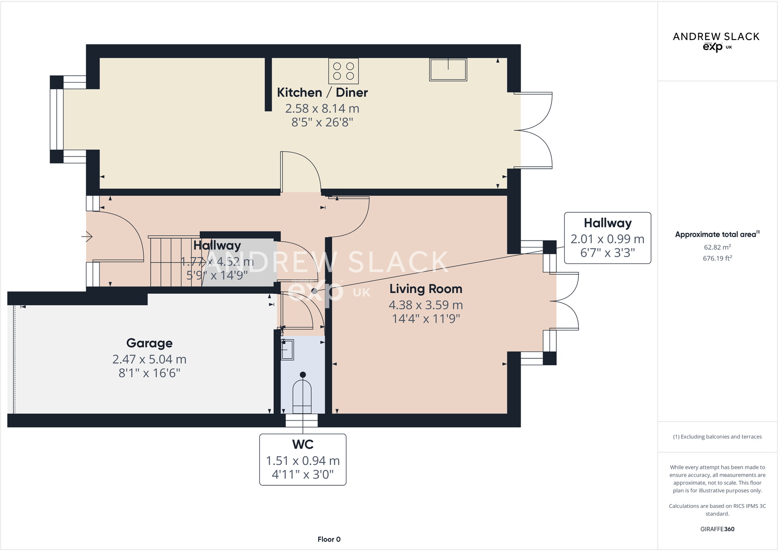
QUOTE REF: AS1056 THIS IS THE ONE!..Immaculate 4-Bed Family Home in Prestigious Berry Hill – Space, Style & Superb Location! This beautifully presented four-bedroom home in the heart of Berry Hill offers generous living space, a stunning open-plan kitchen/diner, spaciou...
Property Oracle says ..
This property is a 4-bedroom, 2-bathroom detached house located in Mansfield, Nottinghamshire. The property benefits from a good-sized garden, and appears to be in good condition based on the provided images. While the square footage is not provided, the plot size is approximately 1233 sqft. The list price is £325,000, which is higher than the average price of £234,000 for the area, but comparable to other detached properties on Millrise Road. The location is convenient, with several schools and transportation options nearby. More information on the internal square footage would be helpful to fully assess the value.
Therefore, we give this property 7 / 10. *Disclaimer: This is our option and does constitute a recommendation or financial advice. Do your own research. *
- Price
- 6
- Condition
- 8
- Location
- 7
- Land
- 7
- Bedrooms
- 4
- Bathrooms
- 2
- Lot (est)
- 1,233.33
The heatmap indicates the level of crime in the area. The color of the heatmap indicates the crime severity and recency.
Metrics Year-on-Year
- Average area value
- 263,333.00 £Increased by 23.93 %
- Average area rental value
- 890.00 £/moIncreased by 6.21 %
- Est rental Yield
- 4.06 %Decreased by 14.16 %
- Crime Rate
- 1.00 %Unchanged by 0.00 %
Agent Activity
eXp UK created the listing.
Nearby Schools
| Name | Type | Ofsted | Distance |
|---|---|---|---|
| King Edward Primary School & Nursery | Community School | Requires improvement | 0.89 KM |
| Mansfield Primary Academy | Academy Sponsor Led | Good | 1.10 KM |
| Asquith Primary School | Community School | Good | 1.25 KM |
| High Oakham Primary School | Community School | Good | 1.27 KM |
| Berry Hill Primary School | Community School | Good | 1.52 KM |
Images
Nearby Streets
| Name | Average Price | Average Sqft | Distance |
|---|---|---|---|
| Berry Hill Road | £ 295,000 | 0 | 0.00 KM |
| Foster Street | £ 135,000 | 0 | 0.00 KM |
| Regal Drive | £ 422,475 | 0 | 0.00 KM |
| Rosebery Hill | £ 0 | 0 | 0.00 KM |
| Borrowdale Close | £ 0 | 0 | 0.00 KM |
Nearby Transport
| Name | NLC | TLC | Distance |
|---|---|---|---|
| Mansfield | 1727 | MFT | 1.72 KM |
| Mansfield Woodhouse | 1728 | MSW | 3.75 KM |
| Sutton Parkway | 1861 | SPK | 7.08 KM |
| Shirebrook | 1595 | SHB | 8.01 KM |
| Newstead | 1863 | NSD | 8.25 KM |
Nearby Listings
| Address | Price | Type | Score | Distance |
|---|---|---|---|---|
| Millrise Road, Mansfield, NG18 4YP | £ 325,000 | BUY | 7 / 10 | 0.00 KM |
| Millrise Road, Mansfield, NG18 4YP | £ 290,000 | BUY | 7 / 10 | 0.00 KM |
| Millrise Road, Mansfield, NG18 | £ 125,000 | BUY | 5 / 10 | 0.02 KM |
| Millrise Road, Mansfield, NG18 | £ 125,000 | BUY | 6 / 10 | 0.02 KM |
| Millrise Road, Mansfield | £ 265,000 | BUY | 7 / 10 | 0.03 KM |
Nearby Properties
| Address | Price | Distance |
|---|---|---|
| 89 Millrise Road | £ 183,000 | 0.01 KM |
| 32 Millrise Road | £ 84,000 | 0.01 KM |
| 37 Millrise Road | £ 112,600 | 0.01 KM |
| 61 Millrise Road | £ 290,000 | 0.01 KM |
| 19 Millrise Road | £ 213,000 | 0.01 KM |