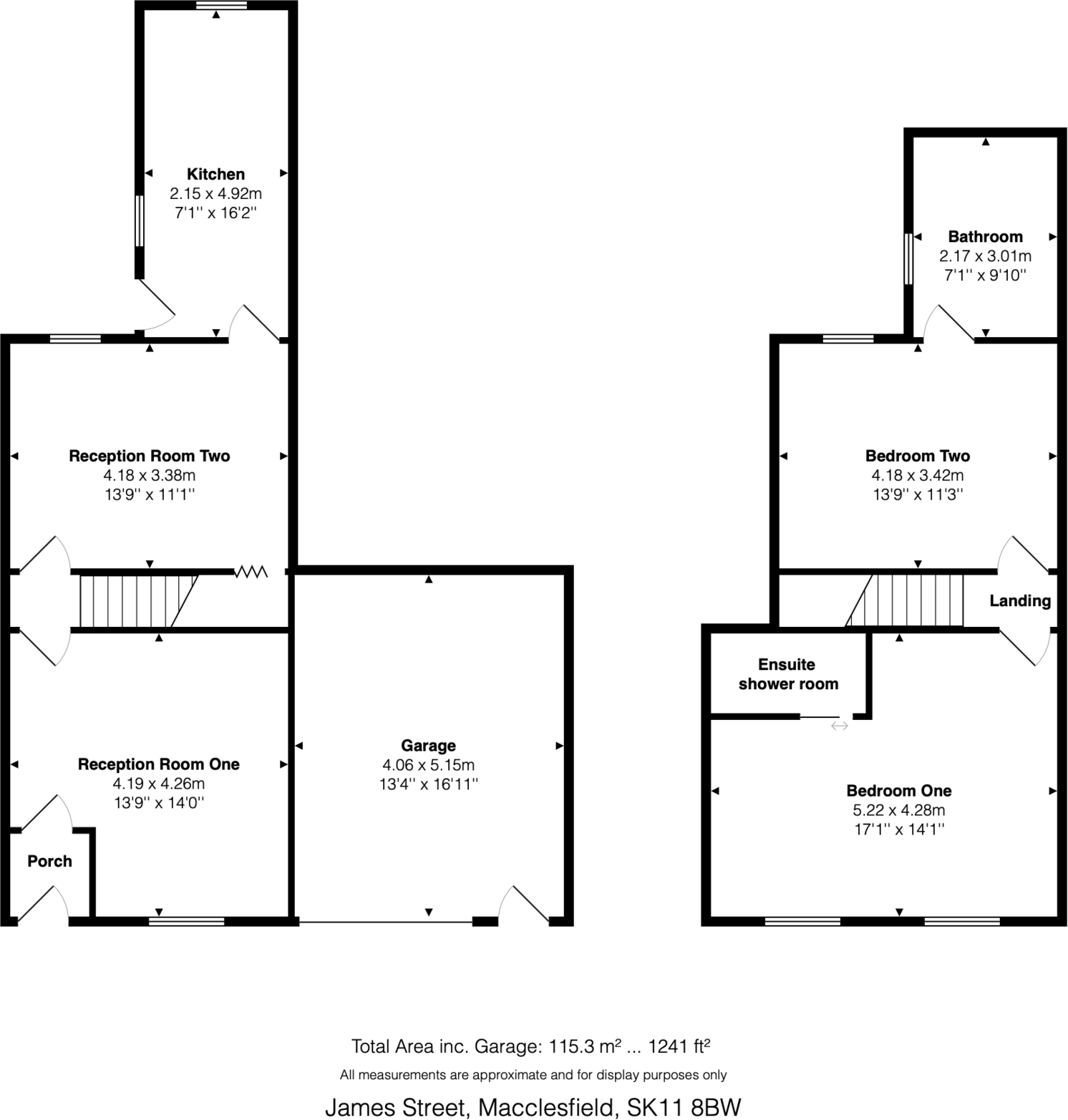
James Street, Macclesfield, SK11 8BW
By Alan Lee
£ 235,000
Reviews
2 out of 5 stars
Alan Lee says ..
A larger than average two double bedroom, two bathroom end terrace property with attached garage and private back garden. NO CHAIN. Modernisation required.
Property Oracle says ..
This two-bedroom, two-bathroom terraced house located on James Street in Macclesfield presents a mixed opportunity. The property’s position in Macclesfield offers access to amenities and transport links, but its condition is a primary concern. The interior photos clearly show that the property needs updating and extensive modernization throughout. The kitchen and bathrooms are particularly dated, requiring full renovation. The wallpaper and flooring are also outdated. The small rear garden is overgrown and needs landscaping. The listing price should be reviewed against current market values for similar properties considering the needed renovations. Potential buyers should factor in the cost of significant refurbishment before making an offer. The property has potential due to its location but will require significant investment to realise that potential. A detailed survey is vital before purchase to confirm structural soundness and any potential problems.
Therefore, we give this property 5 / 10. *Disclaimer: This is our option and does constitute a recommendation or financial advice. Do your own research. *
- Price
- 6
- Condition
- 4
- Location
- 7
- Land
- 3
- Bedrooms
- 2
- Bathrooms
- 2
- Sqft (est)
- 1,241.08
The heatmap indicates the level of crime in the area. The color of the heatmap indicates the crime severity and recency.
Metrics Year-on-Year
- Average area value
- 236,999.00 £Decreased by 1.19 %
- Est sale value
- 341,297.00 £Increased by 4.96 %
- Average area rental value
- 1,057.00 £/moIncreased by 6.66 %
- Est letting value
- 1,241.08 £/moUnchanged by 0.00 %
- Est rental Yield
- 5.35 %Increased by 7.86 %
- Crime Rate
- 9.00 %Unchanged by 0.00 %
Agent Activity
Alan Lee created the listing.
Nearby Schools
| Name | Type | Ofsted | Distance |
|---|---|---|---|
| Christ The King Catholic And Church Of England Primary School | Academy Sponsor Led | 0.77 KM | |
| Parkroyal Community School | Academy Converter | Good | 1.10 KM |
| Ash Grove Academy | Academy Converter | 1.19 KM | |
| Ash Grove Children'S Centre | Children's Centre | 1.20 KM | |
| The Macclesfield Academy | Academy Sponsor Led | Requires improvement | 1.46 KM |
Images
Nearby Streets
| Name | Average Price | Average Sqft | Distance |
|---|---|---|---|
| Harpur Close | £ 0 | 0 | 0.00 KM |
| Thistleton Close | £ 0 | 0 | 0.00 KM |
| Grapes Street | £ 0 | 0 | 0.00 KM |
| Smith Street | £ 0 | 0 | 0.00 KM |
| A536 | £ 0 | 0 | 0.00 KM |
Nearby Transport
| Name | NLC | TLC | Distance |
|---|---|---|---|
| Macclesfield | 2871 | MAC | 0.77 KM |
| Prestbury | 2875 | PRB | 5.05 KM |
| Adlington (Cheshire) | 2939 | ADC | 7.47 KM |
Nearby Listings
| Address | Price | Type | Score | Distance |
|---|---|---|---|---|
| Chapel Street, Macclesfield, Cheshire, SK11 | £ 115,000 | BUY | 6 / 10 | 0.03 KM |
| Chapel Street, Macclesfield | £ 155,000 | BUY | 5 / 10 | 0.05 KM |
| Chapel Court, Chapel Street, Macclesfield | £ 145,000 | BUY | 4 / 10 | 0.05 KM |
| James Street, Macclesfield | £ 220,000 | BUY | 7 / 10 | 0.05 KM |
| Peel Street, Macclesfield, SK11 | £ 180,000 | BUY | 5 / 10 | 0.09 KM |
Nearby Properties
| Address | Price | Distance |
|---|---|---|
| 55 Chapel Street | £ 415,000 | 0.02 KM |
| 63 Chapel Street | £ 105,000 | 0.02 KM |
| 44 Chapel Street | £ 136,000 | 0.02 KM |
| 42 Chapel Street | £ 138,000 | 0.02 KM |
| 73 Chapel Street | £ 160,000 | 0.02 KM |