Broad Lane, Hale, WA15
JA

Broad Lane, Hale, WA15

By Jackson-Stops

£ 4,500,000

Reviews

4 out of 5 stars

Jackson-Stops says ..

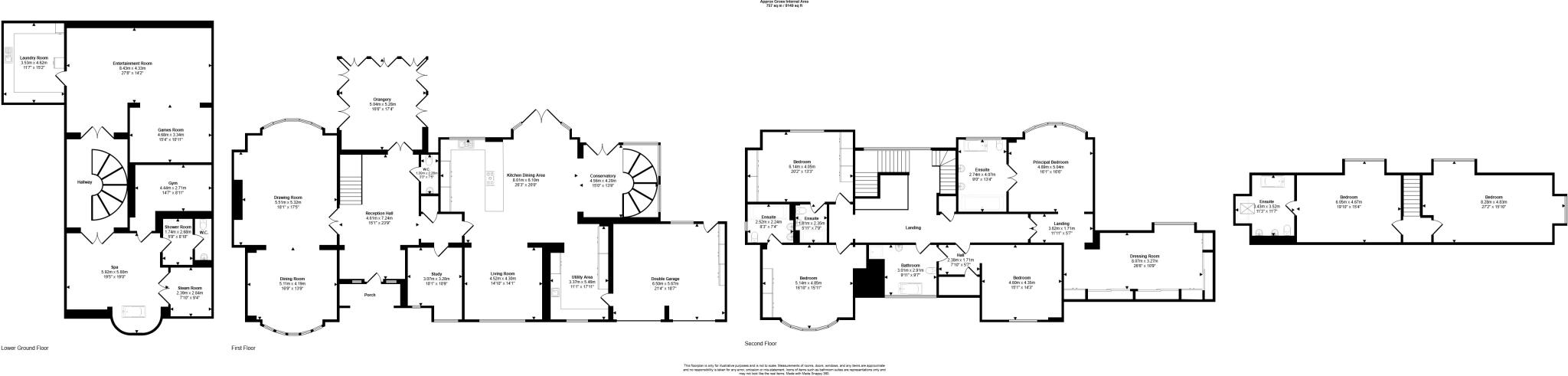
A handsome detached property of superb proportions, extending to over 8000 sq ft, standing in delightful gardens in all over ½ an acre. Constructed with rendered elevations under a slated roof, this handsome detached property offers outstanding family accommodation of superb pro...

Property Oracle says ..

Broad Lane is located in Hale Barns, a highly sought-after area in Trafford, Greater Manchester. The area is known for its excellent schools, such as Saint Ambrose College (rated ‘Good’ by Ofsted) and Well Green Primary School (‘Outstanding’), both within a short distance of the property. The proximity to several train stations, including Hale (Manchester) and Ashley, provides convenient access to Manchester city centre and other areas. This contributes to a high location score.

The property itself appears to be in excellent condition, based on the provided images. The modern, high-quality finishes and fixtures are evident throughout, from the kitchen and bathrooms to the living areas. There is no visible evidence of wear and tear or the need for significant repairs or renovations. The property boasts a large, well-maintained garden, adding to its overall appeal.

Considering the list price of £4,500,000, the average price in the area (£1,248,254), and the average price per square foot (£582), the property’s price seems high relative to the area average. However, the size (2,861.05 sqft), high-end finishes, and desirable location justify a higher price per square foot than the area average. The lack of plot size information makes it difficult to determine a precise price-to-land ratio, which could further inform the pricing analysis. Nearby comparable properties on Broad Lane are priced significantly lower, suggesting the list price may be at the higher end of the market. The property includes features such as a gym, sauna, and conservatory, which are desirable amenities that would typically command a premium. The overall condition, location, and features of the property suggest a high value.

Therefore, we give this property 8 / 10. *Disclaimer: This is our option and does constitute a recommendation or financial advice. Do your own research. *

Price
7
Condition
10
Location
10
Land
8
Bedrooms
6
Bathrooms
6
Sqft (est)
2,861.05

The heatmap indicates the level of crime in the area. The color of the heatmap indicates the crime severity and recency.

Metrics Year-on-Year

Average area value
1,178,077.00 £
Increased by 16.31 %
from 1,012,910.00 £
Est sale value
1,439,108.15 £
Increased by 4.14 %
from 1,381,887.15 £
Average area rental value
4,832.00 £/mo
Increased by 0.56 %
from 4,805.00 £/mo
Est letting value
5,722.10 £/mo
Unchanged by 0.00 %
from 5,722.10 £/mo
Est rental Yield
4.92 %
Decreased by 13.53 %
from 5.69 %
Crime Rate
0.00 %
from 0.00 %

Agent Activity

  • Jackson-Stops created the listing.

Nearby Schools

NameTypeOfstedDistance
Saint Ambrose CollegeAcademy ConverterGood0.49 KM
St Ambrose Prep SchoolOther Independent School0.83 KM
Well Green Primary SchoolCommunity SchoolOutstanding1.10 KM
Elmridge Primary SchoolAcademy Converter1.50 KM
Altrincham CollegeAcademy ConverterGood1.64 KM

Images

Living Kitchen Living Kitchen Living Kitchen Living Kitchen Living Room Dining Room Orangery Dressing Room Bedroom Ensuite Front Elevation Rear Elevation Reception Hall Drawing Room Study Entertainment Room Entertainment Room Spa Gym Principal Bedroom Ensuite Bedroom Ensuite Gated Entrance Front Elevation Rear Elevation Terrace Terrace

Nearby Streets

NameAverage PriceAverage SqftDistance
The Coppice £ 1,395,00000.00 KM
Carlton Court £ 000.00 KM
Woodhead Road £ 000.00 KM
Egerton Road £ 000.00 KM
Meadow Avenue £ 000.00 KM

Nearby Transport

NameNLCTLCDistance
Ashley2850ASY2.45 KM
Hale (Manchester)2845HAL2.78 KM
Altrincham2806ALT3.25 KM
Navigation Road2940NVR3.61 KM
Mobberley2849MOB4.59 KM

Nearby Listings

AddressPriceTypeScoreDistance
Broad Lane, Hale, WA15 £ 4,500,000BUY8 / 100.00 KM
Broad Lane, Hale WA15 £ 4,500,000BUY8 / 100.02 KM
Broad Lane, Hale, WA15 £ 1,495,000BUY8 / 100.04 KM
Broadway, Hale, Altrincham £ 2,395,000BUYUnknown0.13 KM
Broadway, Hale £ 2,500,000BUY7 / 100.15 KM

Nearby Properties

AddressPriceDistance
24 Broad Lane £ 2,500,0000.09 KM
30 Broad Lane £ 1,450,0000.09 KM
28 Broad Lane £ 2,550,0000.09 KM
18 Broad Lane £ 1,900,0000.09 KM
5 White House Drive £ 1,650,0000.09 KM