WA
Greencroft Gardens, South Hampstead, NW6
By Wayne & Silver
£ 725,000
Reviews
3 out of 5 stars
Wayne & Silver says ..
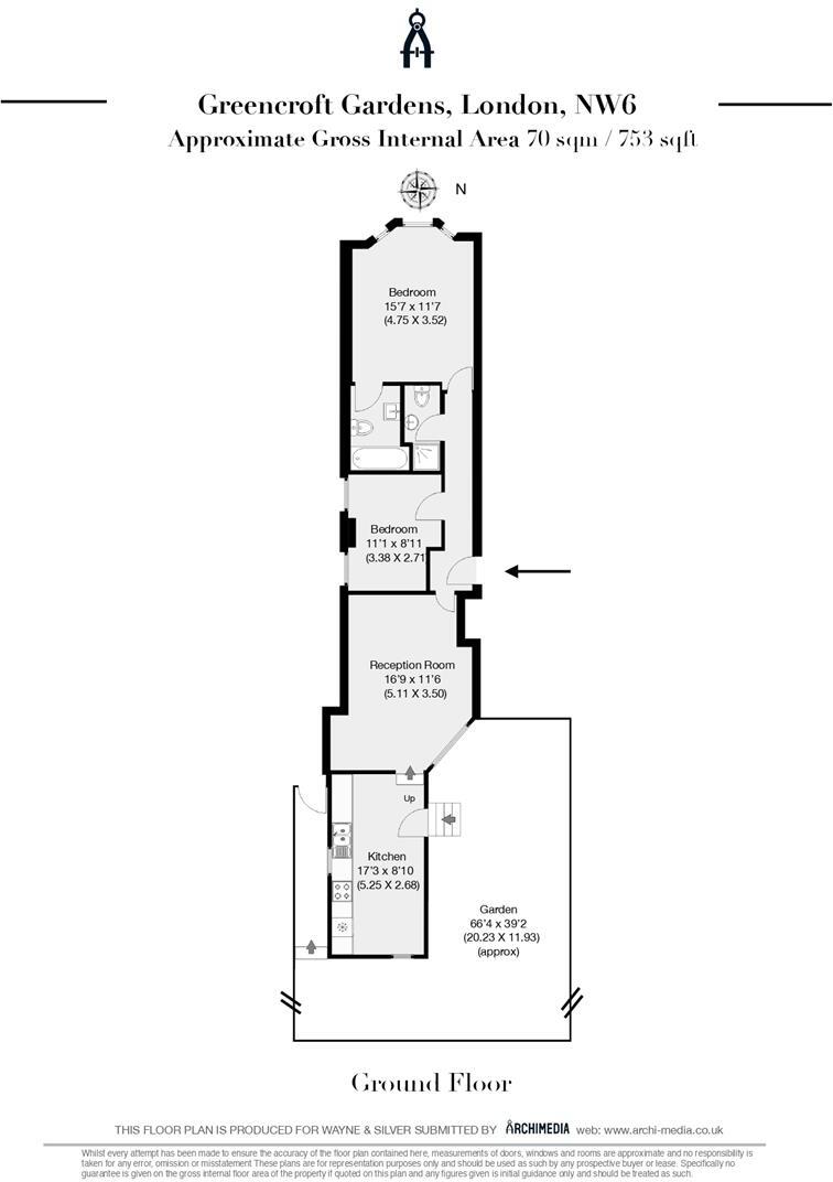
Spacious 2 bedroom 2 bathroom ground floor apartment with direct access to communal garden set within grand period house. Located in the tranquil South Hampstead conservation area this 753sq ft / 70 sq m apartment features a bright 16'9 reception room leading to a large eat-in kitchen wi...
Property Oracle says ..
Therefore, we give this property 7 / 10. *Disclaimer: This is our option and does constitute a recommendation or financial advice. Do your own research. *
- Price
- 8
- Condition
- 8
- Location
- 8
- Land
- 7
- Bedrooms
- 2
- Bathrooms
- 2
- Sqft (est)
- 753.47
The heatmap indicates the level of crime in the area. The color of the heatmap indicates the crime severity and recency.
Metrics Year-on-Year
- Average area value
- 952,139.00 £Decreased by 44.31 %
- Est sale value
- 796,417.79 £Decreased by 13.08 %
- Average area rental value
- 2,414.00 £/moDecreased by 22.03 %
- Est letting value
- 1,506.94 £/moUnchanged by 0.00 %
- Est rental Yield
- 3.04 %Increased by 40.09 %
- Crime Rate
- 1.00 %Unchanged by 0.00 %
from 1,709,750.00 £
from 916,219.52 £
from 3,096.00 £/mo
from 1,506.94 £/mo
from 2.17 %
from 1.00 %
Agent Activity
Wayne & Silver created the listing.
Nearby Schools
| Name | Type | Ofsted | Distance |
|---|---|---|---|
| Broadhurst School | Other Independent School | 0.03 KM | |
| Holy Trinity Cofe Primary School, Nw3 | Voluntary Aided School | Good | 0.41 KM |
| North Bridge House Pre-Prep School | Other Independent School | 0.45 KM | |
| South Hampstead High School | Other Independent School | 0.48 KM | |
| Southbank International School Hampstead | Other Independent School | 0.57 KM |
Images
Nearby Streets
| Name | Average Price | Average Sqft | Distance |
|---|---|---|---|
| Victoria Rise | £ 2,743,998 | 0 | 0.00 KM |
| Loudoun Road | £ 0 | 0 | 0.00 KM |
| The Grand Parade | £ 0 | 0 | 0.00 KM |
| College Crescent | £ 0 | 0 | 0.00 KM |
| Adelaide Road | £ 0 | 0 | 0.00 KM |
Nearby Transport
| Name | NLC | TLC | Distance |
|---|---|---|---|
| South Hampstead | 1451 | SOH | 0.46 KM |
| Finchley Road And Frognal | 1445 | FNY | 0.64 KM |
| West Hampstead | 1421 | WHD | 1.13 KM |
| West Hampstead Thameslink | 1525 | WHP | 1.23 KM |
| Kilburn High Road | 1415 | KBN | 1.47 KM |
Nearby Listings
| Address | Price | Type | Score | Distance |
|---|---|---|---|---|
| Greencroft Gardens, South Hampstead, NW6 | £ 725,000 | BUY | 7 / 10 | 0.00 KM |
| Greencroft Gardens, South Hampstead, NW6 | £ 700,000 | BUY | 5 / 10 | 0.07 KM |
| Goldhurst Terrace, South Hampstead, NW6 | £ 1,695,000 | BUY | 7 / 10 | 0.08 KM |
| Canfield Gardens, South Hampstead, London, NW6 | £ 650,000 | BUY | 7 / 10 | 0.10 KM |
| Canfield Gardens, South Hampstead NW6 | £ 860,000 | BUY | 7 / 10 | 0.10 KM |
Nearby Properties
| Address | Price | Distance |
|---|---|---|
| 5a Greencroft Gardens | £ 780,000 | 0.03 KM |
| 5b Greencroft Gardens | £ 605,000 | 0.03 KM |
| 3a Greencroft Gardens | £ 869,000 | 0.03 KM |
| 13a Greencroft Gardens | £ 163,000 | 0.03 KM |
| 15 Greencroft Gardens | £ 1,290,000 | 0.03 KM |