Gardner Way, Barrow upon Soar, Loughborough
By Bentons
£ 895,000
Reviews
3 out of 5 stars
Bentons says ..
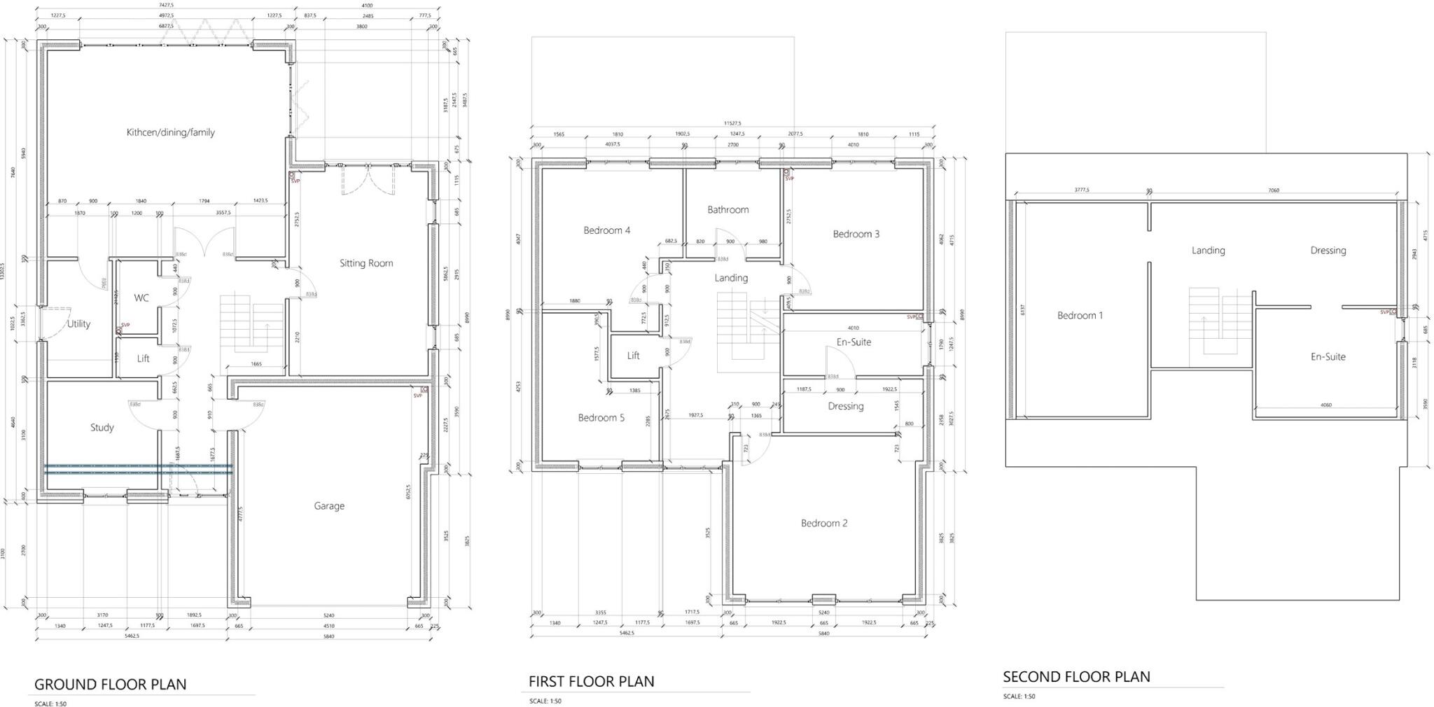
A brand new high specification three storey, five bedroomed detached residence built by Messrs Paul Bott Homes Ltd in this exclusive cul-de-sac position. There is a heat source pump system with underfloor heating through the whole property, uPVC windows (grey on white), finished in oak russet br...
Property Oracle says ..
This five-bedroom, three-bathroom property located on Gardner Way, Barrow upon Soar, is presented as a modern, high-quality home. The images suggest a recently constructed or extensively renovated property with a contemporary design and what appears to be a high standard of finish. The location benefits from being within a reasonable distance of good schools and the train station, providing access to Loughborough and other areas. However, the relative lack of developed garden space and the high list price compared to some other properties in Barrow upon Soar are factors to consider. The property’s relatively small plot size, compared to the list price, is a potential drawback. More information on the internal features and the precise plot size would be beneficial in a full valuation. The lack of detailed information on the nearby properties, such as square footage and plot sizes, makes a comprehensive comparison challenging. Overall, this property offers a modern, well-finished home in a convenient location, but the price may be a significant factor for potential buyers.
Therefore, we give this property 6 / 10. *Disclaimer: This is our option and does constitute a recommendation or financial advice. Do your own research. *
- Price
- 7
- Condition
- 9
- Location
- 7
- Land
- 4
- Bedrooms
- 5
- Bathrooms
- 3
- Sqft (est)
- 2,512.30
The heatmap indicates the level of crime in the area. The color of the heatmap indicates the crime severity and recency.
Metrics Year-on-Year
- Average area value
- 371,286.00 £Increased by 10.99 %
- Est sale value
- 1,027,530.70 £Increased by 24.70 %
- Average area rental value
- 1,225.00 £/moIncreased by 32.29 %
- Est letting value
- 2,512.30 £/mo
- Est rental Yield
- 3.96 %Increased by 19.28 %
- Crime Rate
- 2.00 %Unchanged by 0.00 %
Agent Activity
Bentons created the listing.
Nearby Schools
| Name | Type | Ofsted | Distance |
|---|---|---|---|
| Humphrey Perkins School | Academy Converter | Good | 0.86 KM |
| Barrow Hall Orchard Church Of England Primary School | Academy Converter | Good | 1.57 KM |
| Quorn Hall School | Other Independent Special School | Outstanding | 1.94 KM |
| Rawlins Academy | Academy Converter | Good | 2.15 KM |
| Homefield College | Special Post 16 Institution | Good | 2.92 KM |
Images
Nearby Streets
| Name | Average Price | Average Sqft | Distance |
|---|---|---|---|
| Alder Road | £ 625,000 | 0 | 0.00 KM |
| Loweswater Close | £ 0 | 0 | 0.00 KM |
| Westley Close | £ 0 | 0 | 0.00 KM |
| Salters Lane | £ 0 | 0 | 0.00 KM |
| Ash Close | £ 0 | 0 | 0.00 KM |
Nearby Transport
| Name | NLC | TLC | Distance |
|---|---|---|---|
| Barrow-Upon-Soar | 1903 | BWS | 1.90 KM |
| Loughborough | 1897 | LBO | 4.66 KM |
| Sileby | 1902 | SIL | 6.21 KM |
Nearby Listings
| Address | Price | Type | Score | Distance |
|---|---|---|---|---|
| Gardner Way, Barrow Upon Soar | £ 895,000 | BUY | 7 / 10 | 0.04 KM |
| Gardner Way, Barrow Upon Soar | £ 895,000 | BUY | 7 / 10 | 0.04 KM |
| Brooker Close, Barrow Upon Soar, LE12 | £ 600,000 | BUY | 7 / 10 | 0.40 KM |
| Lockwood Road, Barrow upon Soar, Loughborough, Leicestershire, LE12 | £ 585,000 | BUY | 7 / 10 | 0.43 KM |
| Marianne Close, Barrow Upon Soar, Loughborough | £ 325,000 | BUY | 8 / 10 | 0.56 KM |
Nearby Properties
| Address | Price | Distance |
|---|---|---|
| 4 Gardner Way | £ 530,000 | 0.10 KM |
| 16 Brooker Close | £ 67,500 | 0.34 KM |
| 1 Brooker Close | £ 447,000 | 0.34 KM |
| 2 Brooker Close | £ 250,000 | 0.34 KM |
| 23 Lockwood Road | £ 202,000 | 0.43 KM |