Vineyards Road, Northaw, Hertfordshire, EN6
ST

Vineyards Road, Northaw, Hertfordshire, EN6

By Statons

£ 5,950,000

Reviews

4 out of 5 stars

Statons says ..

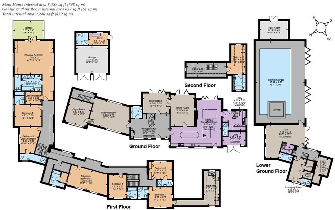
Tudor Hall is a wonderful eight bedroom family home, positioned in a private location with far-reaching countryside views and has been completely restored and extended over recent years. The property benefits from a superb leisure complex comprising swimming pool, jacuzzi, sauna, steam room and g...

Property Oracle says ..

This property is located in Northaw, Hertfordshire, a village known for its affluent residents and tranquil atmosphere. The area boasts excellent schools, including the nearby Northaw Church of England Primary School which is rated as “Good” by Ofsted. Transportation links are relatively close, with Cuffley train station approximately 3.54km away, providing access to London and other major towns. The property itself is a large, well-maintained family home with extensive grounds, including a swimming pool, tennis court, and ample space for outdoor activities. Based on the images, the property appears to be in excellent condition, with high-quality finishes and modern amenities. The large plot size (9,246 sq ft) is a significant advantage, providing privacy and space. However, the list price of £5,950,000 is considerably higher than the average house price in the area (£1,468,624) and the average price per sqft (£501). While the property’s size, features, and location justify a premium price, a detailed comparison with similar properties in the area is needed to determine the precise value. The high list price may be justified by the unique features and the highly sought-after location on Vineyards Road, but potential buyers will need to carefully assess the value proposition.

Therefore, we give this property 8 / 10. *Disclaimer: This is our option and does constitute a recommendation or financial advice. Do your own research. *

Price
7
Condition
9
Location
9
Land
10
Bedrooms
8
Bathrooms
8
Sqft (est)
2,242.66
Lot (est)
9,246.00

The heatmap indicates the level of crime in the area. The color of the heatmap indicates the crime severity and recency.

Metrics Year-on-Year

Average area value
1,009,989.00 £
Decreased by 19.35 %
from 1,252,242.00 £
Est sale value
1,287,286.84 £
Increased by 4.17 %
from 1,235,705.66 £
Average area rental value
1,648.00 £/mo
Decreased by 66.81 %
from 4,965.00 £/mo
Est letting value
0.00 £/mo
Decreased by 100.00 %
from 4,485.32 £/mo
Est rental Yield
1.96 %
Decreased by 58.82 %
from 4.76 %
Crime Rate
0.00 %
from 0.00 %

Agent Activity

  • Statons created the listing.

Nearby Schools

NameTypeOfstedDistance
Northaw Church Of England Primary SchoolVoluntary Aided SchoolGood0.77 KM
Queenswood SchoolOther Independent School2.81 KM
Oakmere Primary SchoolCommunity SchoolGood3.03 KM
H1 Pb1 Family CentreChildren's Centre3.06 KM
St John'S Preparatory And Senior SchoolOther Independent SchoolOutstanding3.28 KM

Images

Picture No. 65 Picture No. 43 Picture No. 85 Photo Picture No. 93 Picture No. 92 Picture No. 72 Picture No. 73 Picture No. 34 Picture No. 35 Picture No. 49 Picture No. 75 Picture No. 79 Picture No. 51 Picture No. 26 Picture No. 27 Photo Photo Picture No. 54 Google Maps Image Picture No. 81 Picture No. 71 Picture No. 41 Picture No. 82 Picture No. 84 Picture No. 87 Picture No. 74 Picture No. 67 Picture No. 64 Picture No. 39 Picture No. 45 Picture No. 31 Picture No. 46 Picture No. 66

Nearby Streets

NameAverage PriceAverage SqftDistance
Church Lane £ 381,66700.00 KM

Nearby Transport

NameNLCTLCDistance
Cuffley6008CUF3.54 KM
Crews Hill6007CWH4.72 KM
Potters Bar6022PBR5.77 KM
Hadley Wood6075HDW5.89 KM
Brookmans Park6074BPK7.07 KM

Nearby Listings

AddressPriceTypeScoreDistance
Vineyards Road, Northaw, Hertfordshire, EN6 £ 5,950,000BUY8 / 100.00 KM
Vineyards Road, Northaw, Potters Bar, Hertfordshire, EN6 £ 575,000BUY6 / 100.04 KM
Vineyards Road, Potters Bar, EN6 £ 5,950,000BUY7 / 100.06 KM
Carramore House , 50 Vineyards Road, Northaw, Potters Bar, EN6 4PD £ 3,000,000BUY7 / 100.25 KM
Vineyards Road, Northaw, Potters Bar £ 1,350,000BUY7 / 100.42 KM

Nearby Properties

AddressPriceDistance
High Willows £ 1,600,0000.43 KM
28 Vineyards Road £ 1,000,0000.62 KM
40 Vineyards Road £ 1,895,0000.62 KM
10 Vineyards Road £ 611,0000.62 KM
38 Vineyards Road £ 388,0000.62 KM