LAND AT HOLE HOUSE FARM, CHORLEY ROAD, ADLINGTON, CHORLEY, LANCASHIRE, PR6 9LP
By Lamb & Swift Commercial
£ 1,000,000
Reviews
3 out of 5 stars
Lamb & Swift Commercial says ..
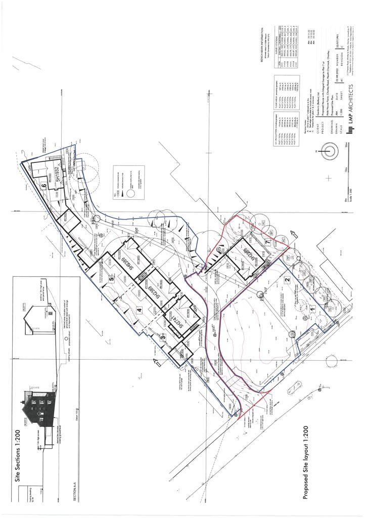
Planning approval has been granted by Chorley Council as follows:- 18/00060/FUL Demolition of the existing farmhouse and outbuildings and erection of 6 detached houses associated garages and access improvements. Plus 22/01109/FUL Erection of one detached dwelling. The demolition of the form...
Property Oracle says ..
The property is a plot of land located in Adlington, Chorley, Lancashire. The surrounding area has good access to transportation and schools. The land itself appears to be mostly grass-covered with some trees and bushes. The asking price is significantly higher than the average house price in the area.
Therefore, we give this property 7 / 10. *Disclaimer: This is our option and does constitute a recommendation or financial advice. Do your own research. *
- Price
- 3
- Condition
- 10
- Location
- 7
- Land
- 9
- Bedrooms
- 0
- Bathrooms
- 0
The heatmap indicates the level of crime in the area. The color of the heatmap indicates the crime severity and recency.
Metrics Year-on-Year
- Average area value
- 429,985.00 £Increased by 38.99 %
- Average area rental value
- 1,200.00 £/moIncreased by 23.33 %
- Est rental Yield
- 3.35 %Decreased by 11.14 %
- Crime Rate
- 20.00 %Unchanged by 0.00 %
Agent Activity
Lamb & Swift Commercial created the listing.
Nearby Schools
| Name | Type | Ofsted | Distance |
|---|---|---|---|
| Anderton Primary School | Community School | Good | 0.22 KM |
| Adlington St Paul'S Church Of England Primary School | Academy Sponsor Led | 0.38 KM | |
| Library Children'S Centre | Children's Centre | 0.56 KM | |
| St Joseph'S Catholic Primary School, Anderton | Voluntary Aided School | Good | 0.71 KM |
| Adlington Primary School | Community School | Good | 1.26 KM |
Images
Nearby Streets
| Name | Average Price | Average Sqft | Distance |
|---|---|---|---|
| Norwood Close | £ 320,000 | 0 | 0.00 KM |
| Lancaster Place | £ 0 | 0 | 0.00 KM |
| Belvedere Road | £ 0 | 0 | 0.00 KM |
| Melling Close | £ 325,000 | 0 | 0.00 KM |
| Grove Avenue | £ 0 | 0 | 0.00 KM |
Nearby Transport
| Name | NLC | TLC | Distance |
|---|---|---|---|
| Adlington (Lancashire) | 2641 | ADL | 0.76 KM |
| Blackrod | 2732 | BLK | 4.43 KM |
| Chorley | 2745 | CRL | 4.88 KM |
| Horwich Parkway | 8720 | HWI | 7.95 KM |
| Hindley | 2398 | HIN | 8.88 KM |
Nearby Listings
| Address | Price | Type | Score | Distance |
|---|---|---|---|---|
| LAND AT HOLE HOUSE FARM, CHORLEY ROAD, ADLINGTON, CHORLEY, LANCASHIRE, PR6 9LP | £ 1,000,000 | BUY | 7 / 10 | 0.00 KM |
| Chorley Road, Adlington, Chorley, PR6 | £ 220,000 | BUY | 6 / 10 | 0.02 KM |
| Chorley Road, Adlington, Chorley | £ 215,000 | BUY | 7 / 10 | 0.04 KM |
| Greenfield Road, Adlington | £ 84,950 | BUY | 5 / 10 | 0.13 KM |
| Mill Street, Adlington, PR6 | £ 150,000 | BUY | 6 / 10 | 0.14 KM |
Nearby Properties
| Address | Price | Distance |
|---|---|---|
| 135 Chorley Road | £ 170,000 | 0.01 KM |
| 169 Chorley Road | £ 113,000 | 0.01 KM |
| 151 Chorley Road | £ 145,000 | 0.03 KM |
| 129 Chorley Road | £ 47,500 | 0.03 KM |
| 131 Chorley Road | £ 110,000 | 0.03 KM |