Co-Op Lane, Pembroke Dock
By West Wales Properties
£ 70,000
Reviews
2 out of 5 stars
West Wales Properties says ..
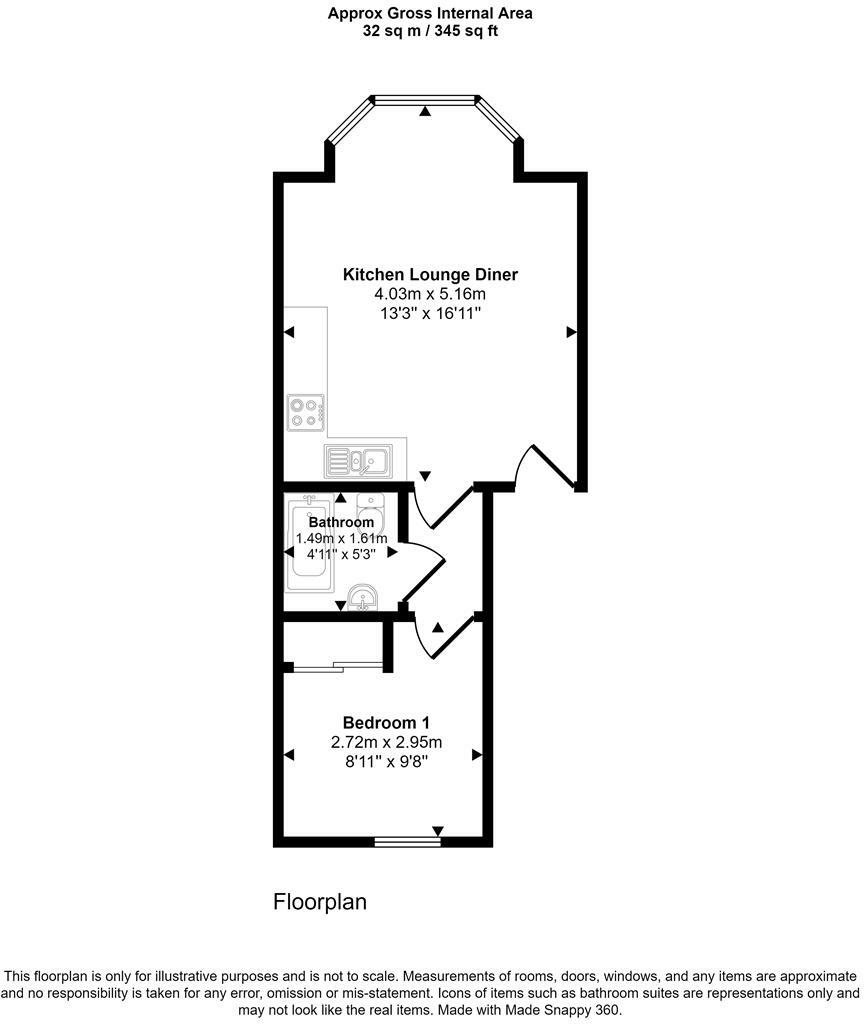
We are excited to offer this well presented one bedroom leasehold flat with a 999 year lease with 984 years remaining (2024). Situated on the first floor of the building, the property is also conveniently located in Pembroke Dock with a variety of amenities on your doorstep, including local shops...
Property Oracle says ..
This one-bedroom leasehold flat in Pembroke Dock, Wales, is listed at £70,000. The property is located on Co-op Lane, offering convenient access to local amenities. The provided photos showcase a clean, functional interior with a reasonably modern kitchen and bathroom. The flat appears well-maintained but lacks distinct high-end features. A key aspect to note is the complete absence of any outdoor space or garden. Compared to other properties in the area, the price appears reasonable, although a lack of precise square footage information for nearby properties makes a definitive comparison challenging. The 999-year lease with significant years remaining should appeal to investors and owner-occupiers alike. Buyers should consider the property’s lack of private outdoor space as a potential drawback, along with obtaining a full survey to confirm the overall condition of the property and to assess any potential future maintenance implications. The absence of detailed information about nearby properties’ specifications limits the accuracy of a comprehensive comparison, but generally, it seems an acceptable price. Prospective buyers should also investigate the local amenities in more depth and determine if the flat’s features match their lifestyle preferences and requirements.
Therefore, we give this property 5 / 10. *Disclaimer: This is our option and does constitute a recommendation or financial advice. Do your own research. *
- Price
- 7
- Condition
- 6
- Location
- 7
- Land
- 1
- Bedrooms
- 1
- Bathrooms
- 1
- Sqft (est)
- 345.00
The heatmap indicates the level of crime in the area. The color of the heatmap indicates the crime severity and recency.
Metrics Year-on-Year
- Average area value
- 278,905.00 £Increased by 2.67 %
- Est sale value
- 94,875.00 £Increased by 50.27 %
- Average area rental value
- 800.00 £/moDecreased by 34.53 %
- Est letting value
- 0.00 £/mo
- Est rental Yield
- 3.44 %Decreased by 36.30 %
- Crime Rate
- 39.00 %Unchanged by 0.00 %
Agent Activity
West Wales Properties created the listing.
Nearby Schools
| Name | Type | Ofsted | Distance |
|---|---|---|---|
| Pennar Community School | Welsh Establishment | 0.84 KM | |
| Pembroke Dock Cp School | Welsh Establishment | 1.40 KM | |
| Pembrokeshire Pupil Referral Service | Welsh Establishment | 1.90 KM | |
| Neyland Primary School | Welsh Establishment | 2.15 KM | |
| Ysgol Harri Tudur/Henry Tudor School | Welsh Establishment | 2.43 KM |
Images
Nearby Streets
| Name | Average Price | Average Sqft | Distance |
|---|---|---|---|
| Meyrick Owen Way | £ 0 | 0 | 0.00 KM |
| Victoria Road | £ 205,000 | 0 | 0.00 KM |
| King Street | £ 0 | 0 | 0.00 KM |
| Park Street | £ 200,000 | 0 | 0.00 KM |
| Albion Road | £ 121,613 | 0 | 0.00 KM |
Nearby Transport
| Name | NLC | TLC | Distance |
|---|---|---|---|
| Pembroke Dock | 4102 | PMD | 1.10 KM |
| Pembroke | 4101 | PMB | 5.09 KM |
| Lamphey | 4084 | LAM | 8.70 KM |
| Johnston (Pembs) | 4081 | JOH | 8.96 KM |
Nearby Listings
| Address | Price | Type | Score | Distance |
|---|---|---|---|---|
| Co-Op Lane, Pembroke Dock | £ 70,000 | BUY | 5 / 10 | 0.00 KM |
| Co-op Lane, Pembroke Dock | £ 100,000 | BUY | 5 / 10 | 0.02 KM |
| Co-Op Lane, Pembroke Dock, Pembrokeshire, SA72 | £ 75,000 | BUY | 5 / 10 | 0.03 KM |
| Co-op Lane, Pembroke Dock, Pembrokeshire, SA72 | £ 67,000 | BUY | 6 / 10 | 0.06 KM |
| Pembroke Street, Pembroke Dock | £ 100,000 | BUY | 4 / 10 | 0.09 KM |
Nearby Properties
| Address | Price | Distance |
|---|---|---|
| 3 Albion Square | £ 130,000 | 0.07 KM |
| 14 Commercial Row | £ 40,000 | 0.10 KM |
| 36 Pembroke Street | £ 58,500 | 0.10 KM |
| 35 Pembroke Street | £ 127,000 | 0.10 KM |
| 1 Pembroke Street | £ 94,000 | 0.10 KM |