HJC says ..
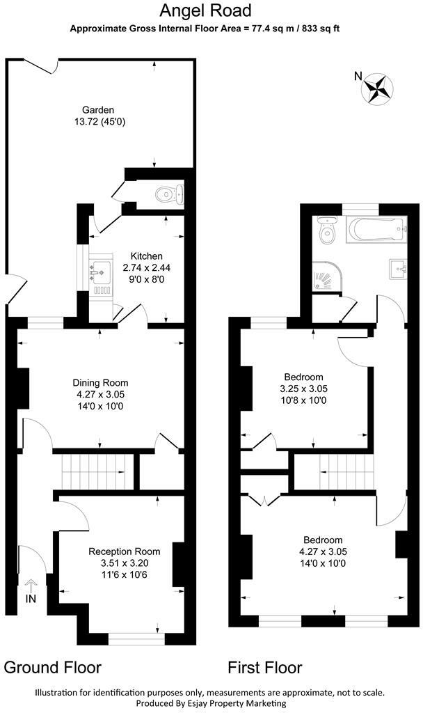
A charming terraced house which requires modernisation, located on Angel Road in the picturesque village of Thames Ditton. This delightful property with period touches such as fireplaces in every room, high ceilings and picture rails - comprises 2 reception rooms, 2 bedrooms and 1 bathroom. Furth...
Property Oracle says ..
This two-bedroom terraced house on Angel Road, Thames Ditton, presents a mixed proposition for potential buyers. Located in a sought-after Surrey village, the property benefits from a relatively convenient location near transportation and local amenities, including schools. However, the property is in considerable need of renovation. The interior photographs show extensive damage to walls and flooring, outdated fixtures, and a generally poor state of repair. This will require significant investment from a buyer to bring the property up to a modern standard. The garden is present but compact. The asking price of £599,995 reflects the property’s potential value after renovation, factoring in the location; however, this would need to be balanced against the substantial cost and effort that would be required to modernize the property. Therefore, a prospective buyer needs to be prepared for a significant refurbishment project. The lack of precise square footage data for nearby listings makes direct price per square foot comparison challenging, making an accurate valuation more reliant on the visual condition of the property and the comparable sales in the area.
Therefore, we give this property 5 / 10. *Disclaimer: This is our option and does constitute a recommendation or financial advice. Do your own research. *
- Price
- 7
- Condition
- 4
- Location
- 7
- Land
- 5
- Bedrooms
- 2
- Bathrooms
- 1
- Sqft (est)
- 833.13
The heatmap indicates the level of crime in the area. The color of the heatmap indicates the crime severity and recency.
Metrics Year-on-Year
- Average area value
- 781,990.00 £Decreased by 16.87 %
- Est sale value
- 639,843.84 £Increased by 10.50 %
- Average area rental value
- 2,910.00 £/moIncreased by 3.34 %
- Est letting value
- 1,666.26 £/moUnchanged by 0.00 %
- Est rental Yield
- 4.47 %Increased by 24.51 %
- Crime Rate
- 3.00 %Unchanged by 0.00 %
Agent Activity
HJC created the listing.
Nearby Schools
| Name | Type | Ofsted | Distance |
|---|---|---|---|
| Hinchley Wood School | Academy Converter | 0.69 KM | |
| Hinchley Wood Primary School | Academy Converter | 0.70 KM | |
| The Ditton'S Sure Start Children'S Centre | Children's Centre | 0.72 KM | |
| Long Ditton St Mary'S Cofe (Aided) Junior School | Voluntary Aided School | Good | 0.81 KM |
| Thames Ditton Infant School | Foundation School | Outstanding | 1.25 KM |
Images
Nearby Streets
| Name | Average Price | Average Sqft | Distance |
|---|---|---|---|
| Long Acre Place | £ 1,233,333 | 0 | 0.00 KM |
| Ashdown Place | £ 0 | 0 | 0.00 KM |
| Basing Close | £ 1,650,000 | 0 | 0.00 KM |
| Priors Wood | £ 0 | 0 | 0.00 KM |
| Taggs Boatyard | £ 904,158 | 0 | 0.00 KM |
Nearby Transport
| Name | NLC | TLC | Distance |
|---|---|---|---|
| Thames Ditton | 5610 | THD | 1.27 KM |
| Hinchley Wood | 5591 | HYW | 1.64 KM |
| Hampton Court | 5561 | HMC | 2.58 KM |
| Esher | 5558 | ESH | 2.75 KM |
| Surbiton | 5571 | SUR | 2.90 KM |
Nearby Listings
| Address | Price | Type | Score | Distance |
|---|---|---|---|---|
| Angel Road, Thames Ditton | £ 599,995 | BUY | 5 / 10 | 0.00 KM |
| Angel Road, Thames Ditton, KT7 | £ 649,950 | BUY | 7 / 10 | 0.05 KM |
| Thorkhill Road, Thames Ditton | £ 1,600,000 | BUY | Unknown | 0.07 KM |
| Thorkhill Road, Thames Ditton, KT7 | £ 2,750,000 | BUY | Unknown | 0.10 KM |
| Thorkhill Gardens, Thames Ditton, KT7 | £ 750,000 | BUY | 8 / 10 | 0.10 KM |
Nearby Properties
| Address | Price | Distance |
|---|---|---|
| 63 Angel Road | £ 625,000 | 0.06 KM |
| 43 Angel Road | £ 326,000 | 0.06 KM |
| 39 Angel Road | £ 495,000 | 0.06 KM |
| 68 Angel Road | £ 720,000 | 0.06 KM |
| 70 Angel Road | £ 559,000 | 0.06 KM |