Gorsley, Herefordshire, HR9
CH

Gorsley, Herefordshire, HR9

By Chancellors

£ 500,000

Reviews

4 out of 5 stars

Chancellors says ..

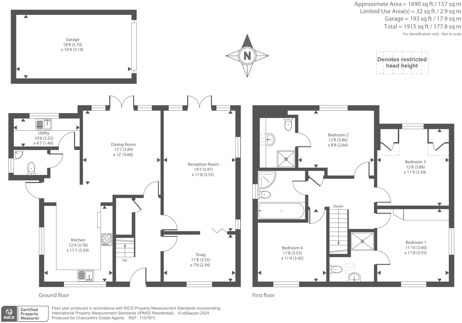
Situated in the village of Gorsley. Chancellors is proud to present this beautifully presented four bedroom detached home. Featuring two en-suites and a family bathroom, lounge with log burner and air-source heat pump.

Property Oracle says ..

This property is a 4 bedroom, 3 bathroom detached house located in Gorsley, Herefordshire. Based on the images provided, the property appears to be in excellent condition and has been recently built or renovated to a high standard. The property benefits from a good-sized garden with a patio area. The location is in a quiet residential area, with a primary school within walking distance. The asking price of £500,000 is slightly above the average price for the area, but given the property’s size, condition, and features, it appears to be a reasonable price. The average price per sqft in the area is £431, and this property is £295 per sqft. This is lower than the average price per sqft for the area, suggesting it may be good value for money. However, more information would be needed to confirm this.

Therefore, we give this property 8 / 10. *Disclaimer: This is our option and does constitute a recommendation or financial advice. Do your own research. *

Price
7
Condition
10
Location
8
Land
7
Bedrooms
4
Bathrooms
3
Sqft (est)
1,690.00

The heatmap indicates the level of crime in the area. The color of the heatmap indicates the crime severity and recency.

Metrics Year-on-Year

Average area value
225,619.00 £
Decreased by 6.60 %
from 241,550.00 £
Est sale value
366,730.00 £
Decreased by 18.73 %
from 451,230.00 £
Average area rental value
850.00 £/mo
Decreased by 4.92 %
from 894.00 £/mo
Est letting value
0.00 £/mo
from 0.00 £/mo
Est rental Yield
4.52 %
Increased by 1.80 %
from 4.44 %
Crime Rate
34.00 %
Unchanged by 0.00 %
from 34.00 %

Agent Activity

  • Chancellors created the listing.

Nearby Schools

NameTypeOfstedDistance
Gorsley Goffs Primary SchoolVoluntary Controlled SchoolGood1.05 KM
Lea Cofe Primary SchoolVoluntary Aided SchoolGood4.92 KM
Hope Brook Cofe Primary SchoolVoluntary Controlled SchoolGood5.61 KM
The Family Tree Children'S Centre (Branches)Children's Centre6.33 KM
Newent Community School And Sixth Form CentreAcademy ConverterGood6.51 KM

Images

Elevated Photos Photos Photos Photos Photos Photos Photos Photos Photos Photos Photos Elevated Photos Front Photos Photos Photos Elevated Photos Elevated Photos Elevated Photos Elevated Photos Elevated Photos Elevated Photos Elevated Photos Photos Photos Photos Photos Photos Photos Photos Photos Photos

Nearby Streets

NameAverage PriceAverage SqftDistance
Quarry Lane £ 587,47500.00 KM
Lovers Walk £ 000.00 KM
Ivy House Lane £ 895,00000.00 KM
Chapel View £ 000.00 KM
Chapel Green £ 825,00000.00 KM

Nearby Listings

AddressPriceTypeScoreDistance
Gorsley, Herefordshire, HR9 £ 500,000BUY8 / 100.00 KM
Gorsley, Ross-on-Wye, Herefordshire, HR9 £ 725,000BUY7 / 100.08 KM
The Laines, Gorsley, Ross-On-Wye £ 685,000BUY7 / 100.16 KM
The Laines, Gorsley, Ross-On-Wye, Herefordshire, HR9 £ 685,000BUYUnknown0.21 KM
Gorsley, Ross-On-Wye £ 449,950BUY7 / 100.35 KM

Nearby Properties

AddressPriceDistance
1 The Laines £ 445,0000.20 KM
2 The Laines £ 480,0000.24 KM
1 Springdale £ 360,0000.40 KM
1 Sundale £ 680,0000.49 KM
5 Sundale £ 340,0000.49 KM