Silverberry Road, Worle - HANDY LOCATION
By Ashley Leahy Estate Agents
£ 265,000
Reviews
3 out of 5 stars
Ashley Leahy Estate Agents says ..
A very well presented detached bungalow offering bright and airy 2 bedroom accommodation and located in this very convenient area in Worle, close to local shops. The area is really handy as there is level access to local supermarkets, Worle train station and the M5 motorway. In our opinion,...
Property Oracle says ..
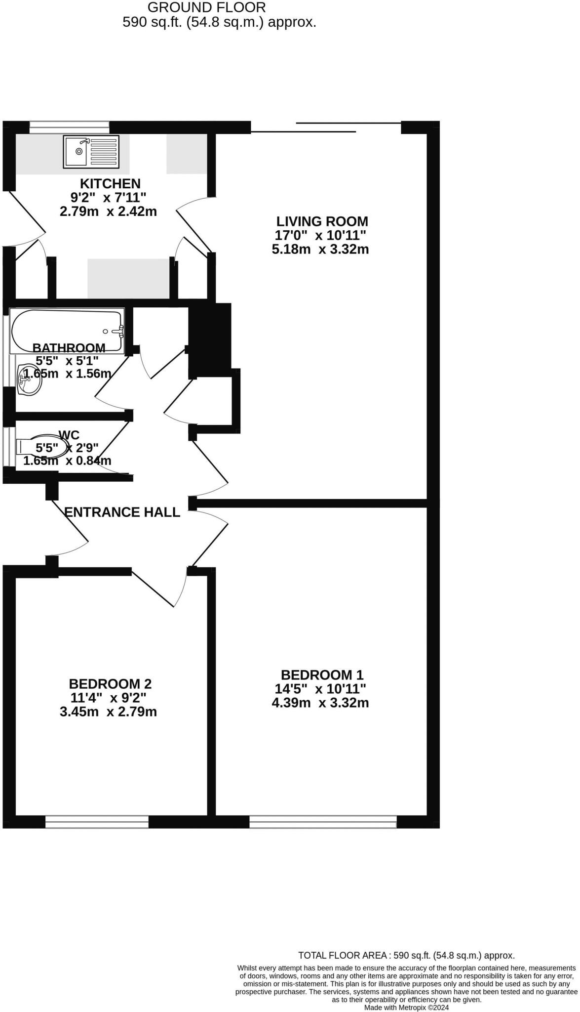
This is a two-bedroom detached bungalow located in the South Worle area of Weston-Super-Mare. The property is listed with Ashley Leahy Estate Agents. It features a well-maintained garden and is situated in a convenient location with access to local amenities, schools, and transportation links. While the property is in reasonable condition, some modernization could enhance its appeal. The asking price of £265,000 appears to be in line with the local market.
Therefore, we give this property 7 / 10. *Disclaimer: This is our option and does constitute a recommendation or financial advice. Do your own research. *
- Price
- 7
- Condition
- 6
- Location
- 7
- Land
- 8
- Bedrooms
- 2
- Bathrooms
- 1
- Sqft (est)
- 562.78
The heatmap indicates the level of crime in the area. The color of the heatmap indicates the crime severity and recency.
Metrics Year-on-Year
- Average area value
- 881,250.00 £Increased by 10.74 %
- Est sale value
- 388,318.20 £Increased by 54.71 %
- Average area rental value
- 1,300.00 £/moDecreased by 43.36 %
- Est letting value
- 562.78 £/moUnchanged by 0.00 %
- Est rental Yield
- 1.77 %Decreased by 48.84 %
- Crime Rate
- 2.00 %Unchanged by 0.00 %
Agent Activity
Ashley Leahy Estate Agents created the listing.
Nearby Schools
| Name | Type | Ofsted | Distance |
|---|---|---|---|
| Becket Primary School | Academy Converter | 0.71 KM | |
| Herons' Moor Academy | Academy Converter | Good | 0.73 KM |
| Locking Castle And Locking | Children's Centre | 0.73 KM | |
| Baytree School | Community Special School | Good | 0.73 KM |
| Mendip Green Primary School | Academy Converter | 0.90 KM |
Images
Nearby Streets
| Name | Average Price | Average Sqft | Distance |
|---|---|---|---|
| Mulberry Close | £ 298,950 | 0 | 0.00 KM |
| Jasmine Close | £ 0 | 0 | 0.00 KM |
| Westwood Close | £ 0 | 0 | 0.00 KM |
| Holly Close | £ 240,000 | 0 | 0.00 KM |
| Osprey Road | £ 0 | 0 | 0.00 KM |
Nearby Transport
| Name | NLC | TLC | Distance |
|---|---|---|---|
| Worle | 3390 | WOR | 1.16 KM |
| Weston Milton | 3388 | WNM | 2.65 KM |
| Weston-Super-Mare | 3391 | WSM | 5.88 KM |
Nearby Listings
| Address | Price | Type | Score | Distance |
|---|---|---|---|---|
| Silverberry Road, Worle - HANDY LOCATION | £ 265,000 | BUY | 7 / 10 | 0.00 KM |
| Silverberry Road, Worle, Weston-Super-Mare, BS22 | £ 250,000 | BUY | 7 / 10 | 0.00 KM |
| Silverberry Road, Weston-Super-Mare | £ 270,000 | BUY | 7 / 10 | 0.07 KM |
| Snowberry Close, Worle | £ 250,000 | BUY | 6 / 10 | 0.10 KM |
| Blackberry Drive, Weston-super-Mare, Somerset, BS22 | £ 265,000 | BUY | 6 / 10 | 0.10 KM |
Nearby Properties
| Address | Price | Distance |
|---|---|---|
| 89 Silverberry Road | £ 207,000 | 0.01 KM |
| 50 Silverberry Road | £ 163,000 | 0.01 KM |
| 101 Silverberry Road | £ 205,000 | 0.01 KM |
| 91 Silverberry Road | £ 172,950 | 0.01 KM |
| 95 Silverberry Road | £ 188,500 | 0.01 KM |