Davies & Way says ..
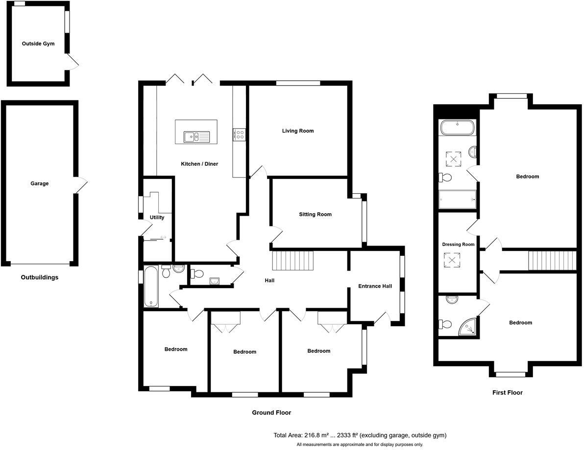
Well positioned in the village of Saltford, this exquisite detached bungalow on Rodney Road offers a perfect blend of comfort and elegance. With generous accommodation, this property boasts three inviting reception rooms, ideal for both relaxation and entertaining and four well-proportioned bedro...
Property Oracle says ..
This property is a detached bungalow located in Saltford, Bristol. It boasts 4 bedrooms and 3 bathrooms, spanning 2,100 sqft on a 2,333 sqft plot. The property is modern and well-maintained, as evidenced by the high-quality finishes and fixtures seen in the provided images. The kitchen is recently renovated and features modern appliances and ample counter space. The garden is a significant feature, offering ample space for outdoor activities. Saltford is a desirable location, known for its good schools and convenient access to Bristol and Bath. Keynsham train station is within a reasonable distance, providing convenient access to public transportation. While the list price of £850,000 is higher than the average price for the area (£475,905), the larger plot size, modern condition, and desirable location justify the premium. The average price per sqft in the area is £372, but the lack of sqft data for comparable properties makes a precise comparison difficult.
Therefore, we give this property 8 / 10. *Disclaimer: This is our option and does constitute a recommendation or financial advice. Do your own research. *
- Price
- 7
- Condition
- 9
- Location
- 9
- Land
- 8
- Bedrooms
- 4
- Bathrooms
- 3
- Sqft (est)
- 2,100.00
- Lot (est)
- 2,333.00
The heatmap indicates the level of crime in the area. The color of the heatmap indicates the crime severity and recency.
Metrics Year-on-Year
- Average area value
- 310,000.00 £Decreased by 11.97 %
- Est sale value
- 407,400.00 £Decreased by 38.22 %
- Average area rental value
- 1,300.00 £/moIncreased by 1.33 %
- Est letting value
- 0.00 £/moDecreased by 100.00 %
- Est rental Yield
- 5.03 %Increased by 15.10 %
- Crime Rate
- 11.00 %Unchanged by 0.00 %
Agent Activity
Davies & Way marked this listing as sold.
Davies & Way created the listing.
Nearby Schools
| Name | Type | Ofsted | Distance |
|---|---|---|---|
| Saltford Cofe Primary School | Academy Converter | Good | 0.64 KM |
| Bath Spa University | Higher Education Institutions | 3.07 KM | |
| The Meadows Primary School | Academy Sponsor Led | 3.13 KM | |
| Chandag Junior School | Academy Converter | 3.57 KM | |
| Chandag Infant School | Academy Converter | Good | 3.57 KM |
Images
Nearby Streets
| Name | Average Price | Average Sqft | Distance |
|---|---|---|---|
| Collingwood Close | £ 0 | 0 | 0.00 KM |
| The Batch | £ 0 | 0 | 0.00 KM |
| Stratton Road | £ 300,000 | 0 | 0.00 KM |
| Kingston Avenue | £ 585,000 | 0 | 0.00 KM |
| Bristol Road | £ 0 | 0 | 0.00 KM |
Nearby Transport
| Name | NLC | TLC | Distance |
|---|---|---|---|
| Keynsham | 3237 | KYN | 4.92 KM |
| Oldfield Park | 3219 | OLF | 8.55 KM |
Nearby Listings
| Address | Price | Type | Score | Distance |
|---|---|---|---|---|
| Rodney Road, Saltford, Bristol | £ 850,000 | BUY | 8 / 10 | 0.00 KM |
| Bath Road, Saltford, Bristol, BS31 3HQ | £ 550,000 | BUY | 7 / 10 | 0.16 KM |
| Uplands Drive, Saltford, Bristol | £ 1,250,000 | BUY | 7 / 10 | 0.23 KM |
| Tyning Road, Saltford | £ 495,000 | BUY | 7 / 10 | 0.23 KM |
| Chestnut Walk, Saltford, Bristol | £ 650,000 | BUY | 7 / 10 | 0.25 KM |
Nearby Properties
| Address | Price | Distance |
|---|---|---|
| 506 Bath Road | £ 340,000 | 0.07 KM |
| 518 Bath Road | £ 358,000 | 0.07 KM |
| 520 Bath Road | £ 217,333 | 0.07 KM |
| 525 Bath Road | £ 385,230 | 0.12 KM |
| 519 Bath Road | £ 250,000 | 0.12 KM |