CH
Clapham Road, Clapham, SW9
By Chestertons in association with James Pendleton
£ 1,750
Chestertons in association with James Pendleton says ..
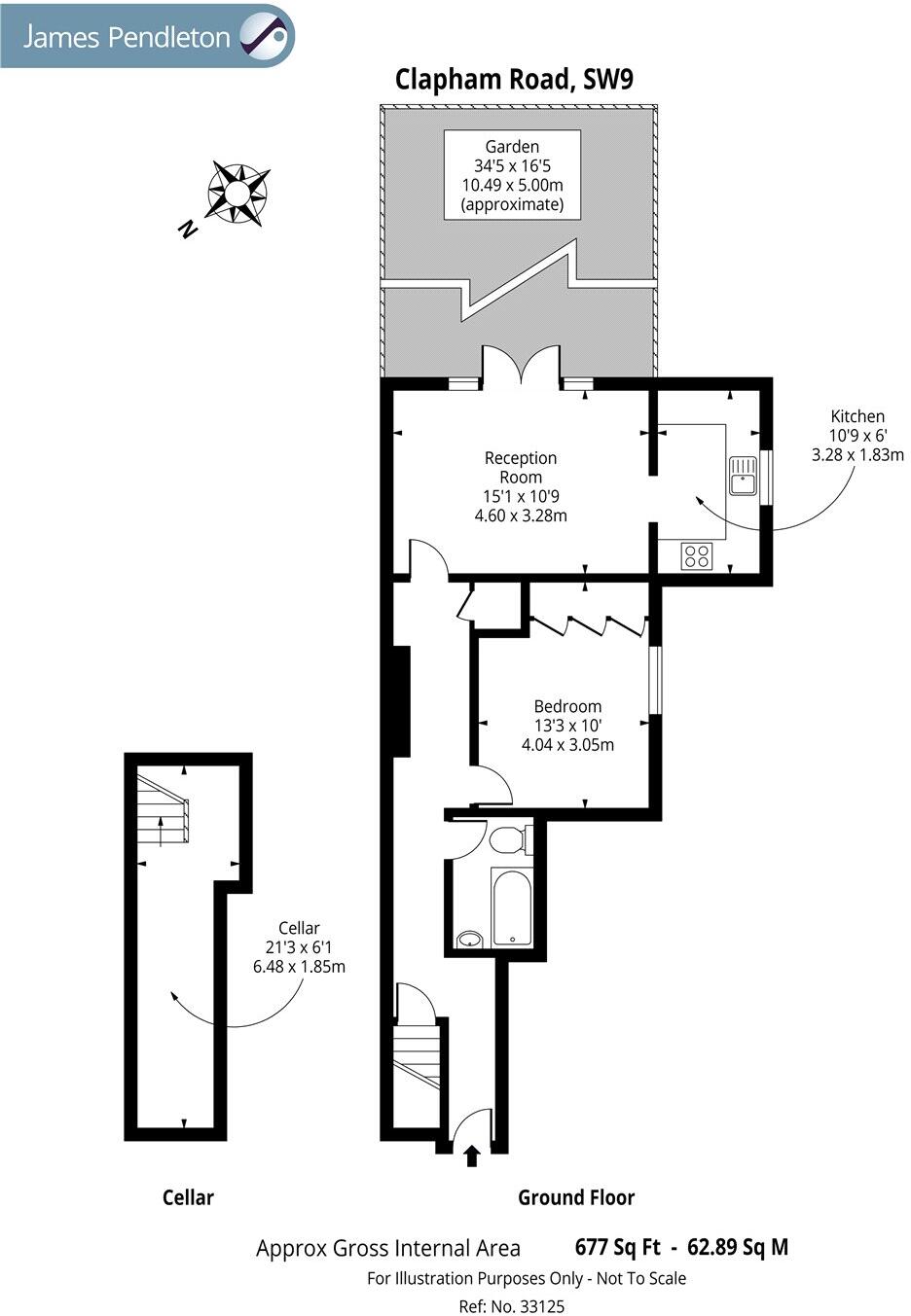
A one-bedroom flat set within an attractive Victorian conversion. The property comprises modern kitchen and bathroom, double bedroom with storage, and living room leading to a private garden. The flat is conveniently located near to Clapham North.
- Bedrooms
- 1
- Bathrooms
- 1
The heatmap indicates the level of crime in the area. The color of the heatmap indicates the crime severity and recency.
Metrics Year-on-Year
- Average area value
- 288,590.00 £Decreased by 37.85 %
- Average area rental value
- 2,219.00 £/moDecreased by 2.72 %
- Est rental Yield
- 9.23 %Increased by 56.71 %
- Crime Rate
- 3.00 %Unchanged by 0.00 %
from 464,364.00 £
from 2,281.00 £/mo
from 5.89 %
from 3.00 %
Agent Activity
Chestertons in association with James Pendleton created the listing.
Nearby Schools
| Name | Type | Ofsted | Distance |
|---|---|---|---|
| Lark Hall Primary School And Children'S Centre | Children's Centre | 0.42 KM | |
| Larkhall Primary Campus | Community School | Good | 0.47 KM |
| St Andrew'S Church Of England Primary School | Voluntary Aided School | Good | 0.68 KM |
| Allen Edwards Primary School | Community School | Good | 0.69 KM |
| Triangle Nursery School | Local Authority Nursery School | Outstanding | 0.85 KM |
Images
Nearby Streets
| Name | Average Price | Average Sqft | Distance |
|---|---|---|---|
| Stane Grove | £ 0 | 0 | 0.00 KM |
| Clapham Road | £ 591,667 | 0 | 0.00 KM |
| Landor Road | £ 625,000 | 0 | 0.00 KM |
| Mews Road | £ 0 | 0 | 0.00 KM |
| Jeffrey's Road | £ 500,000 | 0 | 0.00 KM |
Nearby Transport
| Name | NLC | TLC | Distance |
|---|---|---|---|
| Clapham High Street | 5301 | CLP | 0.49 KM |
| Wandsworth Road | 5372 | WWR | 1.20 KM |
| Brixton | 5081 | BRX | 1.60 KM |
| Queenstown Road (Battersea) | 5596 | QRB | 2.23 KM |
| Vauxhall | 5597 | VXH | 2.25 KM |
Nearby Listings
| Address | Price | Type | Score | Distance |
|---|---|---|---|---|
| Clapham Road, Clapham, SW9 | £ 3,000 | RENT | Unknown | 0.00 KM |
| Clapham Road, London SW9 9BT | £ 2,500 | RENT | Unknown | 0.00 KM |
| Clapham Road, Clapham, SW9 | £ 1,750 | RENT | Unknown | 0.00 KM |
| Clapham Road, Clapham, SW9 | £ 2,750 | RENT | Unknown | 0.00 KM |
| Clapham Road, Clapham, London, SW9 | £ 2,750 | RENT | Unknown | 0.03 KM |
Nearby Properties
| Address | Price | Distance |
|---|---|---|
| 351a Clapham Road | £ 530,000 | 0.00 KM |
| 351d Clapham Road | £ 756,000 | 0.00 KM |
| 351b - 351d Clapham Road | £ 192,500 | 0.00 KM |
| 371a Clapham Road | £ 115,000 | 0.01 KM |
| 361 Clapham Road | £ 316,000 | 0.03 KM |