Tannery Close, Martley, Worcester, Worcestershire, WR6
By By Design
£ 1,850,000
Reviews
3 out of 5 stars
By Design says ..
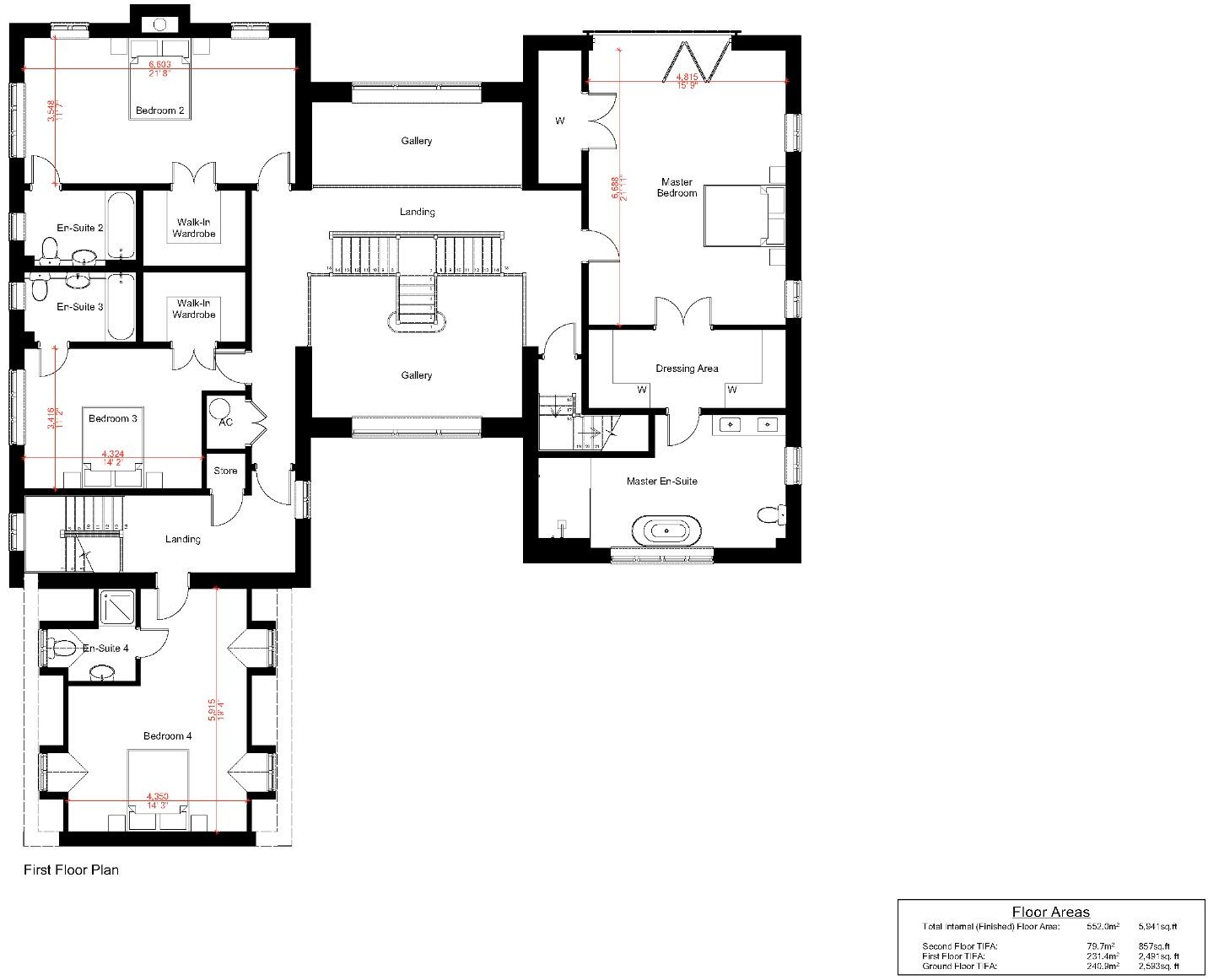
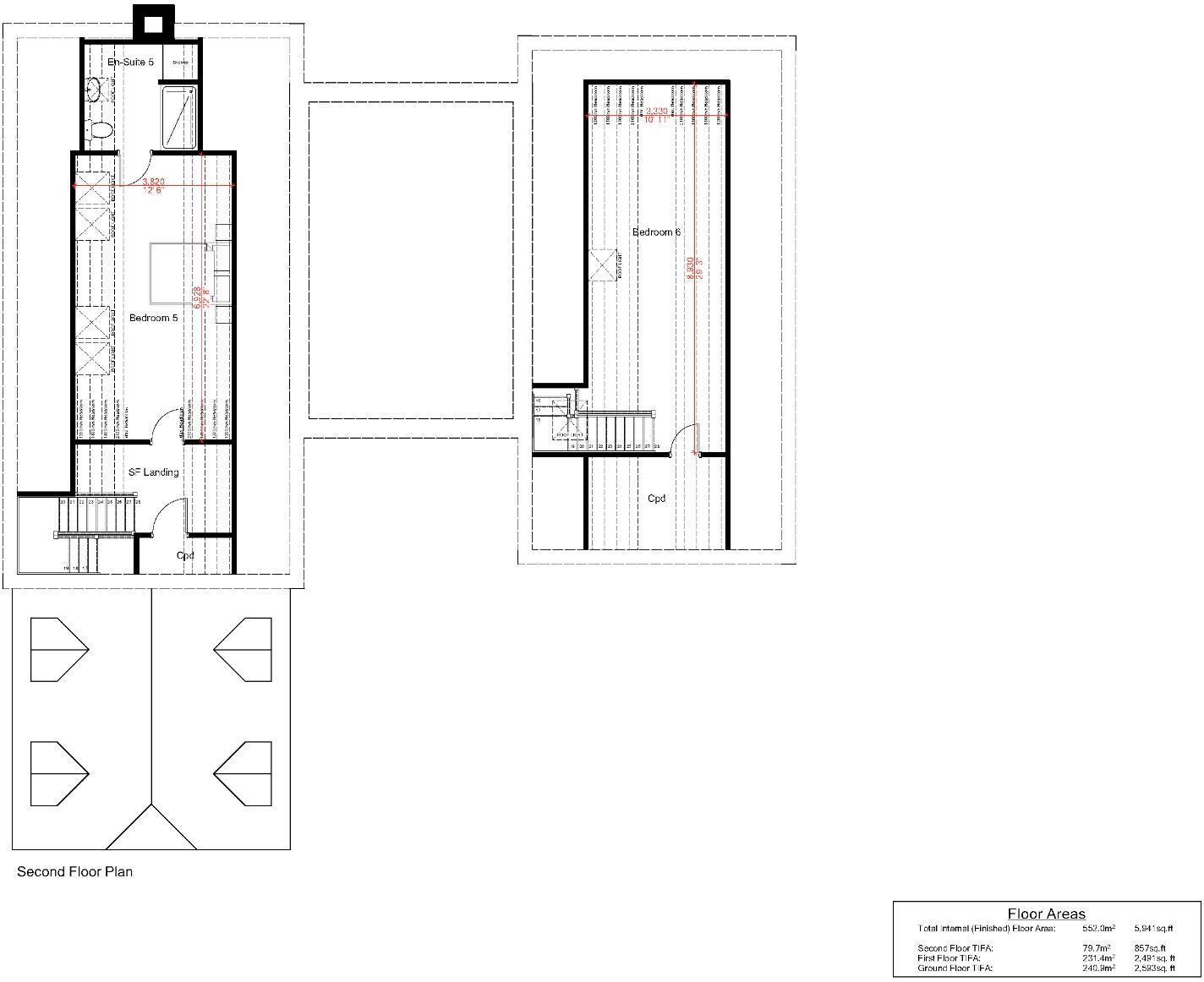
**** OPEN HOUSE - Sun 12th Oct **** A 6,000 sqft luxury, A-rated eco efficient home, with smart control 4 technology, security gates, double garage and surrounded by beautiful countryside views.
Property Oracle says ..
This is a substantial detached property located in the village of Martley, Worcestershire. The house features six bedrooms and five bathrooms, making it suitable for a large family. The interior is modern and well-presented, with high-quality fixtures and fittings. The property benefits from a large plot with landscaped gardens and an outdoor kitchen area. While the location offers a rural setting with access to local schools, the price is high compared to the average for the area.
Therefore, we give this property 7 / 10. *Disclaimer: This is our option and does constitute a recommendation or financial advice. Do your own research. *
- Price
- 6
- Condition
- 9
- Location
- 7
- Land
- 8
- Bedrooms
- 6
- Bathrooms
- 5
- Sqft (est)
- 284.72
The heatmap indicates the level of crime in the area. The color of the heatmap indicates the crime severity and recency.
Metrics Year-on-Year
- Average area value
- 306,316.00 £Increased by 32.78 %
- Est sale value
- 99,652.00 £Increased by 28.21 %
- Average area rental value
- 1,226.00 £/moDecreased by 2.93 %
- Est letting value
- 284.72 £/moUnchanged by 0.00 %
- Est rental Yield
- 4.80 %Decreased by 26.94 %
- Crime Rate
- 0.00 %
Agent Activity
By Design created the listing.
Nearby Schools
| Name | Type | Ofsted | Distance |
|---|---|---|---|
| The Chantry School | Academy Converter | 0.48 KM | |
| Martley Cofe Primary School | Academy Converter | 0.76 KM | |
| Broadwas Cofe Aided Primary School | Voluntary Aided School | Good | 5.06 KM |
| Great Witley Cofe Primary School | Academy Converter | Good | 5.64 KM |
| Abberley Hall | Other Independent School | 6.44 KM |
Images
Nearby Streets
| Name | Average Price | Average Sqft | Distance |
|---|---|---|---|
| Nash Close | £ 0 | 0 | 0.00 KM |
| Hollins Lane | £ 400,000 | 0 | 0.00 KM |
| Hawthorn Close | £ 0 | 0 | 0.00 KM |
| Horn Lane | £ 0 | 0 | 0.00 KM |
| Hopehouse Lane | £ 0 | 0 | 0.00 KM |
Nearby Listings
| Address | Price | Type | Score | Distance |
|---|---|---|---|---|
| Tannery Close, Martley, Worcester, Worcestershire, WR6 | £ 2,000,000 | BUY | 8 / 10 | 0.00 KM |
| Tannery Close, Martley, Worcester, Worcestershire, WR6 | £ 1,850,000 | BUY | 7 / 10 | 0.00 KM |
| 10 Ryecroft Way, Martley, Worcester, WR6 6BF | £ 220,500 | BUY | 6 / 10 | 0.35 KM |
| 16 Lanthorne Close, Martley, Worcestershire. WR6 6BJ | £ 590,000 | BUY | 7 / 10 | 0.37 KM |
| Martley, WR6 | £ 725,000 | BUY | 7 / 10 | 0.38 KM |
Nearby Properties
| Address | Price | Distance |
|---|---|---|
| 17 Ryecroft Way | £ 183,000 | 0.43 KM |
| 27 Ryecroft Way | £ 375,000 | 0.43 KM |
| 18 Mortlake Drive | £ 277,500 | 0.48 KM |
| 12 Mortlake Drive | £ 225,000 | 0.48 KM |
| 8 Mortlake Drive | £ 368,000 | 0.48 KM |