Martin & Co says ..
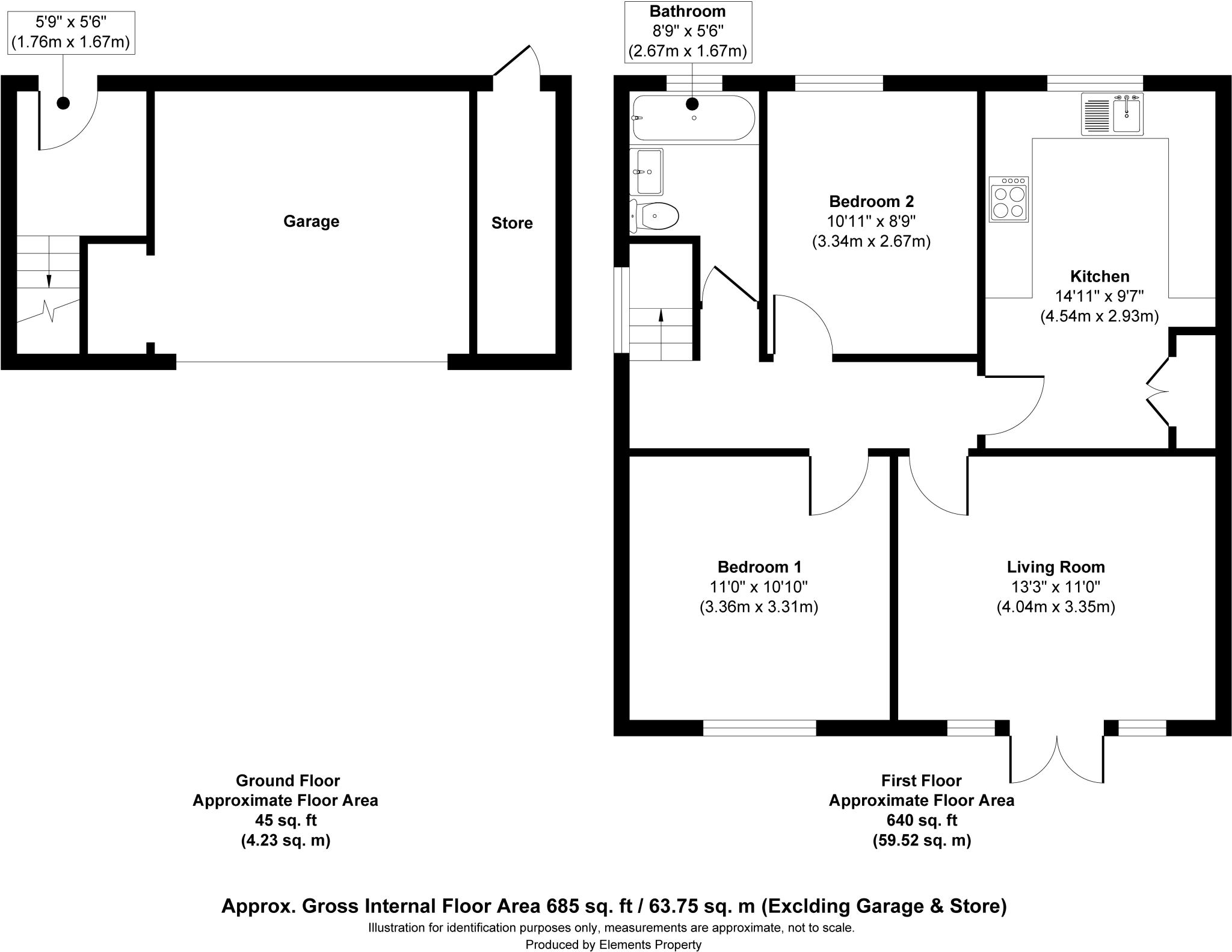
Beautifully renovated two bed semi detached bungalow at the end of Heatherfield Road. Features a south facing tiered garden, modern kitchen, patio with pond, utility room, loft access, garage & gated parking. Peaceful location with stunning elevated views
Property Oracle says ..
Therefore, we give this property 6 / 10. *Disclaimer: This is our option and does constitute a recommendation or financial advice. Do your own research. *
- Price
- 5
- Condition
- 8
- Location
- 7
- Land
- 7
- Bedrooms
- 2
- Bathrooms
- 1
- Sqft (est)
- 598.99
The heatmap indicates the level of crime in the area. The color of the heatmap indicates the crime severity and recency.
Metrics Year-on-Year
- Average area value
- 235,309.00 £Increased by 10.69 %
- Est sale value
- 114,407.09 £Decreased by 6.37 %
- Average area rental value
- 740.00 £/moDecreased by 3.14 %
- Est letting value
- 0.00 £/mo
- Est rental Yield
- 3.77 %Decreased by 12.53 %
- Crime Rate
- 4.00 %Unchanged by 0.00 %
from 212,585.00 £
from 122,193.96 £
from 764.00 £/mo
from 0.00 £/mo
from 4.31 %
from 4.00 %
Agent Activity
Martin & Co created the listing.
Nearby Schools
| Name | Type | Ofsted | Distance |
|---|---|---|---|
| Paddock - Sure Start Paddock Children'S Centre | Children's Centre Linked Site | 0.26 KM | |
| Paddock Junior Infant And Nursery School | Foundation School | Good | 0.32 KM |
| Huddersfield Grammar School | Other Independent School | 0.34 KM | |
| Royds Hall, A Share Academy | Academy Sponsor Led | 0.71 KM | |
| Reinwood Community Junior School | Community School | Good | 1.29 KM |
Images
Nearby Streets
| Name | Average Price | Average Sqft | Distance |
|---|---|---|---|
| Dudley Avenue | £ 180,000 | 0 | 0.00 KM |
| Robin Street | £ 0 | 0 | 0.00 KM |
| Millfield Close | £ 0 | 0 | 0.00 KM |
| High Street | £ 130,000 | 0 | 0.00 KM |
| East View | £ 0 | 0 | 0.00 KM |
Nearby Transport
| Name | NLC | TLC | Distance |
|---|---|---|---|
| Lockwood | 8443 | LCK | 1.70 KM |
| Huddersfield | 8437 | HUD | 2.92 KM |
| Berry Brow | 8431 | BBW | 3.40 KM |
| Honley | 8436 | HOY | 5.37 KM |
| Brighouse | 8514 | BGH | 6.76 KM |
Nearby Listings
| Address | Price | Type | Score | Distance |
|---|---|---|---|---|
| Heatherfield Road, Marsh | £ 239,950 | BUY | 6 / 10 | 0.00 KM |
| Fir Road, Huddersfield | £ 220,000 | BUY | 7 / 10 | 0.10 KM |
| Luck Lane, Huddersfield, West Yorkshire, HD1 | £ 300,000 | BUY | 7 / 10 | 0.16 KM |
| Heatherfield Road, Marsh, Huddersfield, West Yorkshire, HD1 | £ 250,000 | BUY | 5 / 10 | 0.17 KM |
| Luck Lane, Marsh | £ 240,000 | BUY | 7 / 10 | 0.17 KM |
Nearby Properties
| Address | Price | Distance |
|---|---|---|
| 91 Heatherfield Road | £ 145,000 | 0.00 KM |
| 64 Heatherfield Road | £ 174,000 | 0.00 KM |
| 92 Heatherfield Road | £ 105,000 | 0.00 KM |
| 68 Heatherfield Road | £ 121,000 | 0.00 KM |
| 72 Heatherfield Road | £ 157,000 | 0.00 KM |