Lansdowne Terrace, York
By Ashtons Estate Agents
£ 220,000
Reviews
2 out of 5 stars
Ashtons Estate Agents says ..
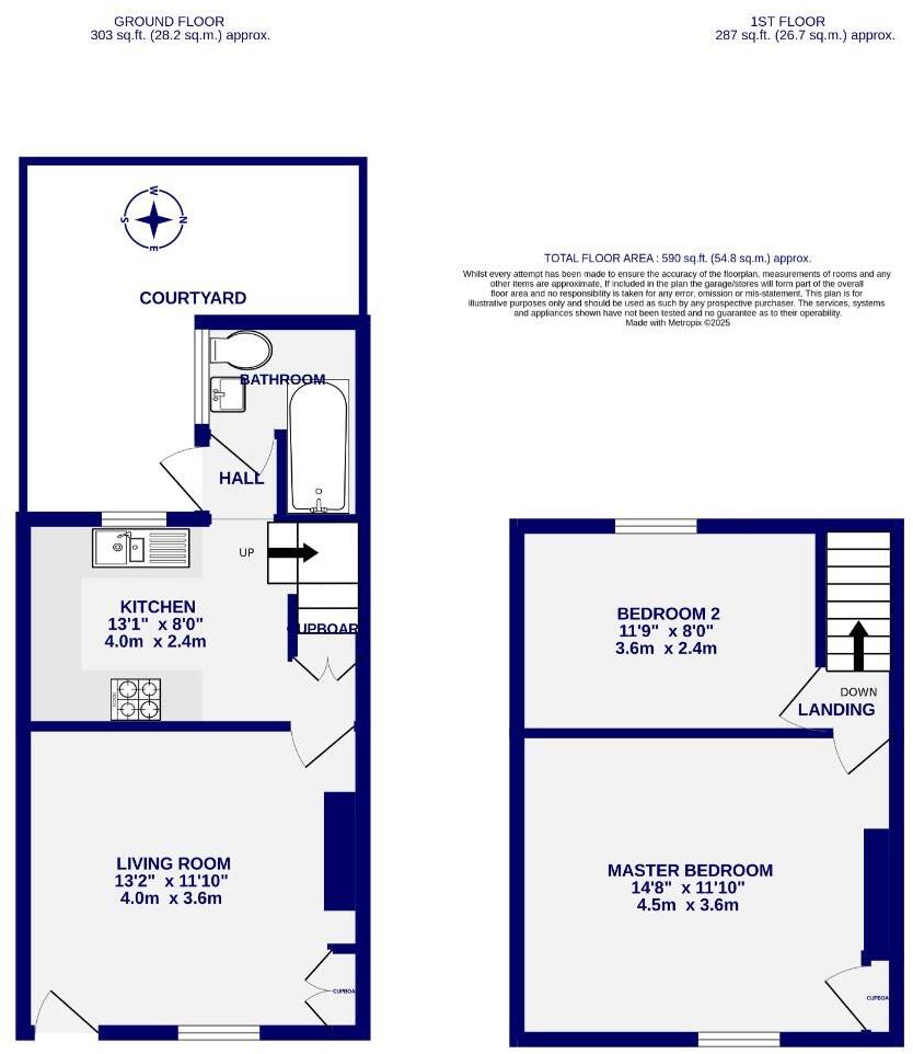
Located in this popular residential area, just off Lawrence Street, is this two bedroom Victorian terrace property. Proven to be a successful residential letting property over recent years, this property is offered with vacant possession. Lansdowne Terrace benefits from the varied amenities Lawre...
Property Oracle says ..
This two-bedroom terraced house on Lansdowne Terrace in York offers a convenient location within walking distance of the city centre and its amenities. The property benefits from being in a desirable area and close to transport links (assuming proximity to the train station, not explicitly stated in the data). However, the provided photographs reveal that the property requires some level of modernisation. The kitchen and bathroom appear dated, and the small yard is a notable limitation. While the list price of £220,000 seems reasonable considering other properties on Lansdowne Terrace and in the surrounding area, potential buyers should factor in the cost of renovations. The property is a solid investment for someone seeking a location-centric property and willing to undertake some improvement work. The lack of information regarding plot size and the varying quality of nearby properties limits the overall analysis and prevents a definitive conclusion on exceptional value.
Therefore, we give this property 4 / 10. *Disclaimer: This is our option and does constitute a recommendation or financial advice. Do your own research. *
- Price
- 6
- Condition
- 4
- Location
- 7
- Land
- 1
- Bedrooms
- 2
- Bathrooms
- 1
- Sqft (est)
- 589.86
The heatmap indicates the level of crime in the area. The color of the heatmap indicates the crime severity and recency.
Metrics Year-on-Year
- Average area value
- 366,047.00 £Decreased by 11.45 %
- Est sale value
- 265,437.00 £Increased by 3.21 %
- Average area rental value
- 1,355.00 £/moDecreased by 4.24 %
- Est letting value
- 589.86 £/moUnchanged by 0.00 %
- Est rental Yield
- 4.44 %Increased by 8.03 %
- Crime Rate
- 4.00 %Unchanged by 0.00 %
Agent Activity
Ashtons Estate Agents created the listing.
Nearby Schools
| Name | Type | Ofsted | Distance |
|---|---|---|---|
| St Lawrence'S Children'S Centre | Children's Centre | 0.31 KM | |
| St Lawrence'S Church Of England Primary Academy | Academy Sponsor Led | Requires improvement | 0.31 KM |
| The Avenues Children'S Centre | Children's Centre | 0.88 KM | |
| Tang Hall Primary Academy | Academy Converter | Good | 0.98 KM |
| St George'S Catholic Primary School - A Catholic Voluntary Academy | Academy Converter | 1.07 KM |
Images
Nearby Streets
| Name | Average Price | Average Sqft | Distance |
|---|---|---|---|
| Thomas Street | £ 260,000 | 0 | 0.00 KM |
| James Street | £ 0 | 0 | 0.00 KM |
| Lawrence Lane | £ 0 | 0 | 0.00 KM |
| St Nicholas Place | £ 0 | 0 | 0.00 KM |
| Lawrence Court | £ 0 | 0 | 0.00 KM |
Nearby Transport
| Name | NLC | TLC | Distance |
|---|---|---|---|
| York | 8263 | YRK | 3.04 KM |
| Poppleton | 8254 | POP | 9.44 KM |
Nearby Listings
| Address | Price | Type | Score | Distance |
|---|---|---|---|---|
| Lansdowne Terrace, York | £ 220,000 | BUY | 4 / 10 | 0.00 KM |
| Lansdowne Terrace, York, YO10 3EA | £ 220,000 | BUY | 6 / 10 | 0.03 KM |
| Lansdowne Terrace, York, YO10 3EA | £ 250,000 | BUY | Unknown | 0.04 KM |
| Granville Terrace, York | £ 260,000 | BUY | 5 / 10 | 0.04 KM |
| Granville Terrace, York, YO10 | £ 170,000 | BUY | 6 / 10 | 0.06 KM |
Nearby Properties
| Address | Price | Distance |
|---|---|---|
| 29 Lansdowne Terrace | £ 37,000 | 0.02 KM |
| 19 Lansdowne Terrace | £ 240,000 | 0.02 KM |
| 3 Lansdowne Terrace | £ 155,000 | 0.02 KM |
| 11 Lansdowne Terrace | £ 128,000 | 0.02 KM |
| 1 Lansdowne Terrace | £ 185,000 | 0.02 KM |