Collingwood Road, Sutton, Surrey, SM1
By Burn & Warne
£ 385,000
Reviews
3 out of 5 stars
Burn & Warne says ..
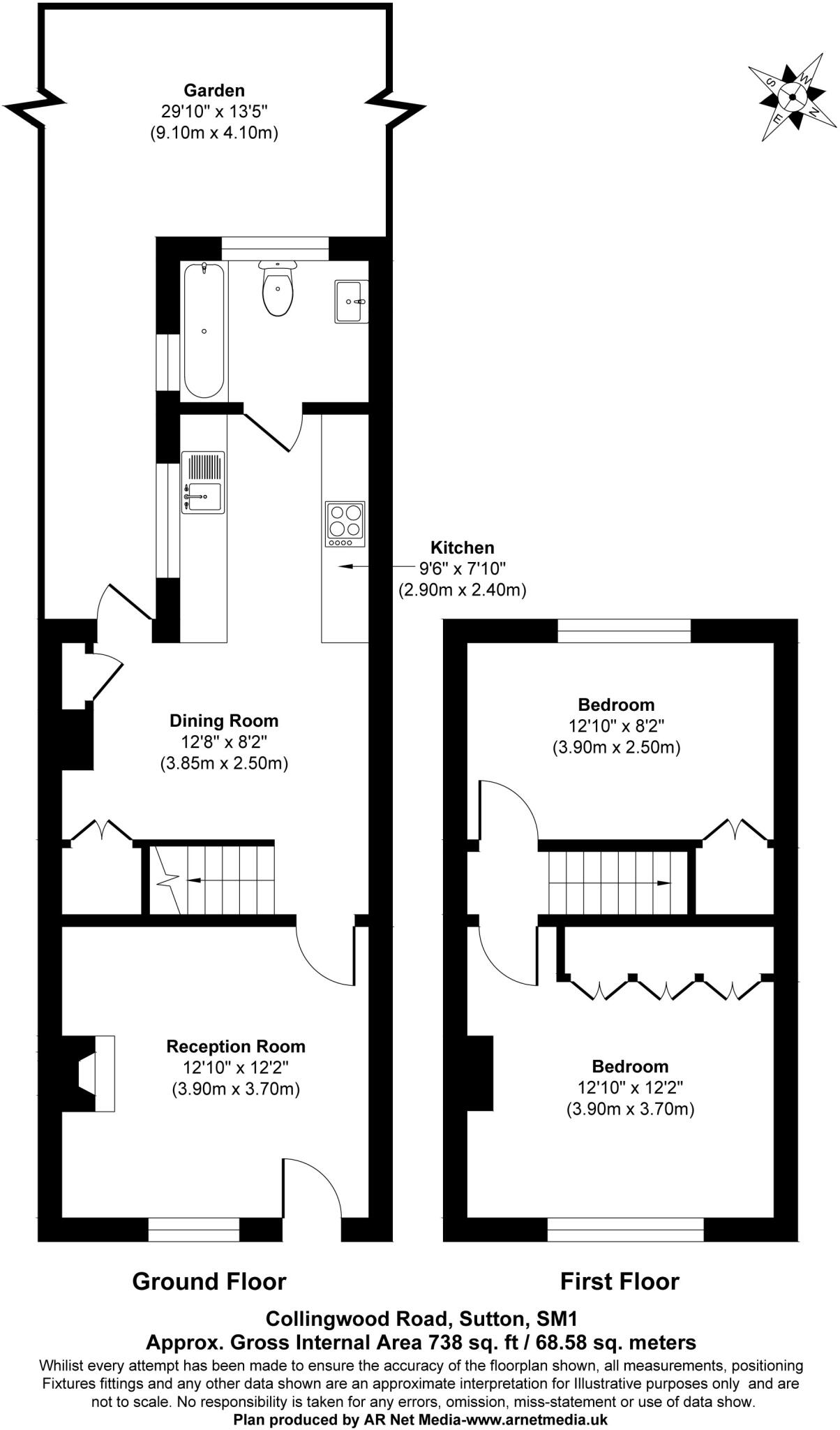
*VICTORIAN COTTAGE *TWO BEDROOMS *TWO RECEPTION ROOMS *CENTRAL LOCATION *CLOSE TO LOCAL SCHOOLS *GAS CENTRAL HEATING *DOUBLE GLAZING *TWO RECEPTION ROOMS *OFFERED WITH NO CHAIN. A two-bedroom Victorian mid terrace cottage style house, offered with no onward chain, in a popular locatio...
Property Oracle says ..
This two-bedroom terraced house in Sutton, Surrey is listed at £385,000. The property benefits from a convenient location, with nearby schools and transportation links. While the images show a property that is generally in good condition, there is some potential for improvement or modernisation. The small garden is a positive feature, although its size is not specified. Compared to the average price per square foot in the area (£518), the listed price seems slightly lower, potentially making it a reasonable purchase given its condition and location. However, a lack of plot size information and further detail on the condition of the property prevents a more definitive conclusion.
Therefore, we give this property 6 / 10. *Disclaimer: This is our option and does constitute a recommendation or financial advice. Do your own research. *
- Price
- 7
- Condition
- 7
- Location
- 8
- Land
- 3
- Bedrooms
- 2
- Bathrooms
- 1
- Sqft (est)
- 738.00
The heatmap indicates the level of crime in the area. The color of the heatmap indicates the crime severity and recency.
Metrics Year-on-Year
- Average area value
- 404,917.00 £Increased by 11.82 %
- Est sale value
- 316,602.00 £Decreased by 12.63 %
- Average area rental value
- 1,930.00 £/moIncreased by 5.12 %
- Est letting value
- 1,476.00 £/moUnchanged by 0.00 %
- Est rental Yield
- 5.72 %Decreased by 5.92 %
- Crime Rate
- 6.00 %Unchanged by 0.00 %
Agent Activity
Burn & Warne created the listing.
Nearby Schools
| Name | Type | Ofsted | Distance |
|---|---|---|---|
| The Limes College | Academy Alternative Provision Converter | 0.34 KM | |
| Robin Hood Infants' School | Community School | Outstanding | 0.40 KM |
| Thomas Wall Nursery School | Local Authority Nursery School | Outstanding | 0.40 KM |
| Robin Hood Junior School | Community School | Good | 0.43 KM |
| Homefield Preparatory School | Other Independent School | 0.66 KM |
Images
Nearby Streets
| Name | Average Price | Average Sqft | Distance |
|---|---|---|---|
| Beauchamp Road | £ 0 | 0 | 0.00 KM |
| Bushey Road | £ 0 | 0 | 0.00 KM |
| Wilcox Road | £ 0 | 0 | 0.00 KM |
| Vale Road | £ 0 | 0 | 0.00 KM |
| West Street | £ 400,000 | 0 | 0.00 KM |
Nearby Transport
| Name | NLC | TLC | Distance |
|---|---|---|---|
| West Sutton | 5293 | WSU | 0.63 KM |
| Sutton Common | 5436 | SUC | 0.94 KM |
| Sutton | 5385 | SUO | 1.26 KM |
| Cheam | 5352 | CHE | 2.07 KM |
| St Helier | 5290 | SIH | 2.54 KM |
Nearby Listings
| Address | Price | Type | Score | Distance |
|---|---|---|---|---|
| Collingwood Road, Sutton, Surrey, SM1 | £ 385,000 | BUY | 6 / 10 | 0.00 KM |
| Beulah Road, Sutton, Surrey, SM1 | £ 400,000 | BUY | 6 / 10 | 0.04 KM |
| Beauchamp Road, Sutton | £ 475,000 | BUY | Unknown | 0.07 KM |
| 93 Collingwood Road, Sutton | £ 240,000 | BUY | 6 / 10 | 0.07 KM |
| Orchard Road, Sutton | £ 575,000 | BUY | 5 / 10 | 0.10 KM |
Nearby Properties
| Address | Price | Distance |
|---|---|---|
| 77 Collingwood Road | £ 380,000 | 0.01 KM |
| 81 Collingwood Road | £ 347,500 | 0.01 KM |
| 79 Collingwood Road | £ 310,000 | 0.01 KM |
| 87a Collingwood Road | £ 189,000 | 0.07 KM |
| 85 Collingwood Road | £ 325,000 | 0.07 KM |