Avery Residential says ..
A well-presented, top floor flat of a two storey block set on a quiet residential street just off Queensbridge Road, ideally positioned between Dalston and London Fields.
Property Oracle says ..
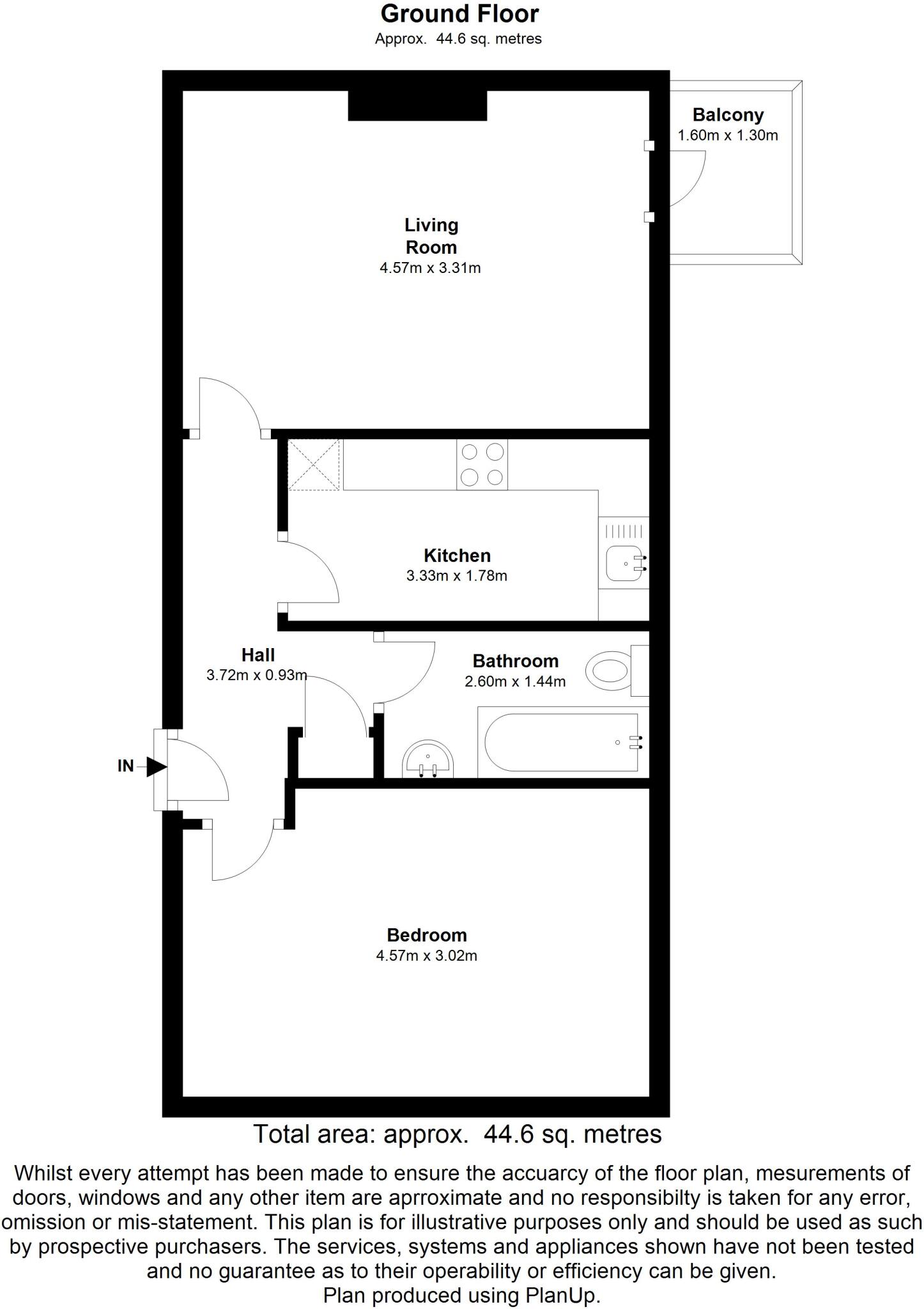
This is a one-bedroom apartment located in London Fields, Hackney. The property is in reasonable condition and benefits from a modern kitchen and bathroom. It has access to a communal garden and a balcony. The location is desirable, with good access to amenities, transport, and schools. The price is reasonable for the area.
Therefore, we give this property 6 / 10. *Disclaimer: This is our option and does constitute a recommendation or financial advice. Do your own research. *
- Price
- 7
- Condition
- 7
- Location
- 7
- Land
- 5
- Bedrooms
- 1
- Bathrooms
- 1
- Sqft (est)
- 219.48
The heatmap indicates the level of crime in the area. The color of the heatmap indicates the crime severity and recency.
Metrics Year-on-Year
- Average area value
- 832,500.00 £Increased by 1.06 %
- Est sale value
- 268,643.52 £Increased by 33.04 %
- Average area rental value
- 2,762.00 £/moIncreased by 20.56 %
- Est letting value
- 877.92 £/moIncreased by 100.00 %
- Est rental Yield
- 3.98 %Increased by 19.16 %
- Crime Rate
- 1.00 %Unchanged by 0.00 %
Agent Activity
Avery Residential created the listing.
Nearby Schools
| Name | Type | Ofsted | Distance |
|---|---|---|---|
| Mapledene Children'S Centre | Children's Centre | 0.15 KM | |
| Queensbridge Primary School | Community School | Outstanding | 0.22 KM |
| St. Paul'S With St. Michael'S Cofe Primary School | Voluntary Aided School | Outstanding | 0.57 KM |
| Holy Trinity Church Of England Primary School | Voluntary Aided School | Good | 0.58 KM |
| The Bridge Academy | Academy Sponsor Led | Good | 0.60 KM |
Images
Nearby Streets
| Name | Average Price | Average Sqft | Distance |
|---|---|---|---|
| Holly Street | £ 0 | 0 | 0.00 KM |
| Shrubland Road | £ 1,650,000 | 0 | 0.00 KM |
| St. Philip's Road | £ 0 | 0 | 0.00 KM |
| Laurel Street | £ 895,000 | 0 | 0.00 KM |
| Richmond Road | £ 0 | 0 | 0.00 KM |
Nearby Transport
| Name | NLC | TLC | Distance |
|---|---|---|---|
| Haggerston | 1022 | HGG | 0.66 KM |
| Dalston Junction | 1443 | DLJ | 0.89 KM |
| Dalston Kingsland | 1429 | DLK | 1.10 KM |
| Hoxton | 1023 | HOX | 1.15 KM |
| London Fields | 6966 | LOF | 1.35 KM |
Nearby Listings
| Address | Price | Type | Score | Distance |
|---|---|---|---|---|
| 80-82 Middleton Road | £ 400,000 | BUY | 6 / 10 | 0.00 KM |
| Queensbridge Road, London, E8 3NB | £ 369,950 | BUY | Unknown | 0.02 KM |
| Queensbridge Road, London, E8 3NB | £ 335,000 | BUY | 6 / 10 | 0.02 KM |
| Queensbridge Road, London, E8 | £ 600,000 | BUY | 6 / 10 | 0.07 KM |
| Fortune Court, Queensbridge Road, London, E8 | £ 550,000 | BUY | 6 / 10 | 0.11 KM |
Nearby Properties
| Address | Price | Distance |
|---|---|---|
| 202b Queensbridge Road | £ 130,000 | 0.04 KM |
| 242b Queensbridge Road | £ 600,000 | 0.04 KM |
| 254 Queensbridge Road | £ 1,485,000 | 0.04 KM |
| 258 Queensbridge Road | £ 137,000 | 0.04 KM |
| 246 Queensbridge Road | £ 1,400,000 | 0.04 KM |