Stanford Road, Lymington, SO41
By Fells Gulliver
£ 375,000
Reviews
3 out of 5 stars
Fells Gulliver says ..
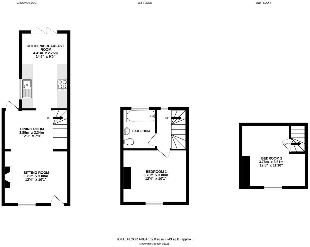
A beautifully presented two double bedroom Grade II Listed mid terrace property, located in the heart of Lymington town centre. The property has been sympathetically renovated to a high standard, benefitting from an open plan living/dining room and separate kitchen with bi-fold doors opening o...
Property Oracle says ..
This property is a charming two-bedroom terraced house located in Lymington, Hampshire. The location is excellent, with good nearby schools and easy access to Lymington Town train station. The property itself is in good condition and has been recently renovated to a high standard, boasting a modern kitchen and bathroom. The presence of a garden is a definite plus. While the average price per square foot in the area is higher, this property seems reasonably priced considering its condition, location, and features. However, it is important to note that the plot size is small.
Therefore, we give this property 7 / 10. *Disclaimer: This is our option and does constitute a recommendation or financial advice. Do your own research. *
- Price
- 7
- Condition
- 9
- Location
- 9
- Land
- 6
- Bedrooms
- 2
- Bathrooms
- 1
- Sqft (est)
- 742.71
The heatmap indicates the level of crime in the area. The color of the heatmap indicates the crime severity and recency.
Metrics Year-on-Year
- Average area value
- 492,217.00 £Decreased by 14.13 %
- Est sale value
- 586,740.90 £Increased by 44.69 %
- Average area rental value
- 1,375.00 £/moDecreased by 21.52 %
- Est letting value
- 1,485.42 £/moIncreased by 100.00 %
- Est rental Yield
- 3.35 %Decreased by 8.72 %
- Crime Rate
- 23.00 %Unchanged by 0.00 %
Agent Activity
Fells Gulliver created the listing.
Nearby Schools
| Name | Type | Ofsted | Distance |
|---|---|---|---|
| Lymington Junior School | Community School | Good | 0.53 KM |
| Lymington Church Of England Infant School | Voluntary Aided School | Outstanding | 0.56 KM |
| Priestlands School | Academy Converter | Good | 0.62 KM |
| Pennington Church Of England Junior School | Voluntary Controlled School | Requires improvement | 0.88 KM |
| Pennington Infant School | Community School | Good | 0.88 KM |
Images
Nearby Streets
| Name | Average Price | Average Sqft | Distance |
|---|---|---|---|
| Queen Street | £ 0 | 0 | 0.00 KM |
| Old Maltings | £ 0 | 0 | 0.00 KM |
| Saint Thomas Street | £ 1,492,500 | 0 | 0.00 KM |
| Saint Thomas Park | £ 392,500 | 0 | 0.00 KM |
| Melbury Close | £ 630,000 | 0 | 0.00 KM |
Nearby Transport
| Name | NLC | TLC | Distance |
|---|---|---|---|
| Lymington Town | 5887 | LYT | 1.47 KM |
| Lymington Pier | 5892 | LYP | 2.26 KM |
| Brockenhurst | 5886 | BCU | 7.17 KM |
| Sway | 5884 | SWY | 7.34 KM |
Nearby Listings
| Address | Price | Type | Score | Distance |
|---|---|---|---|---|
| Stanford Road, Lymington, SO41 | £ 375,000 | BUY | 7 / 10 | 0.00 KM |
| Highfield, Lymington, SO41 | £ 1,750,000 | BUY | 7 / 10 | 0.02 KM |
| Stanford Road, Lymington, SO41 | £ 309,000 | BUY | 6 / 10 | 0.02 KM |
| Priestlands Place, Lymington, Hampshire, SO41 | £ 295,000 | BUY | 5 / 10 | 0.04 KM |
| Anchorage Way, Lymington, Hampshire, SO41 | £ 285,000 | BUY | 6 / 10 | 0.05 KM |
Nearby Properties
| Address | Price | Distance |
|---|---|---|
| 3 Stanford Road | £ 171,000 | 0.03 KM |
| 14 Stanford Road | £ 377,000 | 0.03 KM |
| 6 Stanford Road | £ 268,000 | 0.03 KM |
| 8 Stanford Road | £ 355,000 | 0.03 KM |
| 4 Stanford Road | £ 195,000 | 0.03 KM |