The Knowle, Dalegarth Avenue, Heaton, Bolton, BL1 5DW
By Newton & Co Ltd
£ 950,000
Reviews
4 out of 5 stars
Newton & Co Ltd says ..
An exquisite family home set upon an extensive plot, blending heritage charm with modern living.
Property Oracle says ..
The property is located in Heaton, Bolton, which is a desirable area. The proximity to Lostock train station (0.80 KM) provides convenient access to commuting routes. Several well-regarded schools are also within a reasonable distance, including Lostock Primary School (0.58 KM) and Markland Hill Primary School (1.85 KM), both rated ‘Good’ or ‘Outstanding’ by Ofsted. This positive aspect contributes to a high location score.
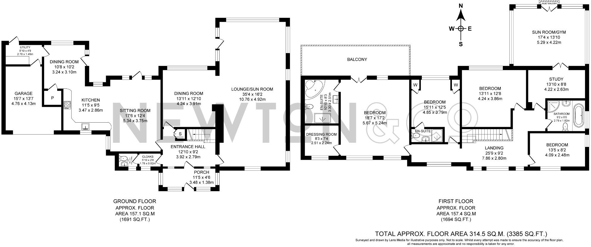
Based on the provided images, the property appears to be in excellent condition. It has undergone recent renovations or modernisation, evident in the updated kitchen and bathrooms. The property is well-maintained, both internally and externally, suggesting a high standard of upkeep. There is no visible evidence of disrepair or the need for significant renovation work.
The property boasts a substantial garden, offering ample outdoor space. The garden is well-landscaped and appears to be well-maintained. The size of the plot (3,385.25 SQFT) further supports this assessment.
Considering the property’s size (2,904.10 SQFT), condition, location, and the substantial garden, the list price of £950,000 appears reasonable. While the average price per square foot in the area is £321, this property’s superior condition, desirable location, and large plot size justify a higher price per square foot. The nearby comparable properties listed for sale support this higher price point. The average house price in the area is £407,854, significantly lower than the list price, reflecting the premium associated with this property’s features.
Therefore, we give this property 9 / 10. *Disclaimer: This is our option and does constitute a recommendation or financial advice. Do your own research. *
- Price
- 8
- Condition
- 10
- Location
- 9
- Land
- 9
- Bedrooms
- 5
- Bathrooms
- 3
- Sqft (est)
- 2,904.10
- Lot (est)
- 3,385.25
The heatmap indicates the level of crime in the area. The color of the heatmap indicates the crime severity and recency.
Metrics Year-on-Year
- Average area value
- 457,850.00 £Decreased by 3.70 %
- Est sale value
- 1,245,858.90 £Increased by 84.12 %
- Average area rental value
- 1,033.00 £/moDecreased by 9.07 %
- Est letting value
- 0.00 £/mo
- Est rental Yield
- 2.71 %Decreased by 5.57 %
- Crime Rate
- 0.00 %
Agent Activity
Newton & Co Ltd created the listing.
Nearby Schools
| Name | Type | Ofsted | Distance |
|---|---|---|---|
| Lostock Primary School | Community School | Good | 0.58 KM |
| Clevelands Prep School | Other Independent School | 1.73 KM | |
| Beaumont Primary School | Community School | Good | 1.80 KM |
| Markland Hill Primary School | Community School | Outstanding | 1.85 KM |
| St Bernard'S Rc Primary School, Bolton | Voluntary Aided School | Good | 1.88 KM |
Images
Nearby Streets
| Name | Average Price | Average Sqft | Distance |
|---|---|---|---|
| Dentdale Close | £ 0 | 0 | 0.00 KM |
| The Lane | £ 115,000 | 0 | 0.00 KM |
| Ashridge Close | £ 550,000 | 0 | 0.00 KM |
| Wenderholme | £ 0 | 0 | 0.00 KM |
| High Rid Lane | £ 0 | 0 | 0.00 KM |
Nearby Transport
| Name | NLC | TLC | Distance |
|---|---|---|---|
| Lostock | 2598 | LOT | 0.80 KM |
| Westhoughton | 2619 | WHG | 4.33 KM |
| Horwich Parkway | 8720 | HWI | 5.14 KM |
| Hag Fold | 2585 | HGF | 5.14 KM |
| Daisy Hill | 2777 | DSY | 5.17 KM |
Nearby Listings
| Address | Price | Type | Score | Distance |
|---|---|---|---|---|
| The Knowle, Dalegarth Avenue, Heaton, Bolton, BL1 5DW | £ 950,000 | BUY | 9 / 10 | 0.00 KM |
| Dalegarth Avenue, Bolton, Lostock, BL1 5 | £ 875,000 | BUY | 8 / 10 | 0.04 KM |
| Chorley New Road, Bolton, Greater Manchester, BL1 5DP | £ 2,500,000 | BUY | Unknown | 0.15 KM |
| Farnley, 7 Ravensdale Road, Bolton, BL1 5DN | £ 599,950 | BUY | 7 / 10 | 0.21 KM |
| Lower House, Chorley New Road, Lostock, BL6 4 | £ 475,000 | BUY | 7 / 10 | 0.21 KM |
Nearby Properties
| Address | Price | Distance |
|---|---|---|
| 1 Dalegarth Avenue | £ 450,000 | 0.03 KM |
| 9 Dalegarth Avenue | £ 555,000 | 0.03 KM |
| 8 Dalegarth Avenue | £ 445,000 | 0.03 KM |
| 514 Chorley New Road | £ 670,000 | 0.09 KM |
| 516 Chorley New Road | £ 350,000 | 0.13 KM |