Cae Coed, Llandudno Junction
By Fletcher & Poole
£ 245,000
Reviews
3 out of 5 stars
Fletcher & Poole says ..
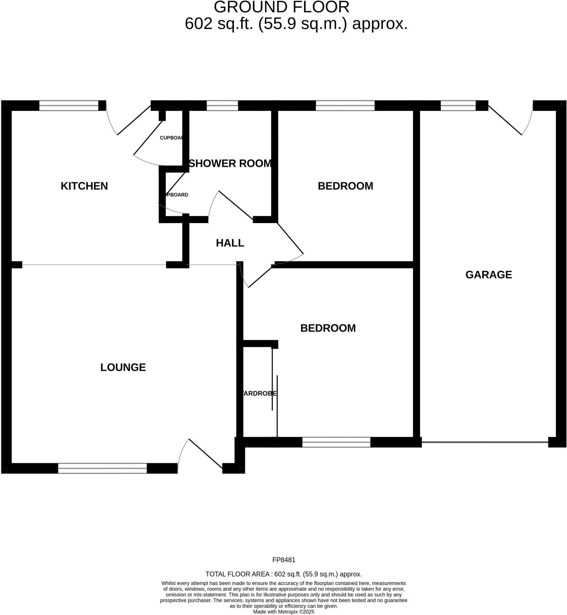
An immaculately presented two bedroom semi detached bungalow situated in a quiet cul de sac location on the outskirts of Llandudno Junction. The current owner has refurbished and remodelled the property to a high standard creating a light and well planned modern home with accommodation comprising...
Property Oracle says ..
This is a well-presented semi-detached property in Llandudno Junction. The house benefits from a modern interior, a good-sized garden, and convenient access to local amenities and transportation. While the price is slightly above the average for the area, the condition of the property justifies the premium. The property is ideal for a small family or a couple looking for a comfortable and well-maintained home. The proximity to schools and transportation links makes it a desirable location for commuters and families with children. The modern interior and well-kept garden add to the appeal of this property.
Therefore, we give this property 7 / 10. *Disclaimer: This is our option and does constitute a recommendation or financial advice. Do your own research. *
- Price
- 7
- Condition
- 9
- Location
- 7
- Land
- 8
- Bedrooms
- 2
- Bathrooms
- 1
- Sqft (est)
- 602.00
The heatmap indicates the level of crime in the area. The color of the heatmap indicates the crime severity and recency.
Metrics Year-on-Year
- Average area value
- 346,667.00 £Increased by 10.48 %
- Est sale value
- 136,052.00 £Decreased by 17.22 %
- Average area rental value
- 950.00 £/moDecreased by 40.99 %
- Est letting value
- 0.00 £/moDecreased by 100.00 %
- Est rental Yield
- 3.29 %Decreased by 46.59 %
- Crime Rate
- 18.00 %Unchanged by 0.00 %
Agent Activity
Fletcher & Poole created the listing.
Nearby Schools
| Name | Type | Ofsted | Distance |
|---|---|---|---|
| Ysgol Deganwy | Welsh Establishment | 1.59 KM | |
| St David'S College | Welsh Establishment | 2.40 KM | |
| Ysgol Glan Conwy | Welsh Establishment | 2.73 KM | |
| Blessed William Davies School | Welsh Establishment | 2.97 KM | |
| Ysgol Porth Y Felin | Welsh Establishment | 3.13 KM |
Images
Nearby Streets
| Name | Average Price | Average Sqft | Distance |
|---|---|---|---|
| St David's Avenue | £ 0 | 0 | 0.00 KM |
| Victoria Crescent | £ 289,950 | 0 | 0.00 KM |
| Lôn Lafant | £ 380,000 | 0 | 0.00 KM |
| Dolgoed | £ 0 | 0 | 0.00 KM |
| Station Terrace | £ 145,000 | 0 | 0.00 KM |
Nearby Transport
| Name | NLC | TLC | Distance |
|---|---|---|---|
| Llandudno Junction | 2485 | LLJ | 0.66 KM |
| Glan Conwy | 2454 | GCW | 2.66 KM |
| Conwy | 2486 | CNW | 2.79 KM |
| Deganwy | 2480 | DGY | 2.96 KM |
| Llandudno | 2484 | LLD | 4.12 KM |
Nearby Listings
| Address | Price | Type | Score | Distance |
|---|---|---|---|---|
| Cae Coed, Llandudno Junction | £ 245,000 | BUY | 7 / 10 | 0.00 KM |
| Glas Coed, Llandudno Junction, Conwy, LL31 | £ 200,000 | BUY | 7 / 10 | 0.04 KM |
| Glas Coed, Llandudno Junction | £ 170,000 | BUY | 5 / 10 | 0.05 KM |
| Glyn Isaf, Llandudno Junction | £ 219,950 | BUY | Unknown | 0.10 KM |
| Marl Avenue, Llandudno Junction | £ 225,000 | BUY | 7 / 10 | 0.12 KM |
Nearby Properties
| Address | Price | Distance |
|---|---|---|
| 31 Cae Coed | £ 128,500 | 0.01 KM |
| 35 Cae Coed | £ 134,500 | 0.01 KM |
| 37 Cae Coed | £ 129,950 | 0.01 KM |
| 19 Cae Coed | £ 148,500 | 0.01 KM |
| 18 Cae Coed | £ 291,000 | 0.01 KM |