CH
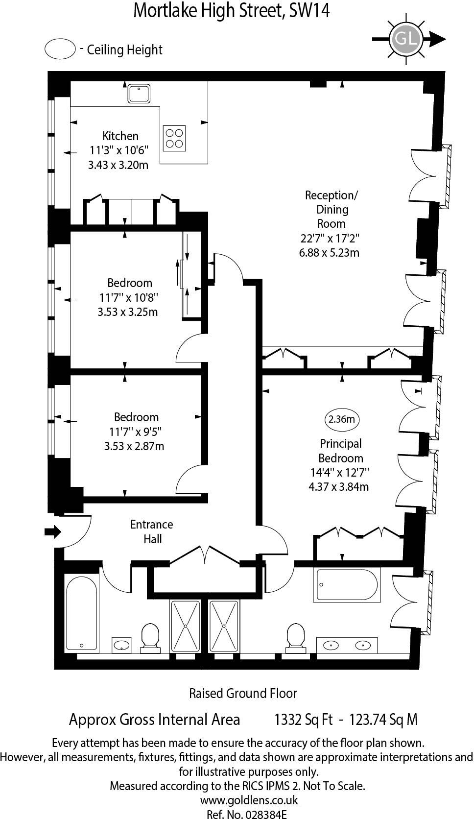
Mortlake High Street, Mortlake, SW14
By Chestertons Estate Agents
£ 1,250,000
Reviews
2 out of 5 stars
Chestertons Estate Agents says ..
A stunning, modern riverside apartment on the first floor of this luxury gated development benefitting from the most amazing river Thames views.
Property Oracle says ..
Therefore, we give this property 5 / 10. *Disclaimer: This is our option and does constitute a recommendation or financial advice. Do your own research. *
- Price
- 3
- Condition
- 9
- Location
- 9
- Land
- 1
- Bedrooms
- 3
- Bathrooms
- 2
- Sqft (est)
- 924.48
The heatmap indicates the level of crime in the area. The color of the heatmap indicates the crime severity and recency.
Metrics Year-on-Year
- Average area value
- 754,167.00 £Decreased by 18.85 %
- Est sale value
- 738,659.52 £Decreased by 21.67 %
- Average area rental value
- 3,542.00 £/moIncreased by 18.22 %
- Est letting value
- 2,773.44 £/moUnchanged by 0.00 %
- Est rental Yield
- 5.64 %Increased by 45.74 %
- Crime Rate
- 9.00 %Unchanged by 0.00 %
from 929,312.00 £
from 942,969.60 £
from 2,996.00 £/mo
from 2,773.44 £/mo
from 3.87 %
from 9.00 %
Agent Activity
Chestertons Estate Agents created the listing.
Nearby Schools
| Name | Type | Ofsted | Distance |
|---|---|---|---|
| St Mary Magdalen'S Catholic Primary School | Voluntary Aided School | Outstanding | 0.37 KM |
| East Sheen Primary School | Community School | Outstanding | 0.69 KM |
| Richmond Park Academy | Academy Sponsor Led | Good | 0.86 KM |
| Barnes Primary School | Community School | Outstanding | 0.87 KM |
| Thomson House School | Free Schools | Outstanding | 0.87 KM |
Images
Nearby Streets
| Name | Average Price | Average Sqft | Distance |
|---|---|---|---|
| Dukes Meadows Footbridge | £ 0 | 0 | 0.00 KM |
| Buxton Road | £ 0 | 0 | 0.00 KM |
| Gordon Avenue | £ 0 | 0 | 0.00 KM |
| Dan Mason Drive | £ 0 | 0 | 0.00 KM |
| Parkfield Avenue | £ 0 | 0 | 0.00 KM |
Nearby Transport
| Name | NLC | TLC | Distance |
|---|---|---|---|
| Barnes Bridge | 5580 | BNI | 0.69 KM |
| Mortlake | 5600 | MTL | 0.97 KM |
| Chiswick | 5583 | CHK | 1.60 KM |
| Barnes | 5551 | BNS | 1.85 KM |
| Kew Gardens | 5594 | KWG | 3.03 KM |
Nearby Listings
| Address | Price | Type | Score | Distance |
|---|---|---|---|---|
| Mortlake High Street, Mortlake, SW14 | £ 1,250,000 | BUY | 5 / 10 | 0.00 KM |
| Ashleigh Road, Mortlake | £ 675,000 | BUY | Unknown | 0.07 KM |
| Ashleigh Road, Mortlake, London, SW14 | £ 575,000 | BUY | 6 / 10 | 0.09 KM |
| Cowley Road, Mortlake, London, SW14 | £ 769,995 | BUY | 8 / 10 | 0.09 KM |
| Ashleigh Road, Mortlake | £ 925,000 | BUY | 7 / 10 | 0.11 KM |
Nearby Properties
| Address | Price | Distance |
|---|---|---|
| 41 Ashleigh Road | £ 211,000 | 0.13 KM |
| 93 Ashleigh Road | £ 924,000 | 0.13 KM |
| 45 Ashleigh Road | £ 775,000 | 0.13 KM |
| 1 Ashleigh Road | £ 25,000 | 0.13 KM |
| 3 Ashleigh Road | £ 550,000 | 0.13 KM |