Candor Property says ..
Candor Property is delighted to be appointed as the agent for this fantastic detached home, offering an abundance of potential for a future family to wanting to lay down roots in Gayton
Property Oracle says ..
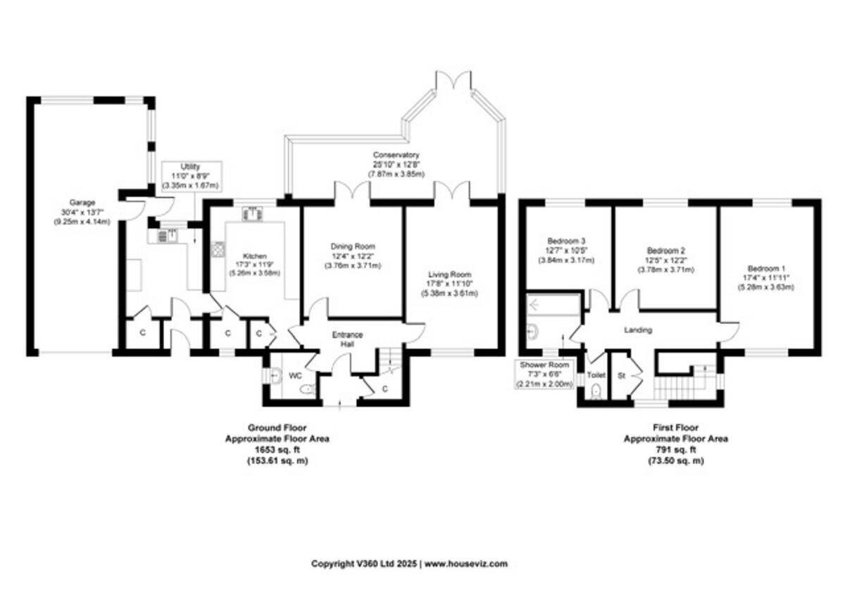
This detached property on Oaksway, Heswall, offers three bedrooms and one bathroom. While the location is desirable with good access to schools and local transportation via the nearby Heswall station, the property itself requires significant renovation. The large garden is a definite plus, providing ample outdoor space. However, the asking price of £700,000 appears high when compared to average property prices in the area, especially considering the condition of the interior. Nearby listings and properties on Oaksway suggest a varied price range, but the need for modernization makes this listing less competitive at its current price point.
Therefore, we give this property 6 / 10. *Disclaimer: This is our option and does constitute a recommendation or financial advice. Do your own research. *
- Price
- 5
- Condition
- 4
- Location
- 7
- Land
- 8
- Bedrooms
- 3
- Bathrooms
- 1
- Sqft (est)
- 263.00
The heatmap indicates the level of crime in the area. The color of the heatmap indicates the crime severity and recency.
Metrics Year-on-Year
- Average area value
- 476,574.00 £Decreased by 12.58 %
- Est sale value
- 103,359.00 £Decreased by 7.75 %
- Average area rental value
- 1,200.00 £/moDecreased by 11.24 %
- Est letting value
- 0.00 £/moDecreased by 100.00 %
- Est rental Yield
- 3.02 %Increased by 1.34 %
- Crime Rate
- 1.00 %Unchanged by 0.00 %
Agent Activity
Candor Property created the listing.
Nearby Schools
| Name | Type | Ofsted | Distance |
|---|---|---|---|
| Barnston Primary School | Community School | Good | 0.87 KM |
| Gayton Primary School | Community School | Good | 1.59 KM |
| Heswall Primary School | Community School | Good | 2.02 KM |
| Parkgate Primary School | Community School | Good | 2.26 KM |
| Heswall St Peter'S Cofe Primary School | Voluntary Aided School | Good | 2.44 KM |
Images
Nearby Streets
| Name | Average Price | Average Sqft | Distance |
|---|---|---|---|
| Kingsway | £ 0 | 0 | 0.00 KM |
| Dunster Grove | £ 0 | 0 | 0.00 KM |
| St Stephens Close | £ 0 | 0 | 0.00 KM |
| Old Mill Close | £ 0 | 0 | 0.00 KM |
| Chester Road | £ 711,000 | 0 | 0.00 KM |
Nearby Transport
| Name | NLC | TLC | Distance |
|---|---|---|---|
| Heswall | 2138 | HSW | 1.62 KM |
| Neston | 2139 | NES | 3.54 KM |
| Upton (Merseyside) | 2141 | UPT | 7.66 KM |
| Flint | 2513 | FLN | 9.45 KM |
| Bebington | 2188 | BEB | 9.72 KM |
Nearby Listings
| Address | Price | Type | Score | Distance |
|---|---|---|---|---|
| Oaksway, Wirral, CH60 3 | £ 700,000 | BUY | 6 / 10 | 0.00 KM |
| Oaksway, Wirral, CH60 3 | £ 700,000 | BUY | 6 / 10 | 0.00 KM |
| Kingsway, Heswall, Wirral | £ 675,000 | BUY | 6 / 10 | 0.17 KM |
| Kingsway, Heswall, Wirral | £ 650,000 | BUY | 7 / 10 | 0.17 KM |
| Latchford Road, Gayton, Wirral | £ 595,000 | BUY | 7 / 10 | 0.19 KM |
Nearby Properties
| Address | Price | Distance |
|---|---|---|
| 5 Oaksway | £ 720,000 | 0.04 KM |
| 6 Oaksway | £ 599,500 | 0.04 KM |
| 2 Oaksway | £ 616,000 | 0.04 KM |
| 20 Oaksway | £ 715,000 | 0.04 KM |
| 16 Oaksway | £ 559,250 | 0.04 KM |