Links Estate Agents says ..
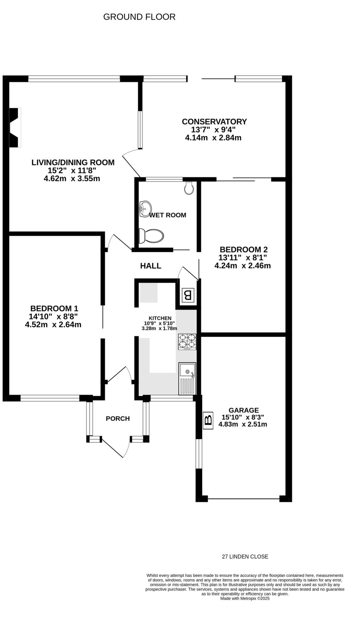
Offered for sale with NO ONWARD CHAIN and being located within walking distance of local shops and schools and close to a main bus route, is this 2 double bedroom mid terrace bungalow.
Property Oracle says ..
This two-bedroom mid-terrace bungalow in Linden Close, Exmouth, presents a potentially attractive opportunity for buyers. Its location offers convenience, being within walking distance of local shops and schools and close to public transport. The proximity to Brixington Primary Academy and other schools with good Ofsted ratings makes it appealing to families. The property includes a garage and a garden, offering additional practical benefits.
However, the property does appear to need some modernisation, specifically the kitchen and bathroom, which shows signs of being dated. The internal photos display a property that is generally clean but requires updating to meet modern standards. The condition, while not needing immediate repair, suggests potential renovation costs. More detail on the specifics would be required to verify this.
The price of £289,950 requires additional context, primarily the property’s size and condition of the structure, as this data is not provided in the property description. Comparing this price to other houses on Linden Close suggests a fair valuation for the property, making it a potentially sound investment, but further investigation into specifics is recommended before making a final decision. The absence of critical information regarding square footage and the lack of detail on features and the plot size make a conclusive valuation challenging.
Therefore, we give this property 5 / 10. *Disclaimer: This is our option and does constitute a recommendation or financial advice. Do your own research. *
- Price
- 7
- Condition
- 5
- Location
- 7
- Land
- 4
- Bedrooms
- 2
- Bathrooms
- 1
- Sqft (est)
- 965.20
The heatmap indicates the level of crime in the area. The color of the heatmap indicates the crime severity and recency.
Metrics Year-on-Year
- Average area value
- 412,759.00 £Increased by 3.22 %
- Est sale value
- 385,114.80 £Increased by 2.31 %
- Average area rental value
- 1,432.00 £/moDecreased by 13.89 %
- Est letting value
- 965.20 £/moUnchanged by 0.00 %
- Est rental Yield
- 4.16 %Decreased by 16.63 %
- Crime Rate
- 2.00 %Unchanged by 0.00 %
Agent Activity
Links Estate Agents created the listing.
Nearby Schools
| Name | Type | Ofsted | Distance |
|---|---|---|---|
| Brixington Primary Academy | Academy Sponsor Led | Requires improvement | 0.35 KM |
| Marpool Primary School | Foundation School | Good | 0.72 KM |
| Withycombe Raleigh Church Of England Primary School | Voluntary Controlled School | Good | 0.82 KM |
| Exmouth & District Children'S Centre | Children's Centre | 0.83 KM | |
| Bassetts Farm Primary School | Foundation School | Good | 0.90 KM |
Images
Nearby Streets
| Name | Average Price | Average Sqft | Distance |
|---|---|---|---|
| Linden Close | £ 289,950 | 0 | 0.00 KM |
| Broad Park Road | £ 350,000 | 0 | 0.00 KM |
| Brook Meadow | £ 0 | 0 | 0.00 KM |
| Chestnut Close | £ 385,000 | 0 | 0.00 KM |
| Somerville Close | £ 0 | 0 | 0.00 KM |
Nearby Transport
| Name | NLC | TLC | Distance |
|---|---|---|---|
| Exmouth | 5756 | EXM | 2.80 KM |
| Lympstone Village | 5761 | LYM | 4.39 KM |
| Lympstone Commando | 5762 | LYC | 6.04 KM |
| Starcross | 3413 | SCS | 6.04 KM |
| Exton | 5760 | EXN | 6.70 KM |
Nearby Listings
| Address | Price | Type | Score | Distance |
|---|---|---|---|---|
| Linden Close, Exmouth | £ 289,950 | BUY | 5 / 10 | 0.00 KM |
| Linden Close, Exmouth, Devon | £ 290,000 | BUY | 6 / 10 | 0.03 KM |
| Linden Close, Exmouth, Devon, EX8 | £ 194,250 | BUY | 6 / 10 | 0.03 KM |
| Linden Close, Exmouth, EX8 4JW | £ 425,000 | BUY | 8 / 10 | 0.04 KM |
| Greenpark Road, Exmouth, EX8 4JN | £ 329,950 | BUY | 7 / 10 | 0.06 KM |
Nearby Properties
| Address | Price | Distance |
|---|---|---|
| 39 Linden Close | £ 325,000 | 0.03 KM |
| 13 Linden Close | £ 189,000 | 0.03 KM |
| 23 Linden Close | £ 161,000 | 0.03 KM |
| 31 Linden Close | £ 250,000 | 0.03 KM |
| 25 Linden Close | £ 182,000 | 0.03 KM |