Chancellors says ..
Situated on Connaught Park is this three bedroom link detached home with a driveway to garage. The property is offered to the market with no oward chain.
Property Oracle says ..
This property is a 3-bedroom, 2-bathroom link detached house located in Bagshot, Surrey. The house is in good condition and benefits from a good-sized garden. While the average price per square foot in the area is £438, this property is listed at a price that is below average for the area, making it potentially good value for money. The location is convenient with nearby schools and transportation links. The property appears well-maintained and modern, with a contemporary kitchen and bathrooms. The garden is a notable feature, offering a private outdoor space.
Therefore, we give this property 7 / 10. *Disclaimer: This is our option and does constitute a recommendation or financial advice. Do your own research. *
- Price
- 8
- Condition
- 8
- Location
- 7
- Land
- 7
- Bedrooms
- 3
- Bathrooms
- 2
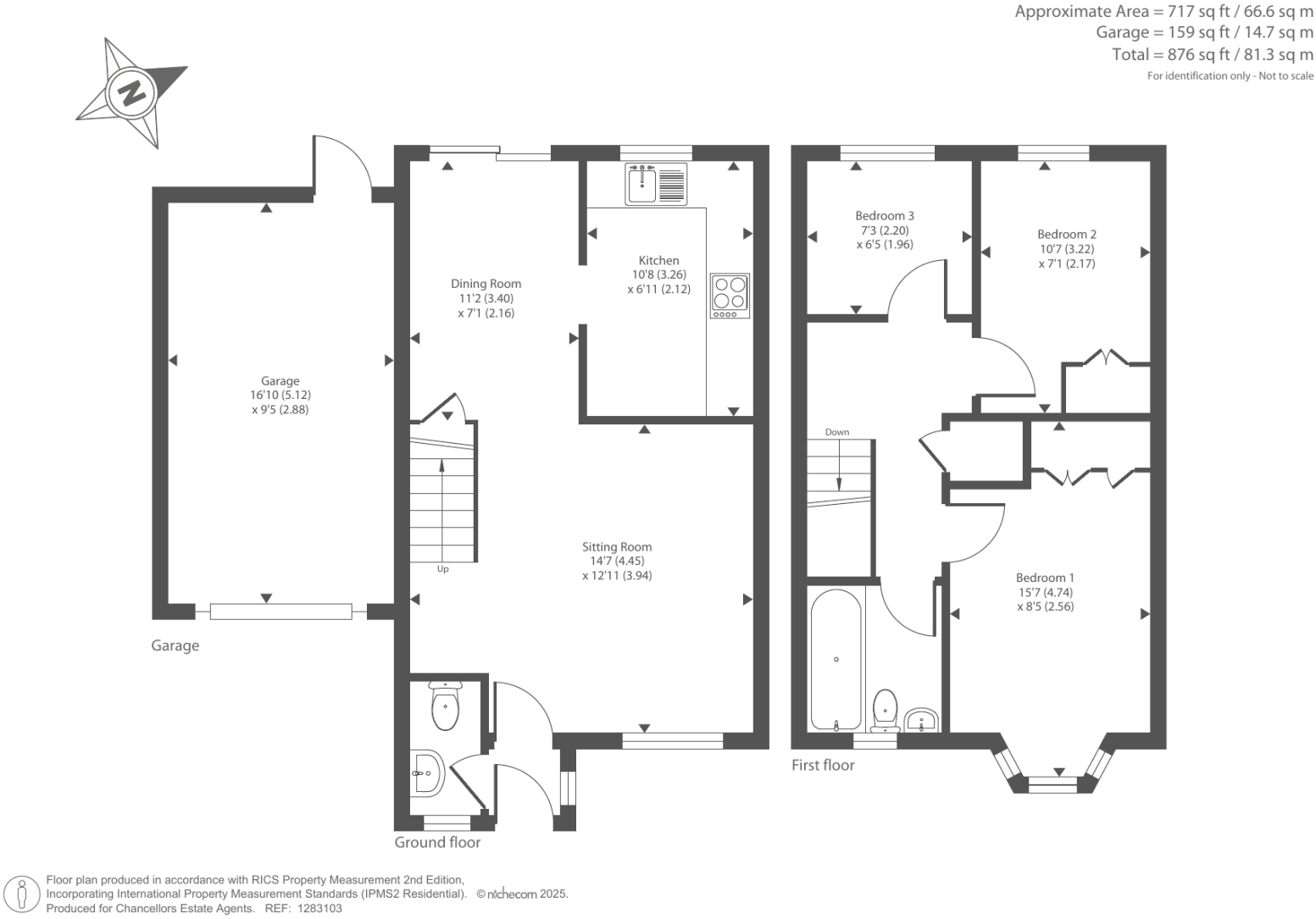
- Sqft (est)
- 876.00
- Lot (est)
- 717.00
The heatmap indicates the level of crime in the area. The color of the heatmap indicates the crime severity and recency.
Metrics Year-on-Year
- Average area value
- 1,043,333.00 £Increased by 83.77 %
- Est sale value
- 1,156,320.00 £Increased by 225.12 %
- Average area rental value
- 6,842.00 £/moIncreased by 222.89 %
- Est letting value
- 7,008.00 £/moIncreased by 700.00 %
- Est rental Yield
- 7.87 %Increased by 75.67 %
- Crime Rate
- 15.00 %Unchanged by 0.00 %
Agent Activity
Chancellors created the listing.
Nearby Schools
| Name | Type | Ofsted | Distance |
|---|---|---|---|
| Bagshot Infant School & Sure Start Children'S Centre | Children's Centre | 0.41 KM | |
| Bagshot Infant School | Community School | Good | 0.41 KM |
| Connaught Junior School | Academy Converter | Good | 0.42 KM |
| Hammond School | Academy Converter | Good | 1.51 KM |
| Lightwater Village School | Academy Converter | 2.01 KM |
Images
Nearby Streets
| Name | Average Price | Average Sqft | Distance |
|---|---|---|---|
| Woodside Close | £ 0 | 0 | 0.00 KM |
| Cedar Court | £ 350,000 | 0 | 0.00 KM |
| Hamilton Close | £ 0 | 0 | 0.00 KM |
| Park Street | £ 0 | 0 | 0.00 KM |
| Wardle Close | £ 463,333 | 0 | 0.00 KM |
Nearby Transport
| Name | NLC | TLC | Distance |
|---|---|---|---|
| Bagshot | 5681 | BAG | 1.11 KM |
| Ascot (Berks) | 5666 | ACT | 5.98 KM |
| Camberley | 5682 | CAM | 6.14 KM |
| Martins Heron | 5692 | MAO | 6.85 KM |
| Sunningdale | 5671 | SNG | 7.71 KM |
Nearby Listings
| Address | Price | Type | Score | Distance |
|---|---|---|---|---|
| Bagshot, Surrey, GU19 | £ 480,000 | BUY | 7 / 10 | 0.00 KM |
| Suffolk Close, Bagshot | £ 350,000 | BUY | 6 / 10 | 0.07 KM |
| Bagshot, Surrey, GU19 | £ 475,000 | BUY | Unknown | 0.12 KM |
| Shepherds Chase, Bagshot, Surrey, GU19 | £ 375,000 | BUY | 6 / 10 | 0.14 KM |
| Webb Close, Bagshot | £ 325,000 | BUY | 7 / 10 | 0.20 KM |
Nearby Properties
| Address | Price | Distance |
|---|---|---|
| 17 Suffolk Close | £ 340,000 | 0.06 KM |
| 3 Suffolk Close | £ 375,000 | 0.06 KM |
| 13 Suffolk Close | £ 275,000 | 0.06 KM |
| 10 Suffolk Close | £ 414,000 | 0.06 KM |
| 8 Suffolk Close | £ 362,000 | 0.06 KM |