St. Marys Lane, Upminster, RM14
By Beresfords
£ 800,000
Reviews
3 out of 5 stars
Beresfords says ..
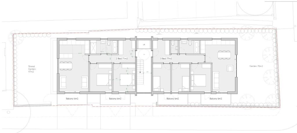
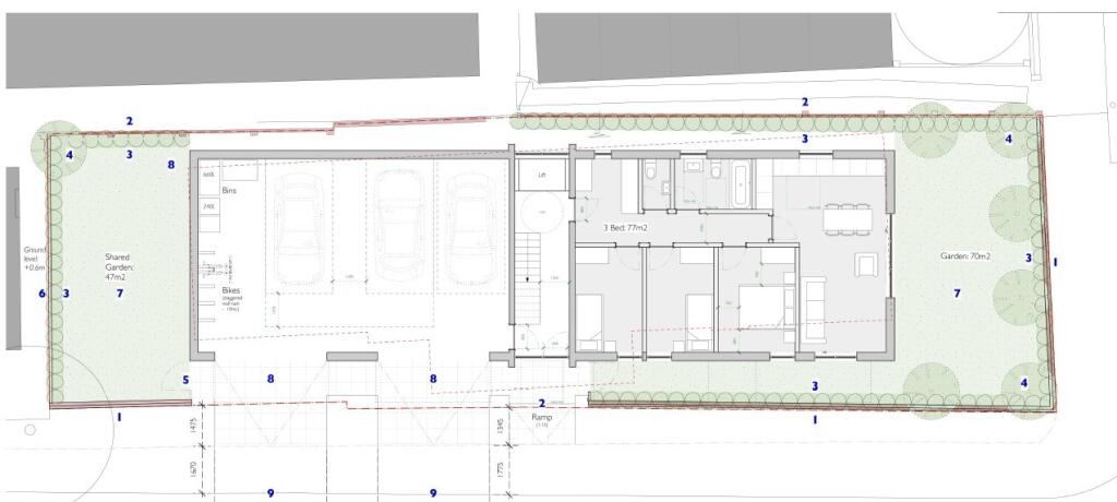
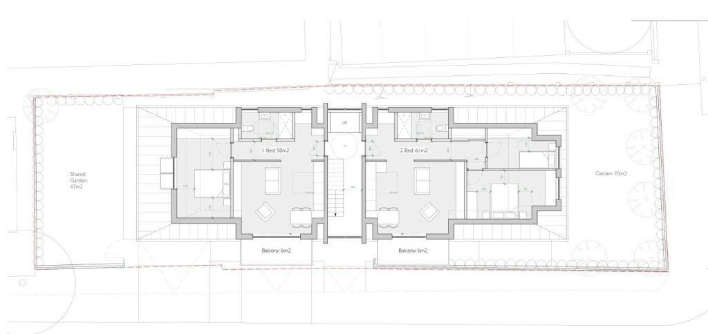
Development opportunity for 5 self contained flats on a 0.08 acre plot (STLS).
Property Oracle says ..
The property is located in Upminster, Greater London, which is a desirable area with good transport links and schools. The average house price in the area is £450,015, and the average price per square foot is £400. The property is listed at £800,000, which is significantly higher than the average price. However, without information on the size of the property or the plot, it is difficult to assess the value for money. The property appears to be a new development, based on the provided images, and is likely to be in good condition. The location is convenient, with several schools and transport links nearby. The images show a small garden area.
Therefore, we give this property 7 / 10. *Disclaimer: This is our option and does constitute a recommendation or financial advice. Do your own research. *
- Price
- 4
- Condition
- 9
- Location
- 9
- Land
- 6
- Bedrooms
- 0
- Bathrooms
- 0
The heatmap indicates the level of crime in the area. The color of the heatmap indicates the crime severity and recency.
Metrics Year-on-Year
- Average area value
- 741,667.00 £Increased by 14.82 %
- Average area rental value
- 1,650.00 £/moIncreased by 2.61 %
- Est rental Yield
- 2.67 %Decreased by 10.70 %
- Crime Rate
- 9.00 %Unchanged by 0.00 %
Agent Activity
Beresfords created the listing.
Nearby Schools
| Name | Type | Ofsted | Distance |
|---|---|---|---|
| Sacred Heart Of Mary Girls' School | Academy Converter | Outstanding | 0.13 KM |
| St Joseph'S Catholic Primary School | Voluntary Aided School | Good | 0.68 KM |
| Upminster Infant School | Academy Converter | 0.89 KM | |
| Upminster Junior School | Academy Converter | Good | 0.89 KM |
| Branfil Primary School | Community School | Good | 0.91 KM |
Images
Nearby Streets
| Name | Average Price | Average Sqft | Distance |
|---|---|---|---|
| Maple Avenue | £ 900,000 | 0 | 0.00 KM |
| Minster Court | £ 0 | 0 | 0.00 KM |
| Belmont Avenue | £ 0 | 0 | 0.00 KM |
| Station Approach | £ 0 | 0 | 0.00 KM |
| Highfield Crescent | £ 675,000 | 0 | 0.00 KM |
Nearby Transport
| Name | NLC | TLC | Distance |
|---|---|---|---|
| Upminster | 7464 | UPM | 0.95 KM |
| Emerson Park | 7473 | EMP | 2.77 KM |
| Harold Wood | 6879 | HRO | 4.08 KM |
| Gidea Park | 6877 | GDP | 4.88 KM |
| Ockendon | 7451 | OCK | 6.61 KM |
Nearby Listings
| Address | Price | Type | Score | Distance |
|---|---|---|---|---|
| St. Marys Lane, Upminster, RM14 | £ 800,000 | BUY | 7 / 10 | 0.00 KM |
| Highview Gardens, Upminster, RM14 | £ 300,000 | BUY | 7 / 10 | 0.05 KM |
| Highview Gardens, Upminster, RM14 | £ 625,000 | BUY | 6 / 10 | 0.09 KM |
| Carlton Close, Upminster, RM14 | £ 290,000 | BUY | 5 / 10 | 0.10 KM |
| Highview Gardens, Upminster, RM14 | £ 600,000 | BUY | 7 / 10 | 0.10 KM |
Nearby Properties
| Address | Price | Distance |
|---|---|---|
| 60 St Marys Lane | £ 567,500 | 0.05 KM |
| 26 Tyrells Close | £ 123,000 | 0.08 KM |
| 4 Tyrells Close | £ 185,000 | 0.08 KM |
| 15 Tyrells Close | £ 117,000 | 0.08 KM |
| 10 Tyrells Close | £ 270,000 | 0.08 KM |