Hintons Croft, Wanborough, Swindon, SN4
By Richard James
£ 850,000
Reviews
3 out of 5 stars
Richard James says ..
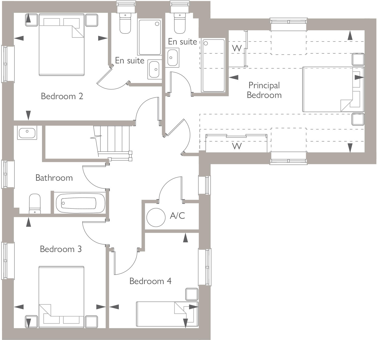
READY NOW - BRAND NEW HOME FOR SUMMER. Bewley Homes are constructing five exclusive 4-bedroom detached homes located on Ham Road in Wanborough. Comprising large gardens, off-road parking and garages, Hinton’s Croft is well-located to both Wanborough village and Swindon.
Property Oracle says ..
This property is a modern detached house located in Wanborough, Swindon. The location benefits from being close to Wanborough Primary School (rated good by Ofsted), making it attractive to families. While the plot size is not specified, the images show a small front garden. The house itself appears to be in excellent condition, with modern fixtures and fittings throughout. The average price per sqft in the area is £366, and while the listed price is higher than the average, comparable properties in the area support the higher price point. The property is well presented and benefits from a modern design and finish.
Therefore, we give this property 7 / 10. *Disclaimer: This is our option and does constitute a recommendation or financial advice. Do your own research. *
- Price
- 7
- Condition
- 10
- Location
- 8
- Land
- 3
- Bedrooms
- 4
- Bathrooms
- 3
- Sqft (est)
- 810.00
The heatmap indicates the level of crime in the area. The color of the heatmap indicates the crime severity and recency.
Metrics Year-on-Year
- Average area value
- 609,297.00 £Increased by 5.87 %
- Est sale value
- 344,250.00 £Increased by 1.67 %
- Average area rental value
- 2,026.00 £/moDecreased by 4.21 %
- Est letting value
- 810.00 £/moUnchanged by 0.00 %
- Est rental Yield
- 3.99 %Decreased by 9.52 %
- Crime Rate
- 56.00 %Unchanged by 0.00 %
Agent Activity
Richard James created the listing.
Nearby Schools
| Name | Type | Ofsted | Distance |
|---|---|---|---|
| Wanborough Primary School | Community School | Good | 0.62 KM |
| Liden Academy | Academy Converter | 3.65 KM | |
| The Chalet School | Academy Special Sponsor Led | 3.68 KM | |
| Chiseldon Primary & Nursery School | Community School | Good | 4.03 KM |
| The Dorcan Academy | Academy Converter | Requires improvement | 4.12 KM |
Images
Nearby Streets
| Name | Average Price | Average Sqft | Distance |
|---|---|---|---|
| Mayfield | £ 525,000 | 0 | 0.00 KM |
| Stanley Close | £ 0 | 0 | 0.00 KM |
| Grange Close | £ 0 | 0 | 0.00 KM |
| Chapel Lane | £ 0 | 0 | 0.00 KM |
| Manor View | £ 0 | 0 | 0.00 KM |
Nearby Listings
| Address | Price | Type | Score | Distance |
|---|---|---|---|---|
| Hintons Croft, Wanborough, Swindon, SN4 | £ 850,000 | BUY | 7 / 10 | 0.00 KM |
| Hintons Croft, Wanborough, Swindon, SN4 | £ 899,950 | BUY | 8 / 10 | 0.00 KM |
| Hintons Croft, Wanborough, Swindon, SN4 | £ 850,000 | BUY | 7 / 10 | 0.00 KM |
| Ham Road, Wanborough, Wiltshire, SN4 | £ 1,100,000 | BUY | 7 / 10 | 0.01 KM |
| Ham Road, Wanborough, SN4 | £ 775,000 | BUY | 7 / 10 | 0.11 KM |
Nearby Properties
| Address | Price | Distance |
|---|---|---|
| 16 Ham Road | £ 705,000 | 0.01 KM |
| 4 Ham Road | £ 505,000 | 0.01 KM |
| Waterleigh | £ 515,000 | 0.02 KM |
| 12 Ham Road | £ 325,000 | 0.02 KM |
| 21 Warneage Green | £ 150,000 | 0.33 KM |