Blackheath Avenue, Ipswich, IP3
By Joseph Property Agency
£ 210,000
Reviews
3 out of 5 stars
Joseph Property Agency says ..
Situated in the sought-after East Ipswich location, this two bedroom apartment offers a blend of modern comfort and convenience. Boasting a well-presented interior, this residence is an ideal choice for those seeking a stylish and functional living space.
Property Oracle says ..
The property is a well-maintained two-bedroom, two-bathroom apartment in a convenient location. While smaller than the average property size in the area, its price per sqft is significantly below average, suggesting good value. The proximity to amenities and transport links is a plus. The small patio area is a welcome addition.
Therefore, we give this property 7 / 10. *Disclaimer: This is our option and does constitute a recommendation or financial advice. Do your own research. *
- Price
- 8
- Condition
- 9
- Location
- 8
- Land
- 3
- Bedrooms
- 2
- Bathrooms
- 2
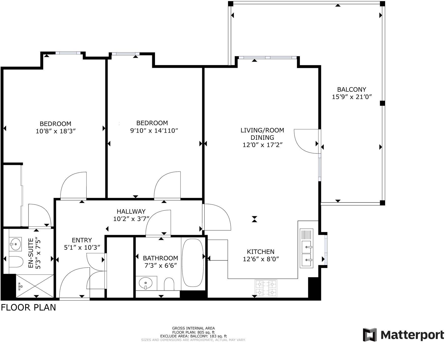
- Sqft (est)
- 805.00
The heatmap indicates the level of crime in the area. The color of the heatmap indicates the crime severity and recency.
Metrics Year-on-Year
- Average area value
- 384,737.00 £Decreased by 1.20 %
- Est sale value
- 327,635.00 £Increased by 15.95 %
- Average area rental value
- 1,963.00 £/moIncreased by 39.81 %
- Est letting value
- 1,610.00 £/moIncreased by 100.00 %
- Est rental Yield
- 6.12 %Increased by 41.34 %
- Crime Rate
- 7.00 %Unchanged by 0.00 %
Agent Activity
Joseph Property Agency created the listing.
Nearby Schools
| Name | Type | Ofsted | Distance |
|---|---|---|---|
| Britannia Primary School And Nursery | Academy Sponsor Led | 0.51 KM | |
| Copleston High School | Academy Converter | Good | 0.54 KM |
| Quayside Children'S Centre | Children's Centre | 0.59 KM | |
| Chatterbox Children'S Centre | Children's Centre | 0.59 KM | |
| East Ipswich Children'S Centre | Children's Centre | 0.74 KM |
Images
Nearby Streets
| Name | Average Price | Average Sqft | Distance |
|---|---|---|---|
| The Boiler House | £ 311,500 | 0 | 0.00 KM |
| Coronation Road | £ 231,667 | 0 | 0.00 KM |
| Churchill Avenue | £ 0 | 0 | 0.00 KM |
| Eden Road | £ 300,000 | 0 | 0.00 KM |
| Halliwell Road | £ 375,000 | 0 | 0.00 KM |
Nearby Transport
| Name | NLC | TLC | Distance |
|---|---|---|---|
| Derby Road (Ipswich) | 7212 | DBR | 1.17 KM |
| Westerfield | 7226 | WFI | 4.59 KM |
| Ipswich | 7217 | IPS | 5.39 KM |
Nearby Listings
| Address | Price | Type | Score | Distance |
|---|---|---|---|---|
| Blackheath Avenue, Ipswich, IP3 | £ 210,000 | BUY | 7 / 10 | 0.00 KM |
| 7 Blackheath Avenue, IP3 | £ 200,000 | BUY | 6 / 10 | 0.01 KM |
| Blackheath Avenue, Ipswich, IP3 | £ 200,000 | BUY | 6 / 10 | 0.04 KM |
| Blackheath Avenue, Ipswich | £ 415,000 | BUY | 7 / 10 | 0.04 KM |
| Blackheath Avenue, Ipswich | £ 180,000 | BUY | 6 / 10 | 0.06 KM |
Nearby Properties
| Address | Price | Distance |
|---|---|---|
| 467 Foxhall Road | £ 183,500 | 0.24 KM |
| 471 Foxhall Road | £ 240,000 | 0.24 KM |
| 507 Foxhall Road | £ 180,000 | 0.24 KM |
| 493 Foxhall Road | £ 307,000 | 0.24 KM |
| 539 Foxhall Road | £ 125,000 | 0.31 KM |