Main Road, Whatstandwell, Matlock
CU

Main Road, Whatstandwell, Matlock

By Curran Birds + Co

£ 200,000

Reviews

3 out of 5 stars

Curran Birds + Co says ..

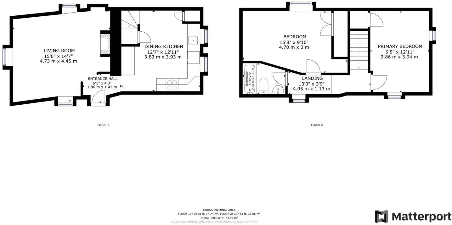
OPEN DAY - SATURDAY 5th OCTOBER 10AM - 1PM - BARLEY COTTAGE - A delightful stone-built two double bedroom end terraced cottage, offering beautifully appointed accommodation with a wealth of character and charm throughout. This Grade II listed home dates back to the 18th Century and offers many ch...

Property Oracle says ..

This property is a charming 2-bedroom, 1-bathroom house located in Whatstandwell, Derbyshire. The property benefits from being close to local amenities and has good transport links. The asking price of £200,000 is slightly below the average price for the area, however, more information is needed to accurately assess the value for money. The property appears to be in good condition and benefits from a small enclosed patio area.

Therefore, we give this property 6 / 10. *Disclaimer: This is our option and does constitute a recommendation or financial advice. Do your own research. *

Price
7
Condition
8
Location
7
Land
3
Bedrooms
2
Bathrooms
1
Sqft (est)
802.88

The heatmap indicates the level of crime in the area. The color of the heatmap indicates the crime severity and recency.

Metrics Year-on-Year

Average area value
178,750.00 £
Decreased by 27.19 %
from 245,507.00 £
Est sale value
189,479.68 £
Increased by 5.36 %
from 179,845.12 £
Average area rental value
583.00 £/mo
Decreased by 41.05 %
from 989.00 £/mo
Est letting value
0.00 £/mo
from 0.00 £/mo
Est rental Yield
3.91 %
Decreased by 19.05 %
from 4.83 %
Crime Rate
15.00 %
Unchanged by 0.00 %
from 15.00 %

Agent Activity

  • Curran Birds + Co marked this listing as sold.

  • Curran Birds + Co created the listing.

Nearby Schools

NameTypeOfstedDistance
Crich Carr Cofe Primary SchoolVoluntary Controlled SchoolGood0.29 KM
Alderwasley Hall SchoolOther Independent Special SchoolGood1.75 KM
Crich Church Of England Infant SchoolVoluntary Controlled SchoolGood2.35 KM
Crich Junior SchoolCommunity SchoolOutstanding2.49 KM
Lea Primary SchoolCommunity SchoolOutstanding3.61 KM

Images

LF2B3141_HDR.jpg LF2B3361_HDR.jpg LF2B3351_HDR.jpg DJI_0226_HDR.jpg LF2B3329_HDR.jpg LF2B3331_HDR.jpg LF2B3336_HDR.jpg LF2B3374_HDR.jpg LF2B3368_HDR.jpg LF2B3403_HDR.jpg LF2B3384_HDR.jpg LF2B3411_HDR.jpg DJI_0201_Barley CottageHDR.jpg LF2B3399_HDR.jpg LF2B3388_HDR.jpg LF2B3406_HDR.jpg LF2B3417_HDR.jpg LF2B3164_HDR.jpg LF2B8665_HDR.jpeg LF2B3179_HDR.jpg

Nearby Streets

NameAverage PriceAverage SqftDistance
Matlock Road £ 000.00 KM
Derwent Way £ 000.00 KM
Derby Road £ 000.00 KM
New Road £ 000.00 KM
Town End £ 950,00000.00 KM

Nearby Transport

NameNLCTLCDistance
Whatstandwell1585WTS0.44 KM
Ambergate1678AMB3.37 KM
Cromford1822CMF6.32 KM
Belper1679BLP6.96 KM
Matlock Bath1582MTB7.59 KM

Nearby Listings

AddressPriceTypeScoreDistance
Main Road, Whatstandwell, Matlock £ 200,000BUY6 / 100.00 KM
Main Road, Whatstandwell, Matlock, DE4 £ 300,000BUYUnknown0.23 KM
Main Road, Whatstandwell, Matlock £ 650,000BUY7 / 100.24 KM
Shaws Hill, DE4 £ 475,000BUY6 / 100.64 KM
Shaws Hill, Whatstandwell, Matlock £ 800,000BUY7 / 100.64 KM

Nearby Properties

AddressPriceDistance
9 Hindersitch Lane £ 155,0000.11 KM
Riverdale £ 375,0000.12 KM
Eden End Cottage £ 185,0000.13 KM
7 Hindersitch Lane £ 270,0000.15 KM
37 Main Road £ 160,0000.21 KM