Lambyn Croft, Horley, Surrey, RH6
By Mayhew Estates
£ 550,000
Reviews
3 out of 5 stars
Mayhew Estates says ..
OFFERED TO THE MARKET ON A PRICE GUIDE OF £550,000 - £600,000. GREAT FAMILY HOME! A well presented four bedroom detached family home situated in a popular cul-de-sac on the desirable Langshott estate in Horley. CHAIN FREE
Property Oracle says ..
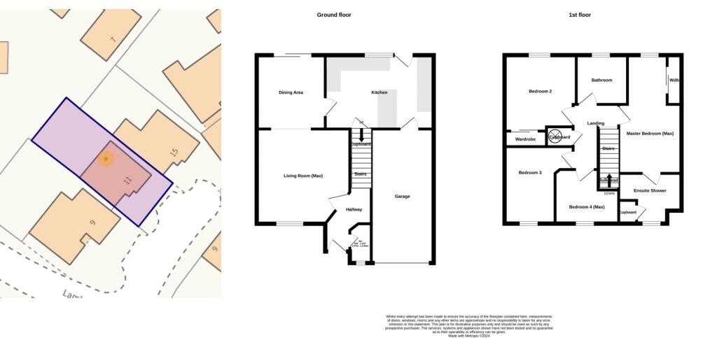
This four-bedroom, two-bathroom detached house located on Oakside Lane in the Langshott estate of Horley, Surrey offers a family-friendly living space. The property is conveniently positioned near good schools, with several primary schools receiving ‘Good’ Ofsted ratings within a short distance. Horley benefits from relatively easy access to Gatwick Airport and rail connections to London. While the photos reveal a property needing some cosmetic modernisation, especially some dated wallpaper and what appears to be carpeting throughout, it’s structurally sound and offers a modern kitchen. A functional, medium-sized rear garden is present, providing a space for outdoor activities. While comparable properties are available, this house is in line with overall prices in the area and could be attractive to families seeking a comfortable home near good transport links and schools. The absence of definitive square footage data for nearby properties makes a fully informed price-per-square-foot analysis impossible, limiting the certainty of the pricing assessment. A property survey would be advised.
Therefore, we give this property 6 / 10. *Disclaimer: This is our option and does constitute a recommendation or financial advice. Do your own research. *
- Price
- 7
- Condition
- 6
- Location
- 7
- Land
- 5
- Bedrooms
- 4
- Bathrooms
- 2
- Sqft (est)
- 1,194.79
The heatmap indicates the level of crime in the area. The color of the heatmap indicates the crime severity and recency.
Metrics Year-on-Year
- Average area value
- 599,545.00 £Increased by 35.17 %
- Est sale value
- 600,979.37 £Increased by 19.76 %
- Average area rental value
- 1,964.00 £/moIncreased by 8.15 %
- Est letting value
- 1,194.79 £/moUnchanged by 0.00 %
- Est rental Yield
- 3.93 %Decreased by 19.96 %
- Crime Rate
- 6.00 %Unchanged by 0.00 %
Agent Activity
Mayhew Estates created the listing.
Nearby Schools
| Name | Type | Ofsted | Distance |
|---|---|---|---|
| Trinity Oaks Church Of England Primary School | Voluntary Aided School | Good | 0.40 KM |
| Langshott Primary School | Community School | Good | 0.82 KM |
| Oakwood School | Community School | Good | 0.95 KM |
| Yattendon School | Foundation School | Good | 1.61 KM |
| Horley Infant School | Community School | Good | 1.66 KM |
Images
Nearby Streets
| Name | Average Price | Average Sqft | Distance |
|---|---|---|---|
| Honeysuckle Close | £ 0 | 0 | 0.00 KM |
| Burgess Road | £ 0 | 0 | 0.00 KM |
| generic bridge | £ 0 | 0 | 0.00 KM |
| Maizecroft | £ 235,000 | 0 | 0.00 KM |
| Meadowside | £ 0 | 0 | 0.00 KM |
Nearby Transport
| Name | NLC | TLC | Distance |
|---|---|---|---|
| Horley | 5365 | HOR | 1.73 KM |
| Gatwick Airport | 5416 | GTW | 2.85 KM |
| Salfords (Surrey) | 5380 | SAF | 2.87 KM |
| Nutfield | 5476 | NUF | 5.61 KM |
| Earlswood (Surrey) | 5414 | ELD | 5.83 KM |
Nearby Listings
| Address | Price | Type | Score | Distance |
|---|---|---|---|---|
| Lambyn Croft, Horley, RH6 | £ 600,000 | BUY | 7 / 10 | 0.03 KM |
| Lambyn Croft, Horley, Surrey | £ 380,000 | BUY | Unknown | 0.05 KM |
| Oakside Lane, Horley | £ 475,000 | BUY | Unknown | 0.08 KM |
| Oakside Lane, Horley, Surrey | £ 314,000 | BUY | Unknown | 0.08 KM |
| Oakside Lane, Horley, Surrey | £ 475,000 | BUY | Unknown | 0.08 KM |
Nearby Properties
| Address | Price | Distance |
|---|---|---|
| 15 Lambyn Croft | £ 480,000 | 0.03 KM |
| 5 Lambyn Croft | £ 520,000 | 0.03 KM |
| 8 Lambyn Croft | £ 394,000 | 0.03 KM |
| 10 Lambyn Croft | £ 352,000 | 0.03 KM |
| 11 Lambyn Croft | £ 355,000 | 0.03 KM |