Grovelands Road, Orpington
By Langford Russell
£ 400,000
Reviews
3 out of 5 stars
Langford Russell says ..
This beautifully presented three-bedroom, mid-terrace property on the ever-popular Grovelands Road offers a perfect balance of contemporary style, comfort, and everyday practicality. Step inside to discover a bright and spacious reception room, thoughtfully designed to enhance natural ...
Property Oracle says ..
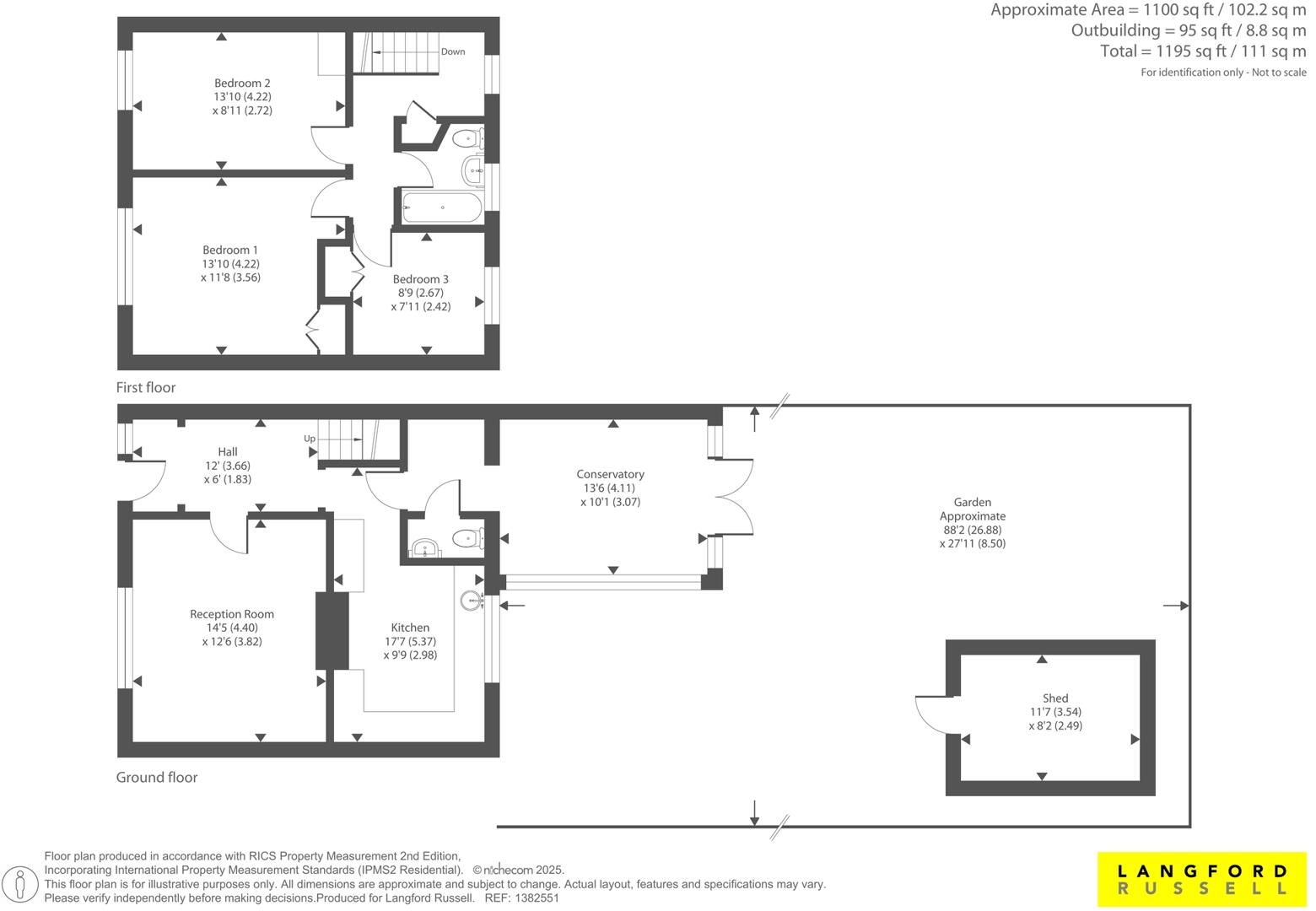
This is a three-bedroom semi-detached house in Orpington, offered by Langford Russell. The property benefits from two bathrooms and a garden with a shed. While the house is in reasonable condition, some modernisation could enhance its appeal. The location is convenient for families, with nearby schools and transport links. The asking price of £400,000 seems reasonable given the size (1,194.79 sqft) and location, especially when compared to the average area price of £770,000.
Therefore, we give this property 7 / 10. *Disclaimer: This is our option and does constitute a recommendation or financial advice. Do your own research. *
- Price
- 8
- Condition
- 6
- Location
- 7
- Land
- 7
- Bedrooms
- 3
- Bathrooms
- 2
- Sqft (est)
- 1,194.79
The heatmap indicates the level of crime in the area. The color of the heatmap indicates the crime severity and recency.
Metrics Year-on-Year
- Average area value
- 770,000.00 £Increased by 1.19 %
- Est sale value
- 845,911.32 £Increased by 35.89 %
- Average area rental value
- 1,713.00 £/moDecreased by 7.36 %
- Est letting value
- 1,194.79 £/moUnchanged by 0.00 %
- Est rental Yield
- 2.67 %Decreased by 8.56 %
- Crime Rate
- 9.00 %Unchanged by 0.00 %
Agent Activity
Langford Russell created the listing.
Nearby Schools
| Name | Type | Ofsted | Distance |
|---|---|---|---|
| Midfield Primary School | Academy Converter | Outstanding | 0.45 KM |
| Kemnal Technology College | Academy Converter | Serious Weaknesses | 0.48 KM |
| Gray'S Farm Primary Academy | Academy Sponsor Led | Good | 0.68 KM |
| Cotmandene Children And Family Centre | Children's Centre | 0.69 KM | |
| The Oval | Children's Centre Linked Site | 1.14 KM |
Images
Nearby Streets
| Name | Average Price | Average Sqft | Distance |
|---|---|---|---|
| Sevenoaks Way | £ 553,750 | 0 | 0.00 KM |
| Wateringbury Close | £ 0 | 0 | 0.00 KM |
| Leigh Terrace | £ 525,000 | 0 | 0.00 KM |
| Frognal Avenue | £ 0 | 0 | 0.00 KM |
| Southfield Road | £ 0 | 0 | 0.00 KM |
Nearby Transport
| Name | NLC | TLC | Distance |
|---|---|---|---|
| St Mary Cray | 5073 | SMY | 1.68 KM |
| Sidcup | 5125 | SID | 2.69 KM |
| Albany Park | 5132 | AYP | 3.57 KM |
| Petts Wood | 5123 | PET | 4.24 KM |
| Orpington | 5122 | ORP | 4.50 KM |
Nearby Listings
| Address | Price | Type | Score | Distance |
|---|---|---|---|---|
| Grovelands Road, Orpington | £ 400,000 | BUY | 7 / 10 | 0.00 KM |
| Midfield Way, Orpington, BR5 | £ 625,000 | BUY | 8 / 10 | 0.09 KM |
| Bostall Road, Orpington | £ 450,000 | BUY | 7 / 10 | 0.15 KM |
| Lullingstone Crescent, Orpington | £ 425,000 | BUY | 6 / 10 | 0.16 KM |
| Lullingstone Crescent, Orpington, BR5 | £ 460,000 | BUY | 7 / 10 | 0.17 KM |
Nearby Properties
| Address | Price | Distance |
|---|---|---|
| 25 Grovelands Road | £ 270,000 | 0.01 KM |
| 5 Grovelands Road | £ 459,506 | 0.01 KM |
| 27 Grovelands Road | £ 225,000 | 0.01 KM |
| 11 Grovelands Road | £ 350,000 | 0.01 KM |
| 37 Grovelands Road | £ 235,000 | 0.01 KM |