Russell Gardens, Sipson, West Drayton, UB7
By Kearns Residential
£ 280,000
Reviews
2 out of 5 stars
Kearns Residential says ..
A one bedroom freehold property. Found in close proximity to Heathrow Airport and West Drayton station.
Property Oracle says ..
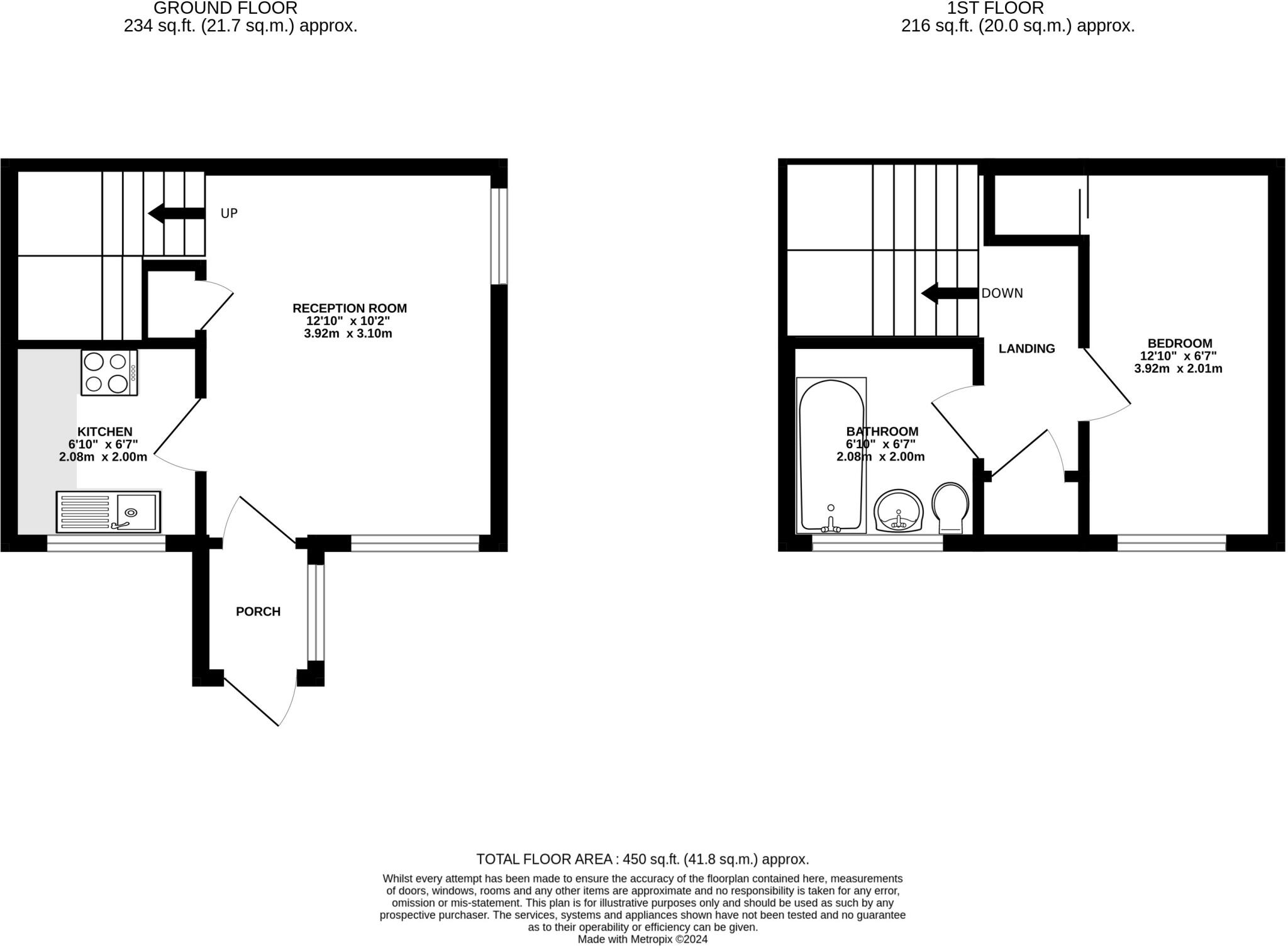
This one-bedroom terraced house in Russell Gardens, Sipson, offers a convenient location near Heathrow Airport and West Drayton station. The property’s proximity to public transport links and the M4 motorway makes it attractive for commuters. The inclusion of a small garden is a desirable feature. Inside, the property appears to be in livable condition but would benefit from some modernisation, particularly in the kitchen and bathroom. The kitchen appears outdated and in need of updating. The bathroom also shows its age. The overall condition is acceptable, but an upgrade could significantly improve its value. The property’s proximity to schools is a plus for families or potential investors interested in renting to families. The absence of precise square footage data for similar properties limits the precision of the price per square foot analysis; however, the price appears reasonable given the location, size and overall state of the property.
Therefore, we give this property 5 / 10. *Disclaimer: This is our option and does constitute a recommendation or financial advice. Do your own research. *
- Price
- 7
- Condition
- 5
- Location
- 6
- Land
- 3
- Bedrooms
- 1
- Bathrooms
- 1
- Sqft (est)
- 450.00
The heatmap indicates the level of crime in the area. The color of the heatmap indicates the crime severity and recency.
Metrics Year-on-Year
- Average area value
- 354,989.00 £Decreased by 17.80 %
- Est sale value
- 129,600.00 £Decreased by 39.87 %
- Average area rental value
- 1,560.00 £/moDecreased by 9.20 %
- Est letting value
- 450.00 £/moUnchanged by 0.00 %
- Est rental Yield
- 5.27 %Increased by 10.48 %
- Crime Rate
- 16.00 %Unchanged by 0.00 %
Agent Activity
Kearns Residential created the listing.
Nearby Schools
| Name | Type | Ofsted | Distance |
|---|---|---|---|
| Lady Nafisa School | Other Independent School | Good | 0.24 KM |
| Heathrow Primary School | Community School | Good | 0.39 KM |
| Cherry Lane Primary School | Community School | Good | 0.79 KM |
| Cherry Lane Children'S Centre | Children's Centre | 0.79 KM | |
| West Drayton Academy | Academy Converter | Good | 1.89 KM |
Images
Nearby Streets
| Name | Average Price | Average Sqft | Distance |
|---|---|---|---|
| Wykeham Close | £ 0 | 0 | 0.00 KM |
| Kenwood Close | £ 0 | 0 | 0.00 KM |
| Bell Avenue | £ 0 | 0 | 0.00 KM |
| Oak Avenue | £ 0 | 0 | 0.00 KM |
| Bolton's Lane | £ 0 | 0 | 0.00 KM |
Nearby Transport
| Name | NLC | TLC | Distance |
|---|---|---|---|
| Heathrow Terminals 2 And 3 (Rail Station Only) | 7090 | HXX | 2.22 KM |
| West Drayton | 3174 | WDT | 2.70 KM |
| Heathrow Terminal 4 | 7091 | HAF | 3.88 KM |
| Hayes And Harlington | 3186 | HAY | 4.23 KM |
| Heathrow Terminal 5 | 9846 | HWV | 4.39 KM |
Nearby Listings
| Address | Price | Type | Score | Distance |
|---|---|---|---|---|
| Russell Gardens, Sipson, West Drayton, UB7 | £ 280,000 | BUY | 5 / 10 | 0.00 KM |
| Russell Gardens, Sipson | £ 280,000 | BUY | 6 / 10 | 0.06 KM |
| Russell Gardens, Sipson, West Drayton, UB7 | £ 290,000 | BUY | 6 / 10 | 0.07 KM |
| Sipson, West Drayton | £ 440,000 | BUY | 6 / 10 | 0.08 KM |
| Vineries Close, Sipson, West Drayton | £ 440,000 | BUY | 5 / 10 | 0.10 KM |
Nearby Properties
| Address | Price | Distance |
|---|---|---|
| 19 Russell Gardens | £ 160,000 | 0.04 KM |
| 13 Russell Gardens | £ 290,000 | 0.04 KM |
| 39 Russell Gardens | £ 160,000 | 0.04 KM |
| 45 Russell Gardens | £ 188,990 | 0.04 KM |
| 35 Russell Gardens | £ 123,000 | 0.04 KM |