The Haven, 33, Cambridge Road, Faversham
By Foundation Estate Agents
£ 625,000
Reviews
3 out of 5 stars
Foundation Estate Agents says ..
An artistically presented and creatively extended Victorian residence flourishing in restored period features, fine F&B décor and exceptional craftsmanship. The 1500 sq.ft property has been significantly renovated by the current owners who have an eye for detail and a flair for interior desi (cont.)
Property Oracle says ..
This four-bedroom Victorian semi-detached house located at The Haven, Cambridge Road, Faversham, presents itself as a well-maintained and stylish family home. The property boasts a recent and substantial renovation, evident in the high-quality modern kitchen and bathrooms. The interior design is contemporary and appealing, with a thoughtful combination of colours and fixtures. The exterior, while not showing extensive grounds, benefits from a manageable garden area. The location is favourable, situated near reputable schools and convenient to Faversham Train Station, facilitating commutes to larger cities. While precise plot size details are unavailable and comparable local property data is limited making a definitive price-per-square-foot calculation impossible. the asking price, when considering the renovations and location, suggests reasonable value, though not necessarily an exceptional bargain in the current market. Overall, this is an attractively presented property in a desirable area, appealing to a range of potential buyers, especially those with families.
Therefore, we give this property 6 / 10. *Disclaimer: This is our option and does constitute a recommendation or financial advice. Do your own research. *
- Price
- 7
- Condition
- 9
- Location
- 7
- Land
- 4
- Bedrooms
- 4
- Bathrooms
- 2
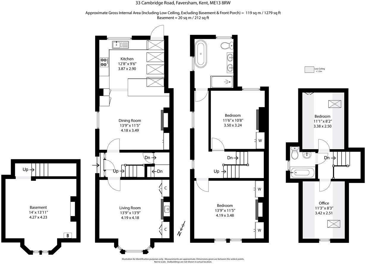
- Sqft (est)
- 1,279.00
The heatmap indicates the level of crime in the area. The color of the heatmap indicates the crime severity and recency.
Metrics Year-on-Year
- Average area value
- 683,750.00 £Increased by 26.98 %
- Est sale value
- 1,270,047.00 £Increased by 101.83 %
- Average area rental value
- 2,238.00 £/moIncreased by 5.82 %
- Est letting value
- 3,837.00 £/moIncreased by 200.00 %
- Est rental Yield
- 3.93 %Decreased by 16.56 %
- Crime Rate
- 4.00 %Unchanged by 0.00 %
Agent Activity
Foundation Estate Agents created the listing.
Nearby Schools
| Name | Type | Ofsted | Distance |
|---|---|---|---|
| Ethelbert Road Primary School | Community School | Outstanding | 0.66 KM |
| Ospringe Church Of England Primary School | Voluntary Controlled School | Good | 0.79 KM |
| Bysing Wood Children'S Centre | Children's Centre | 0.94 KM | |
| Bysing Wood Primary School | Academy Converter | 0.94 KM | |
| The Abbey School | Academy Converter | Good | 1.05 KM |
Images
Nearby Streets
| Name | Average Price | Average Sqft | Distance |
|---|---|---|---|
| Mountfield | £ 750,000 | 0 | 0.00 KM |
| Nursery Gardens | £ 0 | 0 | 0.00 KM |
| Greenway | £ 0 | 0 | 0.00 KM |
| St. Peter's Court | £ 295,000 | 0 | 0.00 KM |
| Stephens Close | £ 0 | 0 | 0.00 KM |
Nearby Transport
| Name | NLC | TLC | Distance |
|---|---|---|---|
| Faversham | 5167 | FAV | 1.45 KM |
| Selling | 5179 | SEG | 7.98 KM |
| Teynham | 5193 | TEY | 8.14 KM |
Nearby Listings
| Address | Price | Type | Score | Distance |
|---|---|---|---|---|
| Cambridge Road, Faversham | £ 299,995 | BUY | 6 / 10 | 0.02 KM |
| Cambridge Road, Sittingbourne | £ 325,000 | BUY | 7 / 10 | 0.13 KM |
| Lion Field, Faversham, ME13 | £ 225,000 | BUY | 6 / 10 | 0.22 KM |
| The Mount, London Road, Faversham | £ 225,000 | BUY | 7 / 10 | 0.22 KM |
| The Mount, London Road, Faversham | £ 200,000 | BUY | 7 / 10 | 0.22 KM |
Nearby Properties
| Address | Price | Distance |
|---|---|---|
| 112 Ospringe Road | £ 147,000 | 0.05 KM |
| 87 Ospringe Road | £ 235,000 | 0.05 KM |
| 104 Ospringe Road | £ 195,000 | 0.05 KM |
| 118a Ospringe Road | £ 125,000 | 0.05 KM |
| 124 Ospringe Road | £ 240,000 | 0.05 KM |