haart says ..
Welcome to this charming two-bedroom terraced home on Ramsay Road— a delightful blend of classic period character and day-to-day practicality in one of East London’s most sought-after locations
Property Oracle says ..
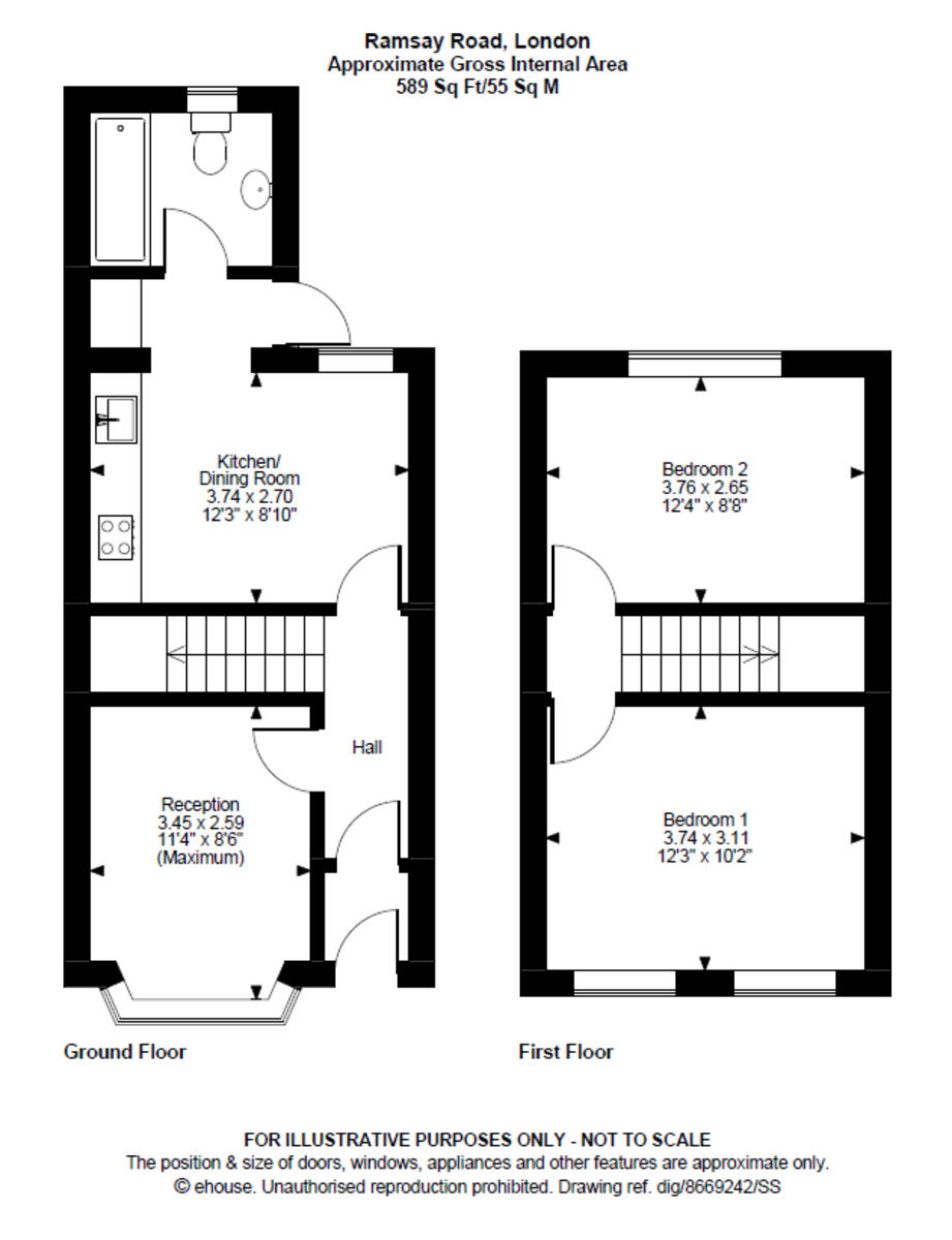
This is a 2-bedroom terraced house located in Cann Hall, Waltham Forest, London. The property is listed for £550,000. It is located close to local schools and transportation links. The property appears to be in need of renovation. It has a garden.
Therefore, we give this property 5 / 10. *Disclaimer: This is our option and does constitute a recommendation or financial advice. Do your own research. *
- Price
- 6
- Condition
- 4
- Location
- 7
- Land
- 6
- Bedrooms
- 2
- Bathrooms
- 1
- Sqft (est)
- 592.02
The heatmap indicates the level of crime in the area. The color of the heatmap indicates the crime severity and recency.
Metrics Year-on-Year
- Average area value
- 439,656.00 £Increased by 12.48 %
- Est sale value
- 264,632.94 £Increased by 5.18 %
- Average area rental value
- 2,161.00 £/moIncreased by 12.61 %
- Est letting value
- 1,184.04 £/moUnchanged by 0.00 %
- Est rental Yield
- 5.90 %Increased by 0.17 %
- Crime Rate
- 3.00 %Unchanged by 0.00 %
Agent Activity
haart created the listing.
Nearby Schools
| Name | Type | Ofsted | Distance |
|---|---|---|---|
| Buxton School | Foundation School | Good | 0.20 KM |
| Acacia Nursery | Local Authority Nursery School | Good | 0.63 KM |
| Odessa Infant School | Community School | Good | 0.87 KM |
| St James' Cofe Junior School | Voluntary Controlled School | Good | 0.91 KM |
| Davies Lane Primary School | Academy Converter | 0.97 KM |
Images
Nearby Streets
| Name | Average Price | Average Sqft | Distance |
|---|---|---|---|
| Bourne Road | £ 0 | 0 | 0.00 KM |
| Sheridan Road | £ 0 | 0 | 0.00 KM |
| Field Road | £ 0 | 0 | 0.00 KM |
| Vansittart Road | £ 0 | 0 | 0.00 KM |
| Eric Road | £ 0 | 0 | 0.00 KM |
Nearby Transport
| Name | NLC | TLC | Distance |
|---|---|---|---|
| Leytonstone High Road | 7403 | LER | 1.13 KM |
| Forest Gate | 6876 | FOG | 1.23 KM |
| Wanstead Park | 7408 | WNP | 1.26 KM |
| Maryland | 6970 | MYL | 1.65 KM |
| Stratford | 6969 | SRA | 2.72 KM |
Nearby Listings
| Address | Price | Type | Score | Distance |
|---|---|---|---|---|
| Ramsay Road, London | £ 550,000 | BUY | 5 / 10 | 0.00 KM |
| Cann Hall Road, London, E11 | £ 350,000 | BUY | 6 / 10 | 0.02 KM |
| Cann Hall Road, Leytonstone | £ 435,000 | BUY | 5 / 10 | 0.04 KM |
| Cann Hall Road, London, E11 | £ 239,950 | BUY | 4 / 10 | 0.08 KM |
| Cann Hall Road, LONDON, London, E11 | £ 525,000 | BUY | 6 / 10 | 0.08 KM |
Nearby Properties
| Address | Price | Distance |
|---|---|---|
| 261 Cann Hall Road | £ 600,000 | 0.01 KM |
| 291 Cann Hall Road | £ 701,000 | 0.01 KM |
| 239 Cann Hall Road | £ 610,000 | 0.01 KM |
| 289a Cann Hall Road | £ 386,975 | 0.02 KM |
| 311 Cann Hall Road | £ 515,000 | 0.02 KM |