Garden Grounds At 56 & 58, Howden Road, Jedburgh, TD8 6JR
CU

Garden Grounds At 56 & 58, Howden Road, Jedburgh, TD8 6JR

By Cullen Kilshaw

£ 55,000

Reviews

3 out of 5 stars

Cullen Kilshaw says ..

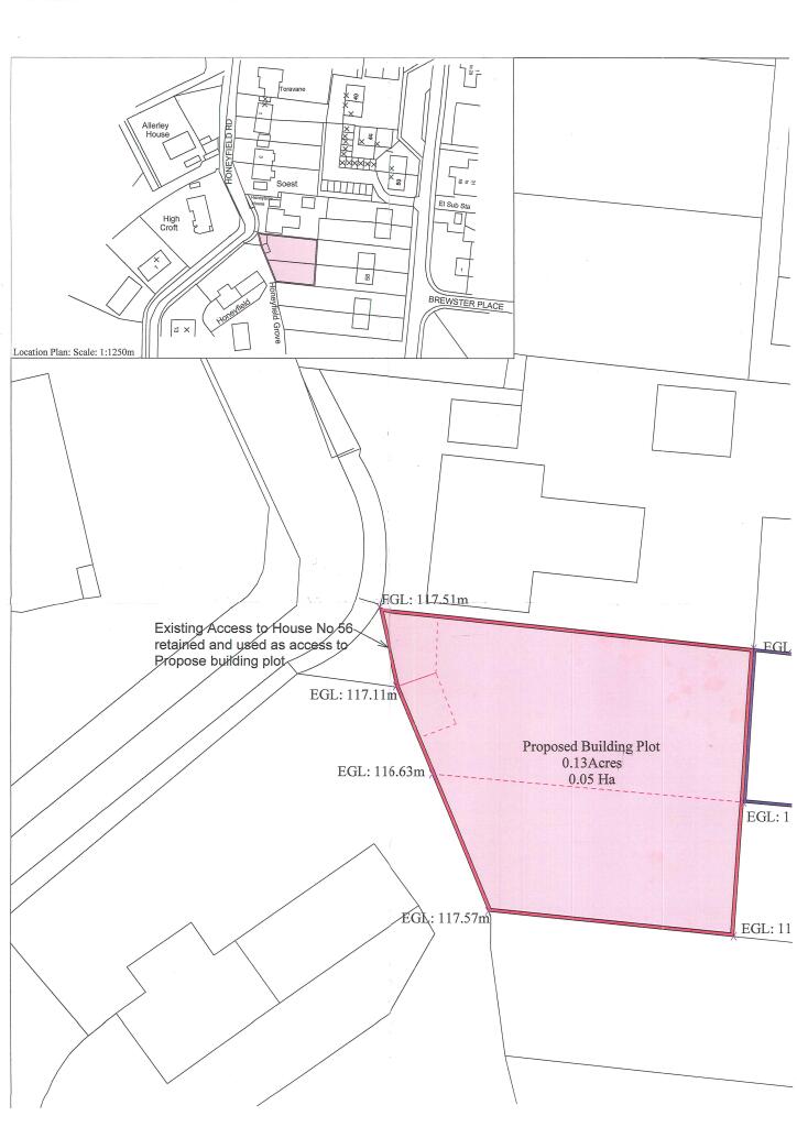
A rare opportunity has arisen to purchase a plot in a sought after area of Jedburgh which benefits from approved planning permission, with scope to build a substantial dwellinghouse . The plot is made up of two neighbouring garden grounds and equates to roughly 0.13 Acres. Viewings come highly re...

Property Oracle says ..

This listing presents a building plot in Jedburgh, Scottish Borders, at 56 & 58 Howden Road. The key feature is its size—approximately 0.13 acres—which offers substantial space for a new build. The site already has planning permission, suggesting reduced development hurdles. The photos reveal a relatively level garden area with existing sheds, although there isn’t enough information given to fully assess the quality of the land. The location in Jedburgh provides access to amenities, but specific details of proximity to schools, shops and transport links are absent. The listed price of £55,000 needs further context from comparable building plot sales data to fully determine its value in the market. Without details on factors such as soil conditions, utility access, or potential foundation costs, a full assessment of the plot’s worth is incomplete. More information would be needed to thoroughly assess the price, location and condition for more accurate scoring.

Therefore, we give this property 6 / 10. *Disclaimer: This is our option and does constitute a recommendation or financial advice. Do your own research. *

Price
7
Condition
4
Location
7
Land
6
Bedrooms
0
Bathrooms
0

The heatmap indicates the level of crime in the area. The color of the heatmap indicates the crime severity and recency.

Metrics Year-on-Year

Average area value
376,133.00 £
Increased by 50.19 %
from 250,445.00 £
Average area rental value
1,250.00 £/mo
Increased by 20.42 %
from 1,038.00 £/mo
Est rental Yield
3.99 %
Decreased by 19.72 %
from 4.97 %
Crime Rate
0.00 %
from 0.00 %

Agent Activity

  • Cullen Kilshaw created the listing.

Images

Property Image 2 Property Image 3 Property Image 4 Property Image 5 Property Image 6 Primary Property Image Property Image 7

Nearby Streets

NameAverage PriceAverage SqftDistance
Honeyfield Road £ 650,00000.00 KM
Lothian Road £ 125,00000.00 KM
Allerley Crescent £ 140,00000.00 KM
Blair Avenue £ 000.00 KM
Honeyfield Drive £ 000.00 KM

Nearby Listings

AddressPriceTypeScoreDistance
Garden Grounds At 56 & 58, Howden Road, Jedburgh, TD8 6JR £ 55,000BUY6 / 100.00 KM
63 Howden Road, Jedburgh TD8 £ 150,000BUY7 / 100.07 KM
70 Howden Road, Jedburgh TD8 £ 110,000BUY6 / 100.08 KM
High Croft, Honeyfield Road, Jedburgh, TD8 6JN £ 495,000BUYUnknown0.17 KM
15, Howden Crescent, Jedburgh, Scottish Borders, TD86JY £ 68,000BUY6 / 100.19 KM