Manor Park Road, Old Glossop
By Country Holmes
£ 365,000
Reviews
3 out of 5 stars
Country Holmes says ..
A delightful stone property in the sought after area of Old Glossop opposite Manor Park. This exquisite property has been remodeled and renovated to a high standard with no expense spared. The accommodation has a hallway leading to downstairs accommodation and has an exposed staircase to acces...
Property Oracle says ..
This property is a charming terraced house located in Old Glossop, Derbyshire. The property has been recently renovated to a high standard, boasting a modern kitchen, updated bathrooms, and tasteful decor throughout. It benefits from a well-maintained garden, providing a peaceful outdoor space. The location is convenient, with nearby schools and transportation links. While the exact square footage is not provided, the asking price seems slightly higher than the average price per square foot for the area, but this is likely justified by the property’s condition and desirable features.
Therefore, we give this property 7 / 10. *Disclaimer: This is our option and does constitute a recommendation or financial advice. Do your own research. *
- Price
- 7
- Condition
- 9
- Location
- 8
- Land
- 7
- Bedrooms
- 3
- Bathrooms
- 2
- Sqft (est)
- 796.00
The heatmap indicates the level of crime in the area. The color of the heatmap indicates the crime severity and recency.
Metrics Year-on-Year
- Average area value
- 334,167.00 £Increased by 24.23 %
- Est sale value
- 204,572.00 £Decreased by 19.44 %
- Average area rental value
- 1,252.00 £/moIncreased by 4.33 %
- Est letting value
- 0.00 £/moDecreased by 100.00 %
- Est rental Yield
- 4.50 %Decreased by 15.89 %
- Crime Rate
- 12.00 %Unchanged by 0.00 %
Agent Activity
Country Holmes created the listing.
Nearby Schools
| Name | Type | Ofsted | Distance |
|---|---|---|---|
| All Saints Catholic Voluntary Academy | Academy Converter | 0.60 KM | |
| Duke Of Norfolk Cofe Primary School | Voluntary Controlled School | Requires improvement | 0.60 KM |
| St Mary'S Catholic Voluntary Academy | Academy Sponsor Led | 1.14 KM | |
| Glossop Children'S Centre | Children's Centre | 1.52 KM | |
| St Luke'S Cofe Primary School | Voluntary Controlled School | Good | 1.86 KM |
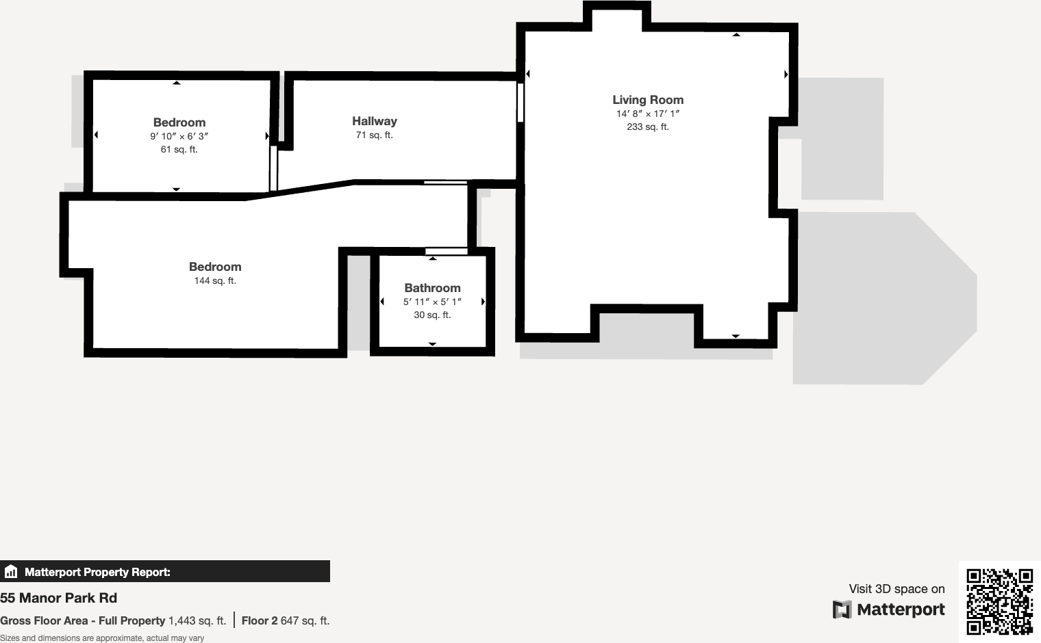
Images
Nearby Streets
| Name | Average Price | Average Sqft | Distance |
|---|---|---|---|
| Corn Street | £ 0 | 0 | 0.00 KM |
| Wesley Street | £ 750,000 | 0 | 0.00 KM |
| Starkie Street | £ 0 | 0 | 0.00 KM |
| Uplands Roads | £ 0 | 0 | 0.00 KM |
| Derwent Close | £ 0 | 0 | 0.00 KM |
Nearby Transport
| Name | NLC | TLC | Distance |
|---|---|---|---|
| Glossop | 2895 | GLO | 1.10 KM |
| Hadfield | 2896 | HDF | 3.34 KM |
| Dinting | 2893 | DTG | 3.46 KM |
| Broadbottom | 2892 | BDB | 8.57 KM |
Nearby Listings
| Address | Price | Type | Score | Distance |
|---|---|---|---|---|
| Manor Park Road, Old Glossop | £ 185,000 | BUY | 5 / 10 | 0.00 KM |
| Manor Park Road, Old Glossop | £ 365,000 | BUY | 7 / 10 | 0.00 KM |
| Manor Park Road, Glossop, SK13 7SH | £ 210,000 | BUY | 6 / 10 | 0.00 KM |
| Sheffield Road, Glossop | £ 190,000 | BUY | 6 / 10 | 0.11 KM |
| Silk Street, Glossop, Derbyshire, SK13 | £ 205,000 | BUY | 6 / 10 | 0.13 KM |
Nearby Properties
| Address | Price | Distance |
|---|---|---|
| 123 Manor Park Road | £ 113,500 | 0.01 KM |
| 55 Manor Park Road | £ 172,500 | 0.01 KM |
| 105 Manor Park Road | £ 85,000 | 0.01 KM |
| 57 Manor Park Road | £ 101,450 | 0.01 KM |
| 59 Manor Park Road | £ 150,000 | 0.01 KM |