MA
Ashenground Close, Haywards Heath, RH16
By Mansell McTaggart
£ 650,000
Reviews
3 out of 5 stars
Mansell McTaggart says ..
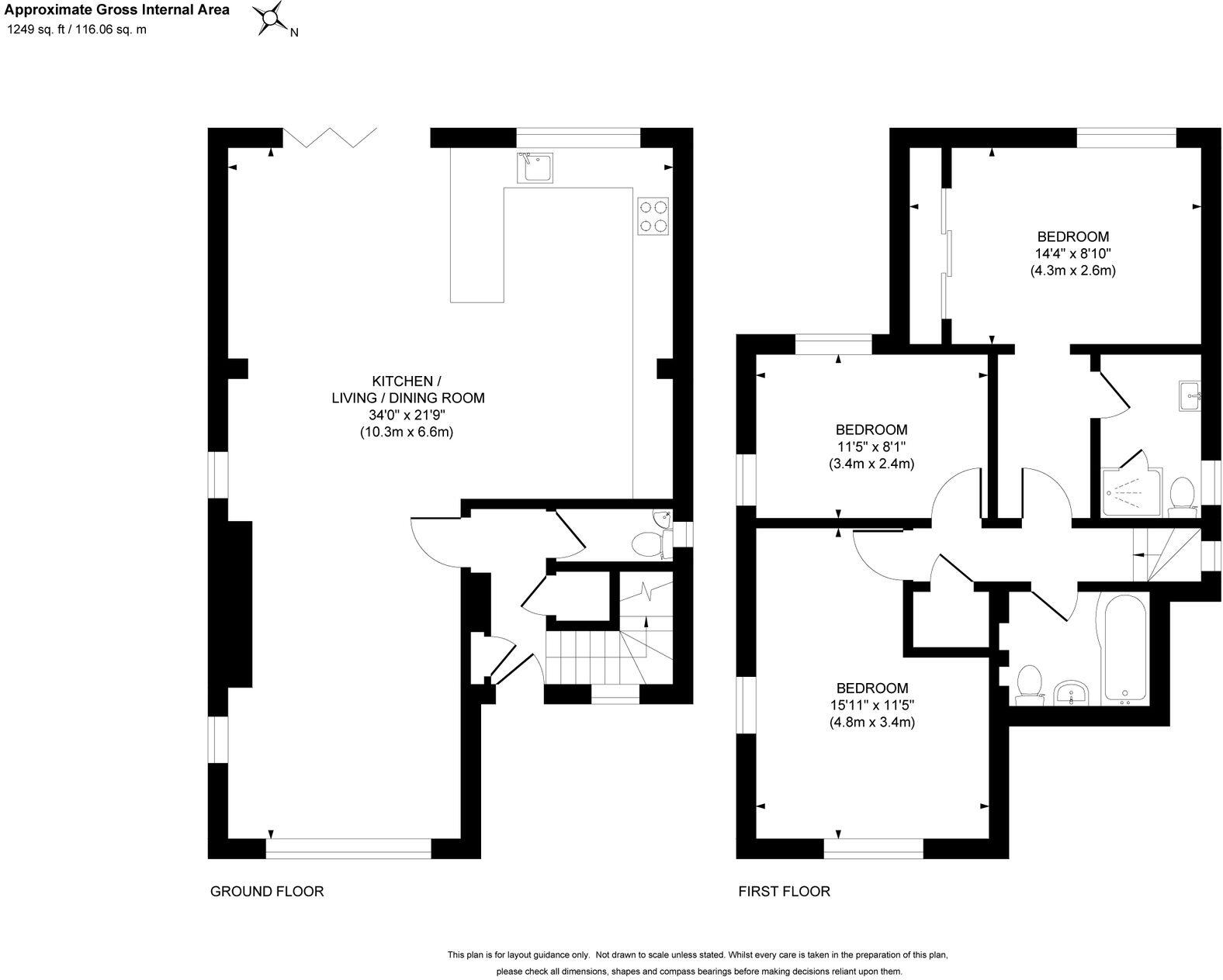
PLEASE WATCH THE VIDEO BEFORE BOOKING AN APPOINTMENT A 3 double bedroom, 2 bath/shower room detached house of 1,249 sq ft with a 31’ x 30’ front garden and a 35’ x 30’ west facing rear garden situated in a quiet cul-de-sac in this established part of town to the south of the town centre, close to...
Property Oracle says ..
Therefore, we give this property 7 / 10. *Disclaimer: This is our option and does constitute a recommendation or financial advice. Do your own research. *
- Price
- 7
- Condition
- 8
- Location
- 7
- Land
- 7
- Bedrooms
- 3
- Bathrooms
- 1
- Sqft (est)
- 1,115.57
The heatmap indicates the level of crime in the area. The color of the heatmap indicates the crime severity and recency.
Metrics Year-on-Year
- Average area value
- 890,625.00 £Increased by 35.96 %
- Est sale value
- 635,874.90 £Increased by 58.77 %
- Average area rental value
- 1,412.00 £/moDecreased by 13.11 %
- Est letting value
- 0.00 £/mo
- Est rental Yield
- 1.90 %Decreased by 36.24 %
- Crime Rate
- 4.00 %Unchanged by 0.00 %
from 655,041.00 £
from 400,489.63 £
from 1,625.00 £/mo
from 0.00 £/mo
from 2.98 %
from 4.00 %
Agent Activity
Mansell McTaggart created the listing.
Nearby Schools
| Name | Type | Ofsted | Distance |
|---|---|---|---|
| St Joseph'S Catholic Primary School | Academy Converter | 0.99 KM | |
| Bolnore Village Primary School | Foundation School | Good | 1.26 KM |
| Warden Park Primary Academy | Academy Sponsor Led | Good | 1.33 KM |
| Chalkhill Education Centre, Chalkhill Hospital | Pupil Referral Unit | Outstanding | 1.37 KM |
| Central Education Ltd | Other Independent Special School | Requires improvement | 1.51 KM |
Images
Nearby Streets
| Name | Average Price | Average Sqft | Distance |
|---|---|---|---|
| Bankside | £ 0 | 0 | 0.00 KM |
| The Coppice | £ 0 | 0 | 0.00 KM |
| Anscombe Wood Cresent | £ 800,000 | 0 | 0.00 KM |
| Church Road | £ 0 | 0 | 0.00 KM |
| Elizabeth Road | £ 0 | 0 | 0.00 KM |
Nearby Transport
| Name | NLC | TLC | Distance |
|---|---|---|---|
| Haywards Heath | 5490 | HHE | 1.64 KM |
| Wivelsfield | 5341 | WVF | 3.39 KM |
| Burgess Hill | 5483 | BUG | 4.78 KM |
| Balcombe | 5492 | BAB | 7.96 KM |
| Plumpton | 5332 | PMP | 8.59 KM |
Nearby Listings
| Address | Price | Type | Score | Distance |
|---|---|---|---|---|
| Ashenground Close, Haywards Heath, RH16 | £ 650,000 | BUY | 7 / 10 | 0.00 KM |
| Ashenground Close, Haywards Heath, West Sussex, RH16 | £ 550,000 | BUY | 7 / 10 | 0.07 KM |
| Redwood Drive, Haywards Heath, RH16 | £ 700,000 | BUY | 7 / 10 | 0.14 KM |
| Wood Ride, Haywards Heath, RH16 | £ 600,000 | BUY | 7 / 10 | 0.18 KM |
| Southdown Close, Haywards Heath, West Sussex. RH16 4JR | £ 495,000 | BUY | 7 / 10 | 0.20 KM |
Nearby Properties
| Address | Price | Distance |
|---|---|---|
| 6 Ashenground Close | £ 48,000 | 0.01 KM |
| 12 Ashenground Close | £ 295,000 | 0.02 KM |
| 14 Ashenground Close | £ 336,000 | 0.02 KM |
| 13 Ashenground Close | £ 244,950 | 0.02 KM |
| 34 Vale Road | £ 392,500 | 0.10 KM |