Jenkinson Estates says ..
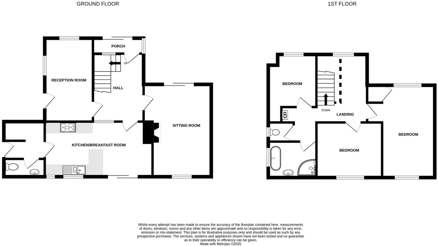
Jenkinson Estates are pleased to bring to the market this modern detached home situated in the ever popular location of Godwyn Road, Deal. Set within approximately 250 meters from Deals famous seafront, local amenities and popular golf courses, this property really must be viewed. The ground floo...
Property Oracle says ..
This is a detached property in North Deal featuring three bedrooms and two bathrooms. The property includes a garden and off-street parking. The interior appears to be well-maintained with a modern kitchen and bathroom. The property is located within a reasonable distance of local schools and the Deal train station. The asking price seems appropriate for the size, location, and condition of the property.
Therefore, we give this property 7 / 10. *Disclaimer: This is our option and does constitute a recommendation or financial advice. Do your own research. *
- Price
- 7
- Condition
- 7
- Location
- 7
- Land
- 7
- Bedrooms
- 3
- Bathrooms
- 2
- Sqft (est)
- 1,080.00
The heatmap indicates the level of crime in the area. The color of the heatmap indicates the crime severity and recency.
Metrics Year-on-Year
- Average area value
- 505,375.00 £Increased by 53.39 %
- Est sale value
- 533,520.00 £Increased by 26.99 %
- Average area rental value
- 1,085.00 £/moDecreased by 20.22 %
- Est letting value
- 1,080.00 £/moUnchanged by 0.00 %
- Est rental Yield
- 2.58 %Decreased by 47.88 %
- Crime Rate
- 16.00 %Unchanged by 0.00 %
Agent Activity
Jenkinson Estates created the listing.
Nearby Schools
| Name | Type | Ofsted | Distance |
|---|---|---|---|
| Sandown School | Academy Converter | 0.77 KM | |
| Brewood Secondary School | Other Independent Special School | Good | 1.90 KM |
| Goodwin Academy | Academy Sponsor Led | 2.43 KM | |
| Deal Parochial Church Of England Primary School | Academy Converter | 2.57 KM | |
| Warden House Primary School | Academy Converter | Outstanding | 2.75 KM |
Images
Nearby Streets
| Name | Average Price | Average Sqft | Distance |
|---|---|---|---|
| Sandown Court | £ 0 | 0 | 0.00 KM |
| Hengist Road | £ 0 | 0 | 0.00 KM |
| Dibdin Road | £ 0 | 0 | 0.00 KM |
| Peter Street | £ 0 | 0 | 0.00 KM |
| Wallers Road | £ 286,000 | 0 | 0.00 KM |
Nearby Transport
| Name | NLC | TLC | Distance |
|---|---|---|---|
| Deal | 5011 | DEA | 1.43 KM |
| Walmer | 5041 | WAM | 4.08 KM |
| Sandwich | 5026 | SDW | 7.39 KM |
| Martin Mill | 5040 | MTM | 9.24 KM |
Nearby Listings
| Address | Price | Type | Score | Distance |
|---|---|---|---|---|
| Godwyn Road, Deal, CT14 | £ 499,950 | BUY | 7 / 10 | 0.00 KM |
| Godwyn Road, Deal, Kent, CT14 | £ 535,000 | BUY | 6 / 10 | 0.02 KM |
| Godwyn Road, Deal, Kent | £ 325,000 | BUY | 6 / 10 | 0.05 KM |
| Godwyn Road, Deal, Kent | £ 215,000 | BUY | 6 / 10 | 0.05 KM |
| Godwyn Road, Deal, CT14 | £ 300,000 | BUY | 6 / 10 | 0.06 KM |
Nearby Properties
| Address | Price | Distance |
|---|---|---|
| 42 Godwyn Road | £ 160,000 | 0.04 KM |
| 50 Godwyn Road | £ 210,000 | 0.04 KM |
| 24 Godwyn Road | £ 155,000 | 0.04 KM |
| 54 Godwyn Road | £ 368,000 | 0.04 KM |
| 38 Godwyn Road | £ 400,000 | 0.04 KM |