Pullham Lane, Wetwang, YO25 9XT
By Dee Atkinson & Harrison
£ 115,000
Reviews
3 out of 5 stars
Dee Atkinson & Harrison says ..
No Onward Chain-**CALL TO BOOK IN YOUR IN PERSON VIEWING OR VIEW OUR 360 VIRTUAL ONLINE TOUR**
Property Oracle says ..
This terraced property is located in Wetwang, East Riding of Yorkshire, close to a primary school. The internal photos suggest the property requires some renovation, especially the kitchen. The property includes a garden that needs landscaping. The price per square foot is lower than the area average, reflecting the need for renovation.
Therefore, we give this property 6 / 10. *Disclaimer: This is our option and does constitute a recommendation or financial advice. Do your own research. *
- Price
- 8
- Condition
- 5
- Location
- 7
- Land
- 5
- Bedrooms
- 2
- Bathrooms
- 1
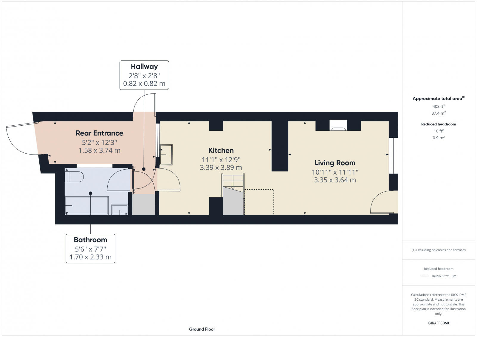
- Sqft (est)
- 580.00
The heatmap indicates the level of crime in the area. The color of the heatmap indicates the crime severity and recency.
Metrics Year-on-Year
- Average area value
- 425,354.00 £Increased by 26.68 %
- Est sale value
- 186,760.00 £Increased by 33.06 %
- Average area rental value
- 845.00 £/moDecreased by 13.33 %
- Est letting value
- 0.00 £/mo
- Est rental Yield
- 2.38 %Decreased by 31.61 %
- Crime Rate
- 80.00 %Unchanged by 0.00 %
Agent Activity
Dee Atkinson & Harrison created the listing.
Nearby Schools
| Name | Type | Ofsted | Distance |
|---|---|---|---|
| Wetwang Church Of England Voluntary Controlled Primary School | Voluntary Controlled School | Good | 0.06 KM |
| Sledmere Church Of England Voluntary Controlled Primary School | Voluntary Controlled School | Good | 5.76 KM |
| Garton-On-The-Wolds Church Of England Voluntary Controlled Primary School | Voluntary Controlled School | Good | 7.95 KM |
| Middleton-On-The-Wolds Church Of England Voluntary Controlled Primary School | Voluntary Controlled School | Good | 9.24 KM |
Images
Nearby Streets
| Name | Average Price | Average Sqft | Distance |
|---|---|---|---|
| Southfield Balk | £ 0 | 0 | 0.00 KM |
| Southfield Road | £ 0 | 0 | 0.00 KM |
Nearby Listings
| Address | Price | Type | Score | Distance |
|---|---|---|---|---|
| Pullham Lane, Wetwang, YO25 9XT | £ 115,000 | BUY | 6 / 10 | 0.00 KM |
| Pulham Lane, Wetwang, Driffield YO25 | £ 470,000 | BUY | 7 / 10 | 0.03 KM |
| Pulham Lane, Wetwang, Driffield YO25 | £ 515,000 | BUY | Unknown | 0.03 KM |
| Pulham Lane, Wetwang, Driffield YO25 | £ 250,000 | BUY | 6 / 10 | 0.03 KM |
| Pulham Lane, Wetwang, Driffield YO25 | £ 515,000 | BUY | 8 / 10 | 0.03 KM |
Nearby Properties
| Address | Price | Distance |
|---|---|---|
| 1 Pulham Lane | £ 196,500 | 0.03 KM |
| 11 Pulham Lane | £ 139,000 | 0.03 KM |
| 29 Pulham Lane | £ 151,000 | 0.03 KM |
| 5 Pulham Lane | £ 116,000 | 0.03 KM |
| 2a Pulham Lane | £ 245,000 | 0.03 KM |