WI
Stockland Bristol, Bridgwater, TA5
By Wilkie May & Tuckwood - Bridgwater
£ 585,000
Reviews
3 out of 5 stars
Wilkie May & Tuckwood - Bridgwater says ..
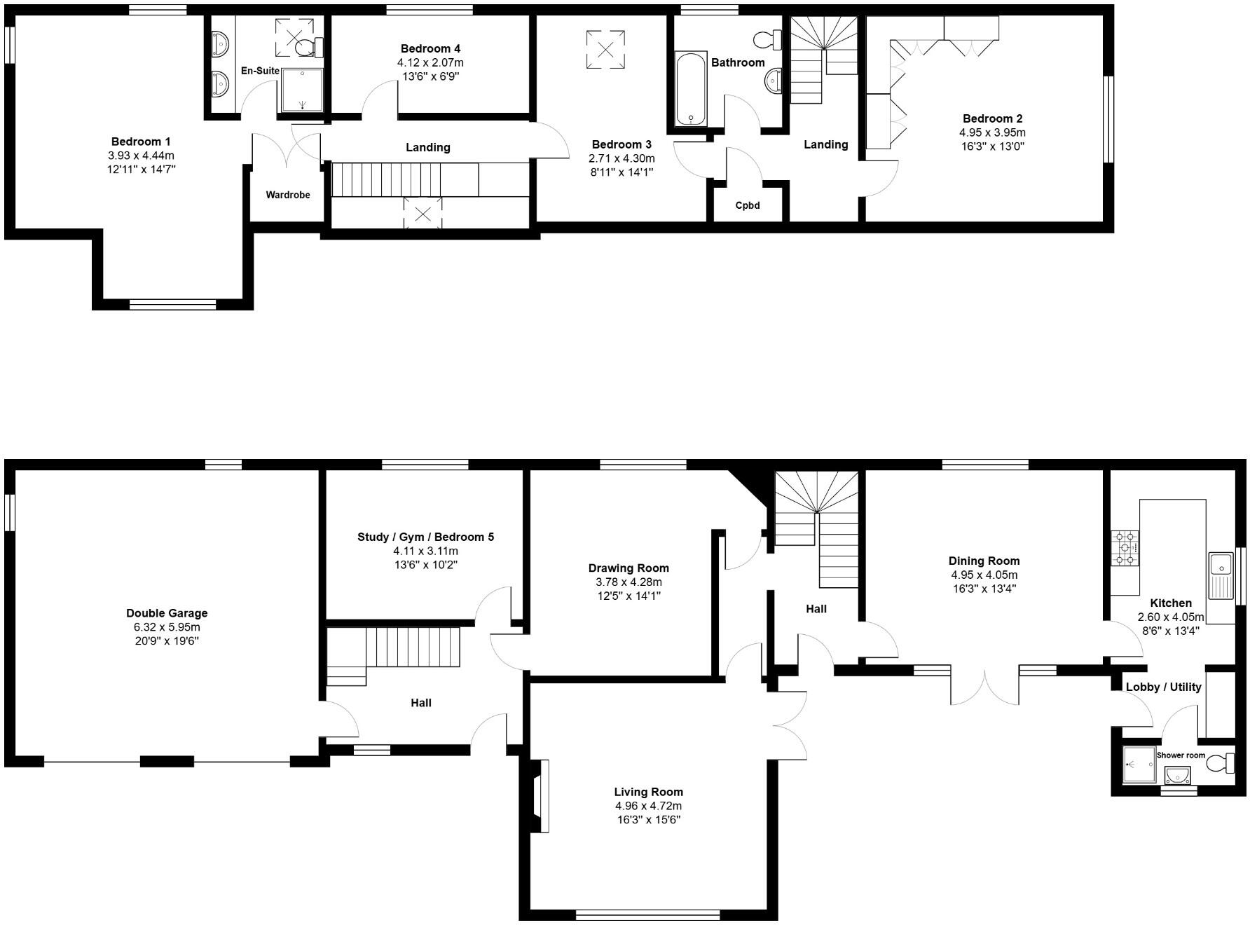
Presenting this impressive, spacious, four bedroom, detached, family home is offered to the market with NO ONWARD CHAIN and benefits from a DOUBLE GARAGE and OFF-ROAD PARKING. EPC RATING: E48, COUNCIL TAX BAND: E
Property Oracle says ..
Therefore, we give this property 7 / 10. *Disclaimer: This is our option and does constitute a recommendation or financial advice. Do your own research. *
- Price
- 8
- Condition
- 7
- Location
- 7
- Land
- 7
- Bedrooms
- 4
- Bathrooms
- 3
- Sqft (est)
- 1,913.29
The heatmap indicates the level of crime in the area. The color of the heatmap indicates the crime severity and recency.
Metrics Year-on-Year
- Average area value
- 631,144.00 £Increased by 51.17 %
- Est sale value
- 635,212.28 £Increased by 2.79 %
- Average area rental value
- 1,183.00 £/moDecreased by 6.04 %
- Est letting value
- 0.00 £/mo
- Est rental Yield
- 2.25 %Decreased by 37.85 %
- Crime Rate
- 0.00 %
from 417,519.00 £
from 617,992.67 £
from 1,259.00 £/mo
from 0.00 £/mo
from 3.62 %
from 0.00 %
Agent Activity
Wilkie May & Tuckwood - Bridgwater created the listing.
Nearby Schools
| Name | Type | Ofsted | Distance |
|---|---|---|---|
| Otterhampton Primary School | Academy Sponsor Led | 3.00 KM | |
| Brymore Academy | Academy Sponsor Led | Good | 4.29 KM |
| Cannington Church Of England Primary School | Voluntary Controlled School | Good | 5.14 KM |
| Stogursey Church Of England Primary School | Academy Converter | 6.33 KM | |
| Spaxton Cofe Primary School | Academy Converter | 7.09 KM |
Images
Nearby Streets
| Name | Average Price | Average Sqft | Distance |
|---|---|---|---|
| Church Lane | £ 1,000,000 | 0 | 0.00 KM |
| Yearmoor Lane | £ 0 | 0 | 0.00 KM |
| Lower Hill Farm Approach | £ 0 | 0 | 0.00 KM |
Nearby Listings
| Address | Price | Type | Score | Distance |
|---|---|---|---|---|
| Stockland Bristol, Bridgwater, TA5 | £ 585,000 | BUY | 7 / 10 | 0.00 KM |
| Stockland Bristol, Bridgwater | £ 359,950 | BUY | 7 / 10 | 0.18 KM |
| Stockland Bristol, Nr. Bridgwater | £ 650,000 | BUY | 8 / 10 | 0.23 KM |
| Stockland Bristol, Bridgwater, Somerset, TA5 | £ 795,000 | BUY | 7 / 10 | 0.38 KM |
| Stockland Bristol, Bridgwater, Somerset, TA5 | £ 385,000 | BUY | 7 / 10 | 0.59 KM |
Nearby Properties
| Address | Price | Distance |
|---|---|---|
| 27 Clayland Corner | £ 247,500 | 1.99 KM |